Хрущевка
«Хрущевки» возводились с конца 50-х до середины 80-х годов (с учетом доработок и появления новых модификаций). Ранние версии домов имели не очень удачное расположение комнат, толщина панельных стен не обеспечивала качественной теплоизоляции, потолки были невысокими, совмещенным делался санузел. Кухня, как правило, была небольшой площади.

Примерно с 1970 года развернулось широкомасштабное строительство 9-этажек из кирпича или панелей. Потолки в новых квартирах располагались на уровне 2,64 м., а внутренние перегородки не несли на себе общую нагрузку. Именно поэтому в таких домах перепланировка 3-комнатной квартиры была обычным явлением.

Выбор основных параметров коттеджа
Строительные компании предлагают красивые одноэтажные дома недорого. Их цены вполне адекватные. Главное, не экономить на ключевых составляющих здания – фундаменте, стенах и кровле.
Для болотистого грунта лучше вбить сваи, тогда его перепады не отразятся на целостности здания. Они легко выдержат кирпичные стены. Деревянный дом рекомендуется строить на столбчатом основании. Можно даже на обрывистом берегу. Ленточная конструкция нуждается в устойчивом грунте. Стены могут быть кирпичными, каменными или пенобетонными.
Прежде чем класть фундамент, нужно определиться с размерами будущего здания. Сделать это поможет план одноэтажного дома.
Фундамент повторяет план дома и показывает все его несущие стеныИсточник ksrub.ru
Площадь и количество комнат зависят от бюджета и состава семьи жильцов. Однако необходимо придерживаться минимальных норм строительства:
- Площадь зала от 12 кв. м
- Кухня от 6 кв. м
- Спальня от 8 кв. м
- Санузел от 4 кв. м
Кроме этих комнат, в доме должно быть отдельное помещение для котельного оборудования и хранения инвентаря. Высота стен не меньше 2,5 м. Без соблюдения этих норм местная администрация не даст разрешение на строительство.
На основании этих цифр составляется проект коттеджа с точным расположением комнат, дверных и оконных проемов, системы отопления, коммуникаций. Здесь обозначают основную мебель с бытовыми приборами. Чем конкретнее, тем проще будет строителям работать. Виртуальные модели интерьера помогают проверить удобство проживания в будущем доме. Хорошо, если входы в спальни будут из коридора, а не других комнат.
ЗD модель дома позволяет наглядно оценить плюсы и минусы планировкиИсточник opsar.ru
Что касается общей площади дома, то на одного человека она в идеале составляет 30 кв. м. Больше – одиноко, меньше – тесно. Так, для семьи из 5 человек коттедж нужен 150 квадратов. А очень большой одноэтажный дом и не нужен, чтобы не разориться на материалах и обслуживании.
Особенности проектов одноэтажных домов с тремя спальнями
Одноэтажные здания обладают несколькими преимуществами, которые обусловили широкое распространение таких проектов в частном домостроении:
- Низкая нагрузка на фундамент. Она позволяет возведение постройки в условиях слабонесущих грунтов;
- Отсутствие в проекте лестниц и проходов коммуникаций на более высокие этажи. Благодаря этому, планировка постройки в один этаж позволяет эффективно воспользоваться имеющимся пространством;
- Более высокий уровень комфорта для пожилых людей, маленьких детей и лиц с ограниченными возможностями, так как у них отсутствует необходимость подниматься на второй этаж или еще выше.
Важная особенность проектов одноэтажной постройки – создание оптимальных условий для проживания под одной крышей двух или даже трех поколений одной семьи. Поэтому востребованными становятся такие проекты, которые учитывают размещение как минимум трех спален и наличие одного просторного помещения, где смогут собраться все обитатели. Это необходимо для комфортного проживания многочисленных членов семьи, причем каждое поколение получает собственное автономное пространство.
Увеличиваем функциональность, не раздвигая стен
Сделать жилую зону просторней можно, внеся коррективы в планировку.
Сегодня большой популярностью у семей, в которых проживают дети и пожилые люди, пользуются одноэтажные дома с тремя спальнями. Это удобная планировка для людей с ограниченной подвижностью. Таким проектам зачастую отдают предпочтение владельцы небольших земельных участков, желающих соорудить уютные и комфортные жилища. Чтобы построить дом одноэтажный с тремя спальнями, необходимо первоначально, создать проект на бумаге, который будет учитывать все детали будущего сооружения. Для этого, можно обратиться к специалистам, но дешевле, спроектировать свой дом самостоятельно.

Как мы уже выяснили, самым первым шагом в процессе сооружения дома, является создание проекта. На данном этапе продумывается планировка будущего сооружения, проводится подсчет возможного объема потребления электричества и воды, приобретаются строительные материалы и выбираются технологии, позволяющие сэкономить на возведении объекта.

Чтобы все члены семьи из 4-5 человек чувствовали себя комфортно, жилье нужно сооружать площадью, 60-100 кв.м. На данном этапе учитываются пожелания обитателей будущего строения. Одноэтажный проект дома с тремя спальнями на фото, может включать в себя большую кухню, объединенную с гостиной, камин, рабочий кабинет, оранжерею, большую кладовую. Какие комнаты будут в доме, зависит от стиля жизни и предпочтений обитателей будущего сооружения.

Оптимизация затрат
Успех строительства и дальнейшей эксплуатации дома закладывается во время составления плана. Вы можете рассматривать типовые проекты частных домов, или заказать индивидуальный план
В любом случае важно внимательно изучать предлагаемые варианты, примерять их на свои потребности и привычки
Проектирование – сложный многоступенчатый процесс, во время которого специалисты предусматривают множество важных деталей. О существовании многих из них заказчик, не связанный со сферой строительства даже не подозревает. Однако существуют нюансы, которые позволяют оценить грамотность и, следовательно, выгодность проекта. Преимуществами считаются следующие особенности планировки 1-этажного дома с 3 спальнями:
Проект учитывает потребности людей всех возрастных категорий
Хотя в нем отсутствует лестница, потенциальный источник травм, важно не забывать про потребности маленьких детей и старших родственников. Большим плюсом также будет удобное (в близкой доступности) расположение помещений общего пользования. Проект с низким крыльцомИсточник mcdonaldjoneshomes.com.au
Проект с низким крыльцомИсточник mcdonaldjoneshomes.com.au
- Те же условия важны для доступа к приусадебной территории. Если в плане предусмотрено крыльцо, необходимо сделать его безопасным: позаботиться о перилах и ограждении, сделать навес для защиты от осадков, провести свет.
- Разводка труб водоснабжения и канализации просто обязана быть экономной. Ее выполняют по упрощенной схеме, что уменьшает не только строительные расходы, но и суммы в счетах за отопление. С этой точки зрения наиболее экономически выгодна планировка, в которой кухня и санузел расположены рядом, а жилые комнаты – через перегородку.
- Комфорт проживания увеличивается благодаря остеклению большой площади, а также наличию пристроек: террасы, веранды, гаража.
Образец нерациональной разводки коммуникацийИсточник domavis.ru
Важен не только комфорт, но и функциональность помещений, поэтому необходимо присмотреться к следующим деталям:
- Технические помещения располагаются с учетом требований нормативно-технической документации (они прописаны в СНиПах и ГОСТах). В противном случае возникнут проблемы с их подключением.
- В регионах с продолжительными зимами необходимо защитить дом от потерь тепла. В этом поможет коридор, снабженный тамбуром или внешняя пристройка в виде застекленной и утепленной веранды.
- Если в доме будут жить более пяти человек, понадобится второй (отдельный) санузел. Также придется подумать о логике перемещения людей.
С сауной и террасой вдоль длинной стороныИсточник karkasnik-stroy.ru
Проекты одноэтажных домов до 150 м²: фото и описание планировок
Одноэтажные дома с жилой площадью до 150 м² прекрасно подходят для семей из 4-5 человек. В них можно разместить три спальни, гостиную и кухню, а также пристроить гараж, сделать цокольный этаж, куда переместить все разводки коммуникации.
Мансарда – также хорошая идея для небольших по площади построек.

По европейским стандартам дом до 150 м² относится к малым, в таких конструкциях есть целый ряд преимуществ:
вариативность материала для возведения дома (брус, камень, пеноблок и другие);
компактность, что немаловажно для небольших участков;
меньший расход стройматериалов и физических затрат, что удешевляет строительство;
малая жилая площадь позволяет экономить на коммунальных платежах.

Спроектировать дом можно самостоятельно или заказать готовый план с возведение постройки под ключ. Выделяют несколько стандартных габаритов коттеджей до 150 м²:
- 10 на 12 м;
- 12х12 м;
- 11 на 11 м.
А также варианты с цоколем, мансардой и гаражом.
Планы одноэтажного дома 10 на 12 и 12 на 12 м с фото-примерами
В среднем жилая площадь в доме 10 на 12 составляет 140 м² с мансардным этажом. Распределение комнат, как и внешний облик дома, может быть разнообразным. Выбирая проект, стоит учитывать количество членов семьи, которые будут проживать под одной крышей.

При этом любой вариант одноэтажной постройки будет иметь ряд достоинств:
- возможность сделать мансарду при помощи двускатной крыши, увеличив площадь;
- есть вариант достроить гараж или дополнительную комнату вбок от дома, если позволяет площадь участка.
- легкость в эксплуатации и обслуживании дома: прекрасно подходит для детей или пожилых людей, так как нет необходимости подниматься по ступенькам;
- можно реализовать практически любую дизайнерскую задумку в фасаде, смонтировав арки, или другие украшения.

Среди готовых проектов планировка одноэтажных домов 10х10 или 10х12 м бывает разная. Вот несколько фотопримеров, чтобы вам было легче представить свое будущее жилье:




План одноэтажного дома 11 на 11 м из бруса с фото
Среди всех вариантов особое место занимают одноэтажные , которые могут быть любого метража, в том числе и 11 на 11м
Натуральный материал всегда привлекает внимание потребителей, смотрится красиво на любом участке, а при правильном строительстве срок эксплуатации построек велик

Среди всех достоинств построек из бруса выделяют несколько основных преимуществ:
- брус бывает обычный и профилированный, поэтому можно выбрать различные ;
- материал прочен и экологичен;
- легко смонтировать проводку в доме: нет сложности в просверливании стен;
- дерево не пропускает холод: дома можно возводить даже в климате с суровыми зимами.

К недостаткам относят способность дерева впитывать влагу, поэтому потребуется дополнительный слой гидроизоляции стен, а также следует нанести специальный состав от образования гнили и плесени.
Древесину относят к дорогим материалам, поэтому даже одноэтажный дом сложно отнести к дешевым постройкам.
Вариантов планировки много, например, красиво смотрятся деревянные одноэтажные дома 11 на 11 м с мансардой. Вот несколько фотопримеров разных готовых конструкций:




План одноэтажного дома 12 на 12: варианты распределения комнат
Продумать планировку одноэтажного дома 12х12 м легче, ведь большая площадь позволяет размещать комнаты в произвольном порядке, делать несколько больших или много маленьких помещений. Мансардный этаж отдают под кабинеты и детские комнаты или обустраивают нежилые зоны отдыха, а дополнительные открытие могут служить летним убежищем от зноя и палящего солнца.

Выбирая подходящее расположение комнат, можно от руки или в специальном 3D редакторе составить свой проект, взять за основу готовый вариант или заказать план у специалистов в строительной компании своего города.
Вот несколько вариантов планировок домиков 12 на 12 м, а также готовые конструкции:




Статья
Планировка комнат в доме должна проводиться на стадии под разделительные и несущие перегородки.
Прежде всего, следует тщательно сверить подготовленный на соответствие гигиеническим и строительным нормам. По принятым нормам объём чистого воздуха, который требуется для нормального самочувствия человека, должен составлять не менее 25 м³.
Размеры будущего жилья рассчитываются в строгом соответствии с данными показателями.
- Если составляет менее 3 метров, то площадь жилых помещений должна составлять порядка 9 кв. м.
- Во время планировки помещений необходимо учитывать уровень и источники естественного освещения.
- Также требуется учитывать степень проветриваемости и вентиляции помещений.
Планирование собственного дома
Пример того, как можно распределить комнаты
Без чего не обойтись
Любой одноэтажный дом с тремя спальнями — это возможность выбрать быстрое или капитальное строительство из несколько интересных материалов:
- Быстрая сборка по типу «канадской технологии». Отлично подходит как раз для одного этажа, позволяет строить быстро, а само строение будет длительное время находиться в эксплуатации.
- Строительство из пеноблоков. Так же позволяет строить быстро, экономит время, а главное позволяет провести утепление по упрощенной схеме.
- Стандартное строительство с использованием кирпича. Это уже основательная работа, однако, один уровень строить намного легче.
Наиболее распространенный вариант, это строительство из кирпича или пеноблоков, и здесь придется рассмотреть самый простой проект, в котором в план одноэтажного дома с 3 спальнями войдут:
- Ленточный фундамент.
- Железобетонные перекрытия.
- При чердачном варианте потребуются деревянные стропила, при плоской крыше — гидроизоляция железобетонных перекрытий.
Простой вариант с деревянными стропилами и чердачным пространством
Что касается распределения помещений по размеру, здесь придется руководствоваться многими составляющими, ведь проект одноэтажного дома на 3 спальни предполагает, что необходимо разместить:
- Гостиную.
- Кладовку.
- Возможно, небольшое помещение под гардероб.
- Кухню.
- Столовую.
- Санузел общий или раздельный.
Как можно увеличить функциональность
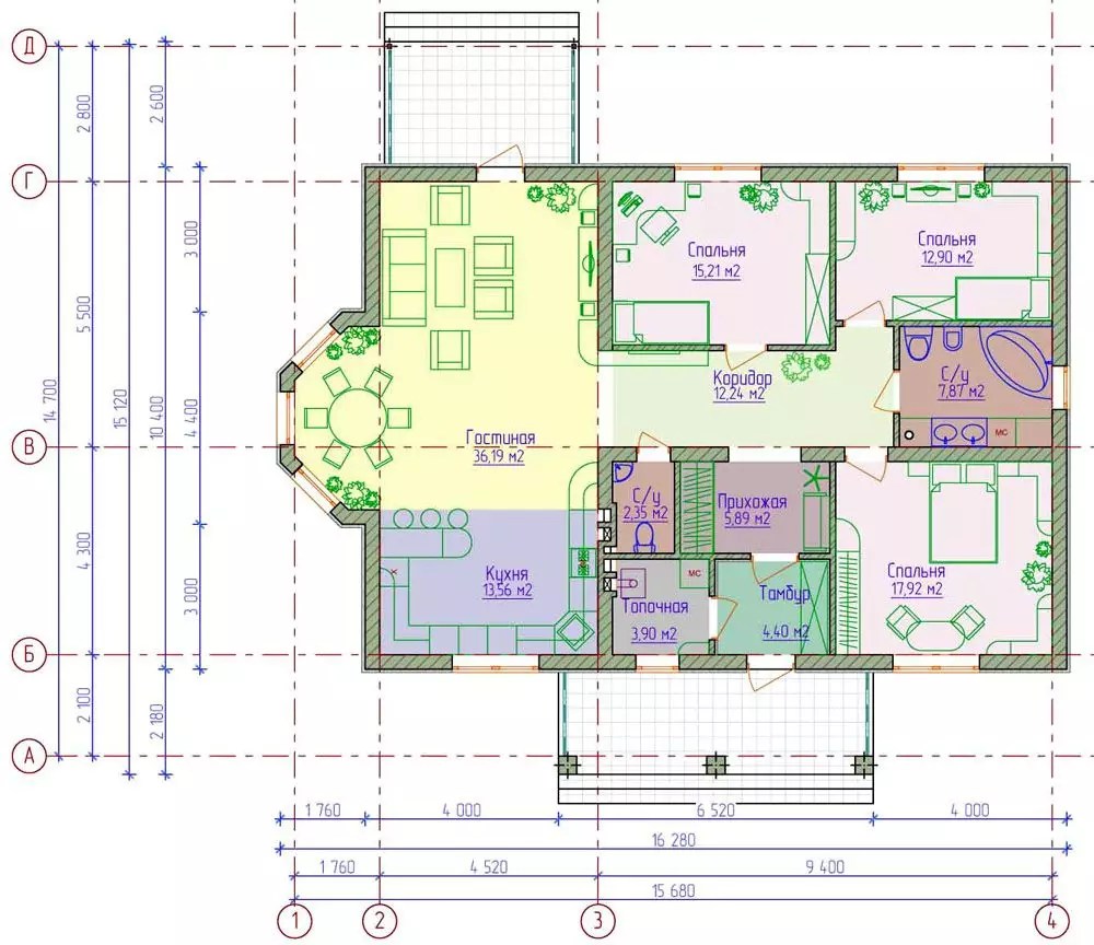
Любой план одноэтажного дома с тремя спальнями показывает площадь каждого помещения.
Читать также: Проект одноэтажного дома с четырьмя спальнями – на что следует обратить внимание при выборе варианта
Соответственно можно рассмотреть полезную площадь для каждой комнаты:
- Гостиная может быть рассчитана с учетом всей семьи и максимально возможного количества гостей.
- Кухня планируется с точки зрения именно функциональности. Здесь учитывается необходимость именно удобного приготовления пищи.
- Площадь под гардеробы можно выделить в каждой из спален, а так же устроить один общий гардероб, и все это можно своими руками сделать.
- Помещение под котельную рассчитывается строго под котел и под его технологические требования
Пример проекта, в котором отдано необходимое помещение для котельной
Интересно, что привести все квадратные метры именно к функциональности помогает совмещение нескольких комнат.
Если не говорить о необычном зонировании, а остановиться на самых распространенных объединениях, то получается:
- Совмещенный санузел.
- Гостиная и кухня, или кухня и столовая. В этом варианте в любом случае можно выделить одно помещения под две зоны.
- Котельная и кладовка. Технологически совершенно неправильный вариант, однако он часто встречается в частных домах.
В частном коттедже можно идеально совместить кухню и столовую
Что интересно, такое совмещение позволяет не просто максимально использовать площадь, но и увеличивает конкретно жилую площадь, которую предоставляет одноэтажный дом с 3 спальнями.
Смысл в том, что каждое совмещение помещения означает минус перегородка или стена, а это плюс к общей площади. Даже несмотря на самые тонкие перегородки, их сечение не может быть меньше 10 см. К примеру, проект одноэтажного каркасного дома с тремя спальнями обязательно рассчитан с учетом материала, и здесь перегородки, по сути, не могут быть широкими.
Читать также: Планировка спальни – простое занятие для души, но с подтекстом
Кстати, вариант с совмещением помещений дает возможность рассматривать и смету по-другому. Цена такого совмещения естественно ниже, чем при наличии перегородок. Плюс отсутствие дверей между комнатами.
Все намного боле упрощается, если в реализацию идет проект одноэтажного дома 10х10 с тремя спальнями. Такие цифры говорят о том, что для планирования есть 100 квадратных метров, а это уже нормальная возможность организовать любое помещение практически без ущерба для его площади.
Плюс на такой площади можно не совмещать кухню и столовую, спроектировать достаточно большую гостиную, отдать необходимые квадраты под кладовую и сделать раздельными туалет и ванную.
Нельзя сказать, что есть определенная инструкция для проектирования на все случаи жизни, каждый раз, если разговор касается именно частного дома, коттеджа, проектировщик делает план, соизмеряя его с потребностями будущих владельцев.
Проект 10х10 позволяет спокойно планировать все помещения
Окна
Панорамные окна в проекте Windows Panorama визуально еще больше расширяют внутреннее пространство гостиной и спален, растворяя границу улица-дом.
При проектировании положение и размеры оконных проемов контролировались снаружи с соблюдением пропорций и симметрии по фасадам, с учетом примыкания к внешним стенам торцов шкафов и другой корпусной мебели и, разумеется, с учетом кратности газобетонных блоков! Для определения максимальных размеров 2х-камерных металлопластиковых окон без дополнительных разделений импостами я использовал следующие исходные данные:
- В проекте предусмотрены максимально возможные по размерам окна, в т.ч. панорамные в пол в жилых помещениях, при этом они не выходят за рамки стандартных размеров, а их стоимость соответственно не увеличивается за нестандарт.
- Стандартные размеры металлопластиковых окон ограничены максимально допустимой площадью стеклопакетов для стекла толщиной 4мм, которая составляет примерно 2,7м².
- Ширина ПВХ-рамы 100мм, ширина монтажного зазора 20мм. Итого, ширина проема больше размеров стеклопакета на 240мм по горизонтали и 240мм по вертикали.
Таким образом, двухкамерный стеклопакет со стеклом 4мм может иметь максимальные стандартные размеры 2м(h) х 1,35м. Размеры черновых проемов соответственно будут 2,24м х 1,59м, которые округляем до значений 2,25м х 1,6м для кратности газобетонной кладке.
Пристройки для проекта дома
Представляю вашему вниманию проект FH-4 UNit (от англ. блок, узел, модуль, единица), в состав которого входят
4
универсальные пристройки для дома: террасы, навеса для 2х автомобилей и 2х типоразмеров хозблоков.
Модульный принцип проектирования, который я пропагандирую, позволяет все перечисленные конструкции пристроить
к
жилому дому уже после возведения коробки на любом этапе строительства или после ввода дома в эксплуатацию по
мере появления денежных средств. Это даёт возможность правильно распределить бюджет, чтобы сначала въехать в
отделанный и полностью укомплектованный мебелью и техникой дом, а реализацию второстепенных пристроек
оставить
на потом. Без данных конструкций жить можно, но они повышают комфорт проживания и ликвидность дома, поэтому
предусмотреть их на плане участка – это правильное решение.
Посмотреть проект FH-4 Unit
Проекты одноэтажных домов до 150 м2: фото и особенности
Практически любая планировка одноэтажного дома площадью 150 кв м позволит разместить следующие виды помещений:
- не меньше 3 спальных комнат (иногда 4 или 5, если дом с мансардой);
- большую гостиную, столовую и просторную кухню площадью от 8 до 15 кв. м. Эти же помещения могут быть объединены в одно общее;
- два санузла – первый внизу, второй в мансарде.
Размещение других комнат – строго индивидуальное. При наличии в семье человека, работающего на дому, в их состав может быть включён кабинет. На первом этаже располагают баню, бойлерную и, иногда, гараж. Хотя в здании общей площадью от 120 до 150 кв. м вообще может не быть мансарды.
Планировка одноэтажного частного дома площадью до 150 кв. м
Планы одноэтажного дома 10 на 12 и 12 на 12: хороший выбор для больших семей
В большинстве случаев на плане одноэтажного дома с тремя спальнями 10×12 отмечается просторная гостиная, санузел, столовая и кабинет. Часть комнат может объединяться. Например, кухня и столовая обеспечат больше пространства при отсутствии между ними перегородок. А для дополнительного увеличения пространства стоит предусмотреть расположение жилой зоны в мансарде. Здесь же будет уместно смотреться ещё один санитарный блок и гардеробная для хранения вещей, не подходящих по сезону.
Планировка дома 10 на 12
При планировке зданий такого размера – при этом параметры дома могут немного изменяться в большую или меньшую сторону (примерно так же планируются постройки 10 х 12 метров) руководствуются такими факторами:
- расположение комнат вдоль сторон света. Желательно, что стены детских и спален смотрели на юг, а большая часть их окон – на запад, чтобы утреннее солнце не будило жильцов слишком рано;
- комнаты «дневной зоны» (гостиную и столовую) можно располагать ближе к выходу или к веранде, если она включена в план;
- форма жилых помещений должна быть прямоугольной.
Нежелательно делать любую из спален или гостиную проходными. А расчёт оптимальной площади выполняется в соответствии с нормой в 8 кв. м на одного ребёнка. Для супружеских пар достаточно спальни размером около 15 кв. м. Если же в здании проживает 2 семьи, можно предусмотреть для него отдельный вход.
Фото дома 10 на 12
План одноэтажного дома 12 на 12: аналог небольшой двухэтажной постройки
Любая выбранная по типовому или индивидуально разработанному проекту планировка одноэтажного дома 12×12 м представляет собой отличную возможность расположить комнаты в соответствии с требованиями жильцов и рекомендаций специалистов. Особенности такого здания:
- комфортное размещение от 2 до 6 человек даже без мансардного этажа;
- удобное расположение жилой зоны в верхней (мансардной) части и хозяйственных помещений внизу;
- возможность временного использования мансарды только в летнее время, а, при увеличении размеров семьи, перевод её помещений в полностью жилую зону.
Размеры одноэтажного дома 12×12 м позволяют разместить внутри и веранду, и гараж на один автомобиль, и мастерскую, и бойлерную. Санузлов для такого здания может быть и два, и даже три – если количество проживающих здесь постоянно семейных пар тоже равно трём. При этом для каждой семьи может делаться отдельный вход. Ведь при устройстве ломаной крыши общая площадь дома может превышать 200 кв. м, то есть быть примерно равной трём 2-х или 3-х комнатным квартирам.
План дома 12 на 12
План одноэтажного дома 11 на 11 и разнообразие вариантов
Вместительный одноэтажный дом 11 на 11 м с мансардой легко заменит собой не меньше двух полнометражных городских трехкомнатных квартир. Если же добавить к мансардному ещё и цокольный этаж, постройка позволит с комфортом проживать в ней семье из 6–8 человек. При этом у каждой пары будет собственная спальная, а у ребёнка – детская. Средний размер гостиной такого дома – от 20 до 30 кв. м, кухни – не меньше 10 кв. м. Из-за того, что наличие мансарды позволяет не экономить на пространстве, в хозяйственной зоне можно предусмотреть небольшую сауну и даже встроенный в дом гараж. А дополнением к жилой части станет кабинет и просторная веранда.
Проект дома 11 на 11
Проекты такого размера редко применяют для дачного строительства. Но, если дача 11 на 11 всё же будет строиться, в ней не обязательно предусматривать мансарду. Для большого частного дома мансардный этаж практически обязателен, так как позволяет эффективнее использовать подкрышное пространство. Большая часть проектов предполагает создание мансарды, делающей дом почти двухэтажным.
Фото дома 11 на 11
Статья по теме:
Как улучшить пространство маленького дома в один этаж
Есть нормы, гарантирующие удобство проживания. Так, на каждого члена семьи обязано быть как минимум 9 метров квадратных помещения. Если по каким, либо причинам имеется потребность обойтись этим минимумом, можно рассмотреть варианты оптимизации пространства. Для этого необходимо соединить практичное назначение комнат. К примеру, в спальной комнате расположить кабинет для работы, или поделить комнату ребёнка на зону для игр и территорию отдыха:
В решении данной задачи вам на помощь придут производственники раскладной мебели. Очень много вариантов мебели для детей, которая легко преобразуется в стол или шкаф.

Вы можете применить и двигающиеся перегородки для непостоянного разделения, ставить подиумы
При помощи грамотной планировки можно без труда выделить место под дополнительный сантехнический узел.
В доме за городом хорошая идея – сделать дополнительный выход из спальной комнаты в сад или на пристройку к дому.
Существенно сбережет пространство встроенная домашняя техника
Одноэтажный дом: преимущества и недостатки
Если вы решили начать строительство собственного дома, но не можете определиться, какая этажность будет наиболее оптимальной, то обязательно обратите внимание на проект дома 9. Не думайте, что одноэтажный дом – это пережитки прошлого, вовсе нет. В последнее время все больше и больше внимания жителей мегаполиса привлекают компактные коттеджи, способные обеспечить полнофункциональную площадь для проживания целой семье
В последнее время все больше и больше внимания жителей мегаполиса привлекают компактные коттеджи, способные обеспечить полнофункциональную площадь для проживания целой семье
В последнее время все больше и больше внимания жителей мегаполиса привлекают компактные коттеджи, способные обеспечить полнофункциональную площадь для проживания целой семье.
Типовой проект частного одноэтажного дома
Стоит отметить несколько наиболее значимых преимуществ таких сооружений, а именно:
- доступность. Так как строительство двухэтажных домов – это весьма недешевая задача, далеко не каждому человеку удается накопить необходимую сумму, чтобы стать владельцем дома своей мечты. Одноэтажные строения не только доступны, но еще и благодаря огромному разнообразию планов сооружений с мансардой, могут удивлять своими архитектурными решениями.
- комфорт и уют. Согласитесь, жить в огромном и пустом замке, даже при наличии большой семьи, нерационально. Кроме того, пустующие комнаты все равно будут требовать обогрева помещений, поэтому, это будет требовать немалых ежемесячных трат на оплату коммунальных услуг или покупку топлива для котла.
- -удобство для детей и пожилых людей. Разумеется, никакой двухэтажный дом невозможно представить без лестницы. Но она, в свою очередь, может стать немалым препятствием, а иногда даже угрозой безопасности для малышей и пожилых родственников.
Небольшой, но уютный одноэтажный дом Но, несмотря на все перечисленные преимущества, одноэтажные дома имеют определенные недостатки. Они не всегда практичны в том случае, когда у вас большое семейство. Если вы решили возвести дом, то вам наверняка, хочется обеспечить комфорт проживания для себя и родных. Именно поэтому, планировка дома 9 на 11 одноэтажный должна продумывать то количество помещений, которое понадобиться вам. Если метров площади будет недостаточно, то вы можете возвести коттедж с мансардой. Мансарда – это превосходный вариант для всех людей, которые приняли решение отказаться от возведения капитального сооружения, но все-таки хотят задействовать чердак, реализуя проект дома 9 на 11 м. Кроме того, стоит отметить также и то, что сейчас весьма не просто подобрать подходящий участок, под те чертежи, которые размещены в сети. Как правило, в таком случае, целесообразно воспользоваться услугами опытных проектировщиков, которые знают свое дело, чтобы без погрешностей рассчитать все необходимые строительные работы и уберечь себя от неоправданных трат на материалы.
Удачный проект коттеджа 9 на 11 с функциональной планировкой
Многогранность современных разработок
Многогранность современного строительства жилых домов не просто радует, а впечатляет. Проектирование производится грамотными архитекторами, которые разбираются не только в дизайне, но также искушены в инженерной геологии и механике грунтов.
Возможность специального проектирования
В некоторых ситуациях приходится создавать специальные проекты домов. Это необходимо, когда:
- типовые проекты не соответствуют пожеланиям заказчика;
- есть необходимость нестандартного малоэтажного строительства;
- грунт на участке относится к пучинистым или там сильный уклон.
Возможность дополнительных услуг
Принцип устройства свайно-ленточного фундамента для пучинистых грунтов
Большинство архитектурных бюро предлагают своим клиентам ряд дополнительных услуг. К этой категории можно отнести:
- проектирование фундамента с учётом грунта и уклона участка;
- оригинальные дизайнерские разработки зданий, интерьера и экстерьера;
- реализация типовых коттеджей под современные коммуникации, как то: отопление, водопровод, канализация, кондиционирование и вентиляция;
- монтаж антиобледенения (греющих кабелей) и громоотводов;
- подготовка шаблона для составления сметы.
Что входит в проектную документацию
Компания в обязательном порядке должна предоставить заказчику проектную документацию с максимально возможными подробностями. Сюда включаются пять основных пунктов:
- Конструктивный раздел (КР).
- План здания с размерами каждой комнаты, конфигурацией кровли и т. п.
- Схема отопительного контура.
- Схема электропитания всех жилых и технических помещений здания.
- План разводки системы канализации (с учётом септика) и водопровода.
Примечание. Компания обязана предоставить заказчику комплект проектной документации с мокрыми печатями в двойном экземпляре.





































