Основные моменты проектирования дома с гаражом и мансардой
Перед тем как остановиться на типовом проекте или оформить заказ на индивидуальный вариант постройки, следует определиться с ключевыми моментами. Наряду с привлекательным экстерьером строения внимания заслуживают такие позиции:
Чтобы избежать ошибок, разработку проекта лучше поручить специалистам
- выбор основного материала для строительства здания;
- сочетание постройки с окружающим дизайном ландшафта;
- соответствие очертания сооружения размерам земельного участка;
- выбор конструкции крыши здания;
- необходимое утепление кровли мансардного этажа;
- планировка внутренних помещений.
Разработку плана дома с мансардой и гаражом рекомендуется доверить специалистам, в числе которых должны присутствовать архитекторы, инженеры, строители и дизайнеры. Благодаря этому удастся исключить неточности в расчетах и технические ошибки в проекте.
Особого внимания требует крыша, конструкция которой должна быть продумана тщательным образом. Влажный теплый воздух, поднимаясь из дома, образует конденсат, а природное внешнее воздействие в виде атмосферных осадков и солнца могут ухудшить состояние внутренней отделки верхнего помещения. Чтобы такого не случилось, следует грамотно организовать тепло-, гидро- и пароизоляцию.
Проекты домов с мансардой и гаражом: отличительные черты коттеджей
Дом с мансардой – фото наглядно отображают различные варианты – является наиболее рациональным решением для небольшого участка, позволяющим увеличить жилую площадь без сокращения земельных угодий. Наличие личного транспорта становится причиной еще одного популярного приема – строительства дома с гаражом.

Проект дома с мансардой и гаражом для одного автомобиля
Проекты коттеджей с гаражом и мансардой обладают рядом преимуществ:
- благодаря совмещению двух функциональных зон удается снизить затраты, связанные с разработкой проекта и выполнением строительных работ;
- смежное расположение жилой зоны и гаража создает комфортную обстановку в последнем, что приводит к снижению затрат, связанных с отоплением гаража;
- создание внутреннего прохода позволяет беспрепятственно перемещаться из комнаты в гараж, не выходя на улицу, что особенно удобно в период ненастья;
- создание мансардного помещения обеспечивает увеличение жилой площади, что особенно актуально для одноэтажных построек;
- компактное многофункциональное сооружение позволяет существенно сэкономить свободную площадь земельного участка;
- строительство мансарды обойдется значительно дешевле, чем возведение второго этажа;
- мансардный этаж позволяет дополнительно утеплить жилое помещение, избавив его от сквозняков;
- пристроенный гараж будет стоить намного меньше, чем отдельно стоящий элемент;
- строения имеют стильный и презентабельный внешний вид, заметно выделяющий их на фоне других построек.
Проекты
На сегодняшний день имеется множество проектов домов с мансардой и гаражом разного метража и с разным наполнением. Есть варианты с одним и несколькими этажами, с цокольным ярусом, баней или винным хранилищем и даже с террасой над гаражом. Каждый вариант заслуживает отдельного рассмотрения.
Проект зависит и от общего метража дома. Например, коттеджи площадью 120-150 кв. м намного проще оборудовать мансардой или гаражом. Мансарда получится большой и вместительной, а гараж можно пристроить с любой стороны (с фасада или с торца)
Ниже предлагается несколько идей для проектов, каждая из которых может помочь вам окончательно решить, каким же вы хотите видеть свой дом с мансардой и гаражом.
Маленький дом
Пристраивать гараж к небольшому дому площадью до 100 м² нужно с умом
Если же вы – счастливый обладатель квадратного здания, то у вас есть возможность пристроить гараж так, как вам захочется.
Чтобы сделать веранду, придется постараться. Максимум, на что можно рассчитывать – это небольшая комната площадью приблизительно 12 кв. м. Однако она может использоваться как полноценная спальня или детская, если должным образом провести отделочные работы.
Маленьким может быть не только одноэтажный дом. Имея компактное двухэтажное сооружение, от пристроенного гаража лучше вообще отказаться. Лучше всего построить отдельно стоящую гаражную конструкцию.
Мансарда же может быть сооружена только в качестве хозяйственного помещения, например, чулана.
Гараж на 2 машины
Счастливые обладатели больших домов разных площадей (8 на 10 кв. м, 15 на 15 кв. м и так далее) часто задумываются об обустройстве гаража для двух автомобилей. Сейчас многие семьи сталкиваются с тем, что и жена, и муж хотят иметь собственное авто, поэтому появляется надобность в оборудовании большого гаража. Для таких случаев проектные агентства специально разрабатывают подходящие планы. Некоторые из них вы можете увидеть на изображениях ниже.
В этом случае оборудовать мансарду над гаражом просто необходимо. Она получится большой и вместительной. Для полноты эффекта можно отказаться от стандартных стен, заменив их остеклением.
С подвалом
Часто встречаются проекты, предусматривающие наличие цокольного этажа. В таком случае можно оборудовать гараж прямо здесь. Это поможет сэкономить пространство, а также сделает общий вид дома более интересным. По соседству с гаражом можно обустроить баню или парную. В повале она не будет никому мешать, в то же время, предоставляя возможность попариться в любой момент.
Выбирайте любой готовый проект

Наши разработчики предлагают свои услуги для разработки проекта дома с мансардой под ключ. Мы можем взять в основу любой из наших готовых проектов, и внести в него небольшие изменения в соответствии с вашими пожеланиями. Доступна и разработка плана-проекта дома с нуля. Если вы хотите сэкономить на строительстве и получить при этом хороший добротный дом, мы рекомендуем выбрать любой из готовых проектов. Это позволяет нам снизить стоимость и самих работ, и оптимально рассчитать количество необходимых материалов. Проверенная опытом слаженная работа всех специалистов, работающих над вашим домом, позволит вам принять готовый проект точно в срок. Выбрать любой из проектов вы можете в нашем каталоге на сайте. Здесь представлены десятки интересных и стильных домов любой этажности. Сложность проекта, площадь застройки, варианты планировок и ориентировочная стоимость строительства представлены в разделе с каждым проектом вместе с фотографиями и описаниями особенностей и тонкостей работ. Получите исчерпывающую консультацию у специалистов нашей компании по телефонам в любой день.
Обратившись к нам, вы за короткий срок получите чертежи и спецификации. Это позволит вам без временных потерь перейти к строительству. Цена нашей работы определяется объективными расчётами. Она зависит:
- От сложности вашего проекта;
- От объёма работ по проектированию;
- Особенностей ваших пожеланий;
- Сроков решения задачи.
Какую кровлю предусмотреть в проекте дома с мансардой и гаражом: фото примеры
Обычно в типовых проектах домов с гаражом и мансардой предусматривается кровля, одновременно покрывающая основное здание и пристройку в виде гаража. Существуют варианты, у которых одно из мансардных помещений обустраивается над гаражом. Сразу можно предположить, что для таких зданий подойдет любой тип кровли, это наглядно отображено на фото проектов домов с гаражом на 2 машины. Как показывает практика, некоторые варианты экономически необоснованы, поскольку требуют значительных финансовых затрат. Кроме того, некоторые типы конструкции нельзя устраивать в определенном климатическом поясе из-за большой высоты строения.
В проектах небольшого дома с мансардой и гаражом наиболее подходящими типами кровли являются двускатные, вальмовые и полувальмовые, что наглядно отображают фото. Самым простым в исполнении вариантом является двускатная конструкция. Однако из-за такой кровли мансардное помещение будет маленьким, узким и неудобным.
Вальмовая и полувальмовая крыши относятся к четырехскатным. Благодаря таким ломаным конструкциям удается задействовать 90% площади мансардного помещения, получив при этом удобные жилые комнаты. Однако для проектирования подобных сложных конструкций понадобится помощь специалистов. Такие мансардные крыши выглядят весьма эстетично и оригинально, подчеркивая уникальность строения.

Для дома с мансардой наиболее подходящими будут двускатная, вальмовая или полувальмовая крыши
Большой популярностью пользуются проекты мансардных домов, у которых кровля строения и гаража является единым целым. Однако, с практической точки зрения наиболее удачным будет вариант, где верхняя часть гаража будет служить основой для создания террасы мансарды.
Выбор материала для возведения дома с мансардой и гаражом: фото примеры
Для возведения коттеджа с мансардным этажом и гаражом можно использовать кирпич, пеноблоки, газобетон, деревянный брус, сэндвич-панели. Каждый вариант имеет неоспоримые достоинства и недостатки. Выбор материала зависит от климатической зоны местности и характеристики грунта.

Популярным материалом для строительства домов является древесина
Классическим материалом для строительства домов является кирпич, имеющий невысокую стоимость, он является хорошим тепло- и шумоизолятором. Кирпичная стенка – одна из самых устойчивых конструкций, которая способна выдержать вес мансарды. Несущие стены не нуждаются в укреплении, что позволяет сэкономить на строительстве дома. Данный материал создает добротный надежный внешний вид конструкции.
Еще одним традиционным материалом для возведения невысоких построек является древесина. Она, как и кирпич, обладает высокими тепло- и шумоизоляционными характеристиками. К тому же это экологически чистый продукт. Дом из деревянного бруса будет иметь презентабельный внешний вид. Помимо этого, деревянная постройка сможет простоять более 50 лет.

Сэндвич-панели – это трехслойный материал, который используется в строительстве каркасных домов
Однако древесина склонна к быстрому воспламенению, что увеличивает риск возникновения пожара. Это может стать причиной уничтожения не только жилого пространства, но и автомобиля, находящегося в гараже. К тому же материал имеет довольно высокую стоимость, что более приемлемо для людей, не ограниченных в финансах.
Современный строительный материал для возведения домов с мансардой
Сегодня большой популярностью пользуются газобетонные или газосиликатные блоки. Они имеют такие же эксплуатационные характеристики, что и кирпич, однако процесс возведения здания значительно упрощается. Элементы характеризуются небольшим весом, благодаря чему строительные работы можно выполнять в одиночку. Это также способствует снижению нагрузки на фундамент строения. Однако материал обладает худшей несущей способностью, что следует учитывать еще на этапе проектирования. Наглядное применение материала можно увидеть на фото проектов домов из пеноблоков с мансардой и гаражом.
Сэндвич-панели поставляются в виде готового комплекта. Составные элементы конструкции изготавливаются по предварительно разработанному проекту мансардного дома с гаражом, учитывая расположение комнат. СИП-панели собираются согласно плану-чертежу. Спланировать дополнительно гараж или мансарду после возведения панелей не представляется возможным.

Газосиликатные блоки — обладают характеристиками кирпича и имеют небольшой вес
Сооружение каркасного дома с гаражом и мансардой выполняется легко, однако здесь важно правильно рассчитать нагрузку на каркас. Если этого не сделать, строение не выдержит и сложится как карточный домик
Использование данного материала позволит облегчить процесс выполнения внутренней отделки.
Советы
Существует большое количество советов по поводу того, как следует составлять проект дома.
Что касается проектных планов домов с мансардой и гаражом, то здесь есть несколько специфических правил:
- Обязательно нужно согласовать проект в вышестоящих инстанциях. Лучше купить готовый проект или обратиться за индивидуальным планом к специализированным организациям. Они проведут все расчеты и подготовят все необходимые документы.
- Рассчитывайте нагрузку на стены и основание. Именно поэтому лучше планировать мансарду еще в начале проектирования.
- Если утеплять гараж не обязательно, то гидроизоляцию непременно нужно сделать на высшем уровне, чтобы избежать появления коррозии на авто.
Проекты домов с гаражом
При выборе проекта дома с гаражом и мансардой следует принять во внимание его этажность. Если строение будет иметь два этажа, следует подумать о назначении комнат, которые будут находиться непосредственно над гаражом. Одноэтажные постройки больше подходят для маленьких семей
Одноэтажные постройки больше подходят для маленьких семей.
Проекты одноэтажных конструкций
Одноэтажные дома с гаражом представляют собой удобный вариант при небольшом количестве проживающих. Преимущества таких зданий неоспоримы:
- высокая экономичность;
- вход в гараж может осуществляться как с уличного пространства, так и напрямую;
- гараж и дом отапливаются общей системой;
- помещение для хранения автомобиля может использоваться как тренажерный зал.
В одноэтажных сооружениях все проемы и пролеты следует рассчитывать очень точно. Это позволяет создавать архитектуру дома более комфортабельной. Чтобы проект максимально отвечал потребностям хозяев, следует просмотреть фото готовых сооружений.
Проекты двухэтажных построек с гаражом
Дома с двумя этажами являются довольно популярными. Такие сооружения представляют собой комфортные жилища. Если сравнивать с одноэтажными домами, подобные проекты отличаются большей площадью. В них можно оптимально зонировать имеющееся пространство.
При постройке жилища в большом городе, постройка двухэтажного сооружения станет оптимальным решением. Здесь может разместиться даже большая семья. Обычно размеры таких построек равны до 15 м в ширину, и до 25 м в длину. Площадь таких домов равна 140-500 кв. м. Для небольшого домика эти показатели являются очень неплохими.
Возводятся двухэтажные дома с гаражом и мансардой из таких материалов:
- блоки газобетона;
- железобетонные плиты – одно из самых надежных решений при устройстве домов с двумя и более этажами;
- битумная черепица;
- монолитные плиты;
- природный камень.
Здесь все зависит от желаний хозяев дома.
Проект дома с подвалом
Обычно наличие цокольного этажа подразумевает создание безукоризненной конструкции основания. Это условие является важнейшим фактором безопасности дома. Такие здания наиболее устойчивы. Именно поэтому цокольный гараж представляет собой отличное решение.
Часто фундамент и стены основательных подвальных помещений возводятся из бетона. Иногда основание изготавливают из кирпича. Если грунт под основанием довольно слаб, нужно все блоки установить на железобетонную подушку. Последняя, в свою очередь, укладывается на песчаное основание.
Если грунт сухой, для создания стен можно выбирать изделия с пустотами внутри. Они способны обеспечить оптимальную прочность стен подвала.
Серьезные ошибки
Довольно часто при возведении дома с цокольным этажом владельцы земельных участков допускают серьезную ошибку, негативно влияющую на прочность всего сооружения. Нередко хозяева решают сэкономить на гидроизоляции цокольного этажа. Однако в условиях постоянной сырости будут разрушаться не только стены и другие конструктивные элементы подвала, но и предметы, которые в нем находятся.
Если излишне заботиться о прочности дома, сооружение цокольного этажа обойдется довольно дорого. Иногда его цена сопоставима со стоимостью постройки всех остальных элементов дома. Это финансово невыгодно.
Советы по строительству
Проект дома с цокольным этажом имеет некоторые особенности, которые должны быть учтены еще во время планирования. Профессиональные строители рекомендуют соблюдать такие требования:
Перед постройкой дома следует оценить качество грунта. Для этой цели вырывают траншею, в которой специалисты анализируют срез почвы.
Перед постройкой дома следует выкопать метровый котлован и заполнить его толстой стяжкой. По периметру конструкции укладывают блоки фундамента
Стоит обратить внимание на максимальную плотность стыковки бетонных элементов. Не стоит забывать про отверстия для труб коммуникаций.
Блоки основания скрепляются цементом.
Над цоколем следует установить армированный пояс
Для этой цели нужно связать арматуру всей постройки.
Стены сооружают из кирпичей
Не стоит забывать про отверстия для труб коммуникаций.
Блоки основания скрепляются цементом.
Над цоколем следует установить армированный пояс. Для этой цели нужно связать арматуру всей постройки.
Стены сооружают из кирпичей
Их тщательно гидроизолируют.
К дому нужно подвести коммуникации, а также провести монтаж окон и дверей.
Стоит ознакомиться с фото готовых домов с цокольным этажом.
Планировка дома со встроенным гаражом
Такую планировку могут иметь любые дома. Рассмотрим спроектированные по этому типу здания различной этажности.
Одноэтажный дом
Для удобства проживания применяется зонирование. Общая площадь этажа делится на две части:
- Гаражное помещение, к которому могут примыкать: подсобка, мастерская, кладовая, котельная;
- Жилая зона.
Въезд в гаражный бокс целесообразно размещать с той же стороны, что и главный вход.
Вход в жилую зону из технической осуществляется через тамбур, который выполняет роль буфера для защиты от шума, выхлопных газов. Непосредственная близость к кухне удобна, когда нужно занести в дом продукты из магазина или кладовки.
Размеры жилого крыла зависят от состава семьи, количества помещений. Габариты 10*10 метров позволяют комфортно разместить большую кухню, гостиную, 2 спальни, кабинет.
Деление помещений на техническую и жилую зоныИсточник https://hotplans.by/wp-content/uploads/2018/08/P163-Plan-1024×895.jpg
Такой дом со встроенным автогаражом подходит для постоянного проживания и, благодаря простой форме, легко размещается на участке.
Въезд для автомобиля размещается с той же стороны дома, что и основной вход.Источник www.kbprojekt.pl
Рекомендованные размеры гаража на 1 машину – 4*6 м. Это обеспечивает удобный въезд, пространство для обслуживания машины, место для хранения запчастей. Рассчитать длину и ширину под конкретный автомобиль можно, если прибавить к длине машины 1,5 м, а ширину замерить с открытыми дверями и прибавить 0,5 м.
Если внутри помещения нужно разместить 2 автомобиля, то его минимальные размеры – 5,5*6 м при въезде в одни ворота и параллельной парковке машин. Длину и ширину следует увеличить, если в помещении планируется устроить места для хранения или необходимо разместить дополнительно мотоцикл, лодку, другую технику.
План дома с гаражом на две машиныИсточник belgorodproekt.ru
При постановке автомобилей друг за другом размеры бокса должны быть не менее 4*11 м. Такой гараж может быть с одним выездом или с двумя (сквозной проезд). Помещение получается протяженным, поэтому при планировании могут возникнуть сложности, так как вдоль технической зоны следует размещать нежилые помещения.
Дом в два этажа или с мансардой
При планировке дома, предусматривающей встроенный автогараж, зачастую бывает необходимо увеличить жилую площадь за счет мансардного или второго этажа. В этом случае следует помнить, что над гаражным помещением нежелательно размещать спальни. Больше всего подходят для расположения над ним:
- спортзал;
- бильярдная;
- холл;
- подсобные помещения;
- санузлы;
- зимний сад;
- терраса.
Зимний сад подходит для размещения над гаражным помещением.Источник www.sov-dom.ru
При разработке планировки двухэтажного дома с гаражом необходимо продумать набор помещений на разных этажах. Обычно на первом, помимо бокса и других технических помещений, размещают кухню, гостиную, при необходимости комнату для гостей или спальню для пожилого человека. Это позволяет скомпоновать помещения так, чтобы комнаты для сна не делать смежными с гаражом.
Оптимальное соседство для гаража – терраса, котельная, гардероб, холл.Источник dsmango.ru
В случае с мансардным этажом, место для хранения автомобиля часто размещают под скатом кровли, не располагая над ним никаких комнат. На первом этаже планировка должна быть выполнена с соблюдением тех же основных правил, что и для одноэтажного дома.
Гараж под скатом кровлиИсточник i2.wp.com
Встроенный гараж в цокольном этаже
Подходит для участков со сложным рельефом, глубоким залеганием грунтовых вод. Без серьезных затрат на гидроизоляцию автомобиль будет повержен коррозии из-за сырости. Дополнительно нужно будет выполнить водоотведение с участка, чтобы избежать угрозы затопления нижнего уровня.
Кроме этого, потребуется оборудование наклонной площадки для въезда, а также дренаж по периметру здания, чтобы дождевая и талая вода не затекала в гараж.
На участках с перепадами рельефа устройство гаража в цокольном этаже оправдано и выглядит эффектно.
Дом в двух уровнях на сложном рельефеИсточник gtspeed.us
Если цокольный этаж занимает всю площадь здания или большую ее часть, кроме гаражного бокса там удобно разместить сауну, комнату отдыха, котельную, подсобные помещения.
Размещение в цокольном этаже технической зоны и сауны.Источник zap-dom.ru
Планировка и расположение на участке
Чтобы жилище соответствовало вашим ожиданиям, было стильным и функциональным, необходимо тщательно продумать размещение объекта и его планировку.
Дом располагается на возвышенности, если она имеется на участке. Такое размещение позволяет обеспечить хорошее естественное освещение внутри дома. Если участок ровный или находится в низине, то строение возводится на северо-востоке. Оно будет освещаться солнцем максимально долго. Фасад должен был обращен к югу. В этом случае можно пристроить террасу. Въезд в гараж нужно размещать на максимально близком расстоянии к воротам. Перед въездом должно оставаться место для кратковременной парковки.
Что касается внутренней планировки, то проекты домов с гаражом под одной крышей предполагают, что гараж и подсобные помещения располагаются с северной стороны. Гостиную размещают на юге. На восточной стороне стоит обустроить спальни, детские и гостевые комнаты. На западе можно расположить такие комнаты, как столовая, общая и игровая. Для котельной и узлов коммуникаций нужно выделить место в задней части гаражного помещения.
Оборудуя котельную в гараже можно заодно утеплить и сам гараж, установив в нем радиаторы Источник vi.decorexpro.com
Между гаражом и жилой частью можно обустроить тамбур. Он сократит потери тепла, если гаражное помещение неотапливаемое. В тамбуре можно разместить котел и отопительное оборудование.
Архитектурный стиль – выбор хозяина. Нужно учитывать форму крыши и оформление участка. Если территория большая, можно дать волю фантазии. Отличное решение – классический и викторианский стиль. На маленьком участке лучше отдать предпочтение современным направлениям дизайна – минимализму и хай-тек.
Материалы для строительства
Материалы для твоего дома должны быть в первую очередь теплыми, иначе в результате ты потратишь на отопление больше, чем на теплоизоляцию. Не забывай про слой минеральной ваты, пенопласта или другого утеплителя. Этим должны заниматься профессионалы, которые смогут просчитать расположение точки росы, чтобы конденсат не скапливался между стеной и изоляцией.
Кирпич красивый, долговечный, удобный и прослужит до ста лет, но он тяжелый, его долго укладывать и нужен крепкий фундамент. Пористые керамоблоки проще в укладке и больше по размеру, но чувствительны к повреждениям и дороже.
Газобетонные блоки не горят и хорошо защищают от мороза и шума, но при неправильном обращении могут трескаться и ломаться. Дерево – полностью натурально и экологично, но дает усадку и требует специальной обработки от гниения, огня и вредителей.

Варианты проектов для создания больших построек
Сегодня существует множество вариаций готовых проектов домов и коттеджей с мансардой и гаражом. Все они отличаются габаритами и внутренним наполнением. Существуют варианты одноэтажных и двухэтажных строений, помещений с цокольным этажом, винным хранилищем или баней.
Для строения дома с мансардой и гаражом можно воспользоваться готовым проектом
Дома с площадью более 100 м² намного проще обустроить. Фото планов строений наглядно отображают множество различных вариаций, в том числе это проекты гаража и мансарды на 2 машины. Мансардный этаж будет более вместительным благодаря большой свободной площади. Здесь существует возможность организовать несколько жилых комнат, обустроить спортзал, поставить бильярдный стол или создать просторную гостиную. Гараж, который может иметь разные габариты, несложно пристроить с любой стороны сооружения. При этом в обязательном порядке следует учитывать эстетику дома, чтобы пристройка не искажала его пропорции.
Возведение габаритного строения можно осуществлять по проекту одноэтажного дома с гаражом на 2 машины. Особенно это актуально, когда в семье насчитывается два автомобиля. Над гаражом можно организовать зимний сад, домашний кинотеатр или игровую, что наглядно отображено на фото гаража на 2 машины с мансардой.
Можно придать строению стильность и оригинальность, заменив стандартные стены мансардного этажа стеклянными. Также владельцы двух и более автомобилей по достоинству оценят проект дома с гаражом под домом, расположенным на первом этаже. Жилые комнаты в этом случае находятся в мансардном помещении, которое планируется исходя из личных предпочтений хозяев дома. Различные варианты можно увидеть на фото проектов гаража с жилой мансардой.
Вариации проектов небольших домов: фото примеры
Проекты домов с мансардой до 100 м² требуют более внимательного подхода при обустройстве жилого помещения и гаража. Если дом вытянутый и узкий, гараж пристраивают с торца. В случае квадратного строения пристройку можно выполнить с любой стороны. Еще одним вариантом, который часто предусматривается в проекте дома 6 на 8 с мансардой, является оборудование цокольного этажа, где можно обустроить гараж. Такое решение позволит получить компактное, вместительное, многофункциональное и стильное строение на небольшой территории. По соседству с гаражом можно обустроить парную или баню.
Проектирование небольшого дома с мансардой требует более внимательного подхода
Мансарда в этом случае будет иметь меньшую площадь. Здесь возможно расположение всего одной комнаты
Поэтому, чтобы получить максимум свободного пространства, особое внимание следует уделить конструкции крыши, выбрав ломаный вариант. Для дачной версии мансардное помещение может быть использовано в качестве хозяйственного помещения
В этом случае рекомендуется обустроить двускатную крышу, вследствие чего удастся существенно сэкономить на строительстве.
При создании дизайна домов часто применяются дополнительные архитектурные элементы, благодаря которым создается не только презентабельный и стильный внешний вид строения, но и расширяется свободное пространство внутри дома. Одним из таких элементов является эркер. Фото домов с гаражом и мансардой наглядно демонстрируют множество вариаций его расположения.
Также можно использовать колонны, эксклюзивные окна. Дополнительное обустройство террасы или веранды облагородит строение, сделав его более уютным. Для комфортного летнего отдыха отнюдь нелишним будет создание балкона.
Если дом имеет прямоугольную форму, то гараж лучше расположить с торца
Внимания заслуживает проект дома с мансардой (фото это наглядно отображают), где гараж покрывает плоская крыша, которая является основанием террасы. Эстетичность и элегантность конструкции достигается умелым комбинированием отделочных материалов. Для большой семьи придется по душе просторный коттедж с мансардой, увенчанной ломаной крышей, что обеспечивает максимальное целевое использование мансардного этажа.
Прежде чем определиться с конкретным вариантом, следует подробно изучить различные проекты, где в плане дома с мансардой и гаражом представлены всевозможные вариации внутренней планировки помещений. Опытные специалисты адаптируют выбранную разработку под конкретный регион и внесут необходимые изменения, основываясь на пожеланиях заказчика.
Крыша для дома с мансардой
Мансарды пришли к нам с легкой подачи французского архитектора Франсуа Мансара, так что в своем классическом исполнении они сохранили флер французской утонченности. Это подчеркивают классические двухскатные крыши со слуховыми окнами и фахверковыми фронтонами. В противовес современная скандинавская мода – четырехскатные крыши под цвет фасадов.
Легкий оттенок средиземноморского стиля придают многощипцовые крыши причудливой формы. Ими можно укрыть сразу несколько мансард в больших коттеджах. Викторианские особняки принесли моду на асимметричные кровли с изогнутыми линиями на фронтонах. Английским домам с мансардой свойственен большой уклон скатов, а в современной интерпретации – вальмовые крыши.
В небольших европейских городках все чаще встречаются маленькие частные дома с аккуратной односкатной кровлей над мансардой. Это очень минималистично, функционально и сравнительно бюджетно. А модна на эко-тренды и энергоэффективность привела к активному использованию массивного остекления и солнечных панелей.
Все классические виды черепицы хороши своим аккуратным внешним видом и огнеупорными свойствами. Но штучные материалы всегда дороже, с ними сложнее работать и они тяжелее и требуют укрепления. Листовая металлочерепица или профнастил легко настилаются, но не годятся для сложных форм кровли и шумят во время дождя.
Крыша
Как правило, в проектах с мансардой и гаражом предусматривается кровля, покрывающая сразу и гараж, и основное здание. Иногда над гаражом может даже обустраиваться одна из мансардных комнат. Для этих целей в теории подойдет любая конструкция, но на практике оказывается, что некоторые крыши требуют слишком больших финансовых вложений или не могут быть смонтированы в ветреном климатическом поясе из-за чрезмерной высоты. Выделяют несколько типов кровли, идеально подходящих для создания под ними мансарды.
К ним относятся:
- двускатная;
- вальмовая;
- полувальмовая.
Последние два варианта относятся к четырехскатным.
Мансарда под двускатной крышей получится маленькой, узкой и неудобной, однако этот вариант наиболее прост в исполнении. Он может быть спроектирован даже своими силами.
Мансардные конструкции под четырехскатными крышами представляют собой полноценные комнаты.
Требования к встроенным гаражам
Гараж, совмещенный с жилым домом, должен соответствовать ряду критериев:
Безопасность для жителей дома. Гаражное помещение необходимо полностью изолировать от жилых комнат. Это касается отдельных линий коммуникаций (распределительная коробка, электрические сети, система предохранителей), теплоизоляции. Стены помещения лучше покрыть антипиретиком и влагостойким составом, чтобы препятствовать развитию патогенного грибка и случайному возгоранию.
Важный параметр на практике – это качественная защита от шума, особенно при частых ремонтных работах в гараже. При составлении план-проекта следует уделить данному критерию максимум внимания.
При проведении лакокрасочных работ в пределах гаража следует обеспечить хорошую систему вентиляции с достаточной тягой. Также между гаражом и смежными жилыми комнатами оборудуют небольшой коридор с окном (дополнительная вытяжная система).
Планировка двухэтажного дома с гаражом требует детального подхода к обустройству фундамента.
Огромное внимание уделяется организации освещения в гараже. С одной стороны, должна быть оборудована отдельная распределительная коробка и серия предохранителей. С другой стороны, количество осветительных приборов должно быть достаточным для проведения ремонтных работ
С другой стороны, количество осветительных приборов должно быть достаточным для проведения ремонтных работ.
Важна также планировка участка с встроенным гаражом. К воротам гаража обустраивают широкую подъездную дорожку. В процессе создания проекта участка учитывают расположение основных функциональных зон между относительно друг друга, подветренную сторону, водоёмы (если имеются на смежной территории).
Проекты домов с мансардой и гаражом: отличительные черты коттеджей
Дом с мансардой – фото наглядно отображают различные варианты – является наиболее рациональным решением для небольшого участка, позволяющим увеличить жилую площадь без сокращения земельных угодий. Наличие личного транспорта становится причиной еще одного популярного приема – строительства дома с гаражом.

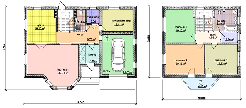
Проект дома с мансардой и гаражом для одного автомобиля
Проекты коттеджей с гаражом и мансардой обладают рядом преимуществ:
- благодаря совмещению двух функциональных зон удается снизить затраты, связанные с разработкой проекта и выполнением строительных работ;
- смежное расположение жилой зоны и гаража создает комфортную обстановку в последнем, что приводит к снижению затрат, связанных с отоплением гаража;
- создание внутреннего прохода позволяет беспрепятственно перемещаться из комнаты в гараж, не выходя на улицу, что особенно удобно в период ненастья;
- создание мансардного помещения обеспечивает увеличение жилой площади, что особенно актуально для одноэтажных построек;
- компактное многофункциональное сооружение позволяет существенно сэкономить свободную площадь земельного участка;
- строительство мансарды обойдется значительно дешевле, чем возведение второго этажа;
- мансардный этаж позволяет дополнительно утеплить жилое помещение, избавив его от сквозняков;
- пристроенный гараж будет стоить намного меньше, чем отдельно стоящий элемент;
- строения имеют стильный и презентабельный внешний вид, заметно выделяющий их на фоне других построек.
Особенности постройки
Такой вариант особенно хорошо подходит для участков, которые имеют небольшую площадь под застройку, где надо возвести дом, подсобные постройки, гараж и обустроить территорию, чтобы оставалось достаточно свободного места. Планировка одноэтажных домов с пристроенным гаражом позволяет экономить время на постройке зданий. К тому же потребуется закупить меньше материалов для возведения всего строения.
Очень удобно пользоваться постройкой для хранения авто, которое совмещено с домом Подобное решение особенно выгодно в плохую погоду. При этом тепло от дома может поступать в пристройку или оснащаться системой отопления, что позволяет с комфортом обслуживать авто даже в сильные морозы.
В помещении дополнительно можно хранить хозяйственные вещи, инструмент и так далее. Однако потребуется обеспечить хорошую звуко и теплоизоляцию между постройками.
Такой вариант подходит для участков маленьких размеровИсточник hitas.eu





































