10. Дизайн веранды-библиотеки
Если ни в вашей квартире, ни в самом доме не нашлось уединенного уголка для вас и коллекции ваших книг, значит им самое место на веранде. Конечно, оставлять стеллажи с книгами на открытой веранде на протяжении всего года не стоит. Стеллажи, может, и уцелеют, особенно железные, стеклянные или пластиковые, а вот книги могут пострадать. Если нет возможности сделать веранду закрытой, то книги нужно будет прятать, а стеллажи в таком случае лучше надежно прикрепить к стенам или к основанию.
Итак, для организации домашней библиотеки и места для чтения на веранде нам нужно придумать место для хранения книг. Со стеллажами и материалом для них все ясно. Дополнительно нам понадобится небольшой столик, куда можно поставить чашку чая, положить очки и прочие нужности, и удобное кресло. Это может быть и кресло-качалка, и обычная корпусная модель, и подвесная и плетеная или даже небольшая кушетка, лишь бы вам было удобно. Кстати во многих магазинах с садовой мебелью можно встретить целые садовые гарнитуры из натурального или искусственного ротанга. Это отличные вариант для открытых площадок.
Также понадобится источник искусственного освещения. Лучше, если это будет торшер на высокой ножке с поворотным плафоном. Разбавьте интерьер комнатными растениями, поставьте перед креслом пуфик для ног, повесьте на окна уютные занавески и наслаждайтесь своей личной библиотекой.
Детали интерьера
Кровля, перила, пол — все это элементы архитектуры, которые, безусловно, влияют не только на внешний вид террасы, но и на весь ландшафтный дизайн, но ведь помимо них существуют и необязательные детали. Те интерьерные элементы, которыми мастер подчеркивает уникальность своей работы, добавляет ей концептуальной завершенности.
Джакузи
Солнце, ванна, пузырьки. Джакузи уже давно стала обязательным атрибутом комфорта, а потому не будет ничего страшного, если вы установите ее прямо на террасе. А как это будет выглядеть смотрите на следующем фото.
Бассейн
Но какой бы большой ни была ванна, но ей все равно далеко будет до бассейна. Тем более что если построить его своими руками, то красота обойдется вам по вполне доступной цене. И, конечно же, фотопримеры.
Камин
А теперь нырнем из воды в пламя, ведь ничто так не завораживает, как горящий в очаге огонь. Камин давно уже перестал выполнять роль обогревательного элемента и служит исключительно для декора, а также в качестве действенного антидепрессанта. Посмотришь на пышущие жаром угольки и разом забываешь обо всех своих проблемах.
Качели
Вода, огонь, керамичесская плитка, на этом празднике стихий не у дел остался только воздух, который олицетворяют садовые качели. Некоторые их конструкции подойдут и для террас. Более того, они прекрасно впишутся в их интерьер.
3. Выбор места для веранды
Если перед вами стоит вопрос, с какой именно стороны дома лучше пристроить веранду, то стоит обратить внимание на следующие аспекты:
- В идеальном варианте веранда должна располагаться таким образом, чтобы вы смогли попасть на нее прямиком с входной двери. То есть непосредственно перед входом в дом. В таком случае ни снег, ни дождь не смогут препятствовать вашему свободному перемещению;
- К тому же, пристраивая веранду перед входом в дом, вы обеспечиваете себе дополнительную теплоизоляцию и защиту от ветра. Даже открытая веранда, оплетенная виноградом или плющом, не только будет привносить прохладу и затенять, но и защитит от ветра и попадания пыли в дом;
- Не всегда предоставляется возможность расположить веранду именно таким образом. Иногда перед фасадом здания слишком мало места. В таком случае можно пристроить веранду с торца. Выбирайте ту стену, которая не имеет оконного проема. Если перед входом в дом есть крыльцо, можно воспользоваться им как соединительным элементом между домом и верандой. Как правило, над крыльцом есть небольшой козырек. Если выдвинуть веранду немного вперед относительно лицевой стены дома на ширину козырька, а затем продлить крыльцо вдоль фасада до примыкания с верандой, получиться небольшой мостик. Соорудив над ним такой же козырек, вы сможете попадать на веранду прямиком из дома;
- Еще одно правило, которым следует руководствоваться при выборе места для пристройки, это вид, который будет открываться перед вами. Во многих случаях вся красота и различные декоративные насаждения расположены за домом. Значит, там и место для зоны отдыха. Даже если придется пожертвовать удобством прохода на веранду прямо из дома, вы ни сколько об этом не пожалеете в будущем;
- И последнее – не забудьте учесть ветровые потоки. Бывает так, что за углом дома, в одном и том же месте, в любое время года постоянный сквозняк или сильный ветер. Пристраивать открытую веранду в таком месте не стоит. Сидеть на постоянном сквозняке будет неуютно и вредно для здоровья.
Интерьер закрытой террасы
Каким бы не было чудесным помещение, но если вы не знаете, как его использовать, оно вам не нужно. Вкладывать несколько тысяч долларов в брендовое остекление для того, чтобы создать в доме еще одну кладовку — глупо. Это пространство необходимо приспособить для отдыха, ну или комфортной работы.
Ведь для многих представителей предполагающих творчество профессий поймать креатив среди стен спрятанного в глуби дома кабинета — невозможно. А вот на застекленной террасе им работать будет гораздо продуктивнее. Отсюда имеем, применение № 1.
Кабинет на террасе
Преимущество мобильного остекления на лицо. Вы работаете на свежем воздухе, пока погода позволяет, но при первых же признаках надвигающегося дискомфорта контур пристроенной к дому террасы драпируется панелями, и вы продолжаете творчество уже в кабинетной тиши. Смотри фото.
Обсерватория на террасе
А еще с террасы удобно наблюдать за звездами, а потому интерьер зимнего сада украсит пускай даже и любительский, но телескоп. Тут, кстати, пригодятся раздвижные трековые потолочные системы. С подвижной кровлей даже веранда превратится в обсерваторию.
Камин в зимнем саду
Не разочарует любителей комфорта и расположенный камин на террасе. Притом не имеет особого значения, выполнен ли он в классическом или современном стиле, использует в качестве топлива дрова, уголь или бензол. Комбинация стекла, огня и свежего воздуха все равно не оставит равнодушными никого из любителей релакса.
Столовая за стеклом
Пища особенно хорошо усваивается на свежем воздухе, да и аппетит нагуливается только на природе. Только представьте, обеденный стол среди буйства растений или даже на фоне сверкающих кристаллами сугробов. А еще лучше посмотрите тематические фото. Как вам такой интерьер?
Шахматы на террасе
Шахматы — игра королей, но постепенно она из дворцов переместилась в парки, скверы и стадионы. Вот только там наслаждаться игрой можно только в теплое время года и только в хорошую погоду. Дождь, порывистый ветер и даже шум мешают сосредоточиться на фигурах, но в застекленной террасе эти факторы не страшны.
Библиотека в павильоне
Также найдут применение для застекленной террасы и ценители настоящих, а не электронных книг, ведь там очень удобно обустроить библиотеку. Интегрированные в зону подоконника полки позволяют дотянуться до любимого томика, не прилагая никаких усилий.
Оранжерея за стеклом
Ну и, конечно же, прекрасно будут смотреться за стеклом живые растения: цветы, комнатные пальмы и другая радость, что позволяет нам наслаждаться «Африкой» даже в самые лютые январские морозы. А ведь приятно, когда за окном снег, а вы удерева читаете книгу.
Установка окон

Окна в закрытой веранде являются необходимым элементом. Для улучшения сохранения тепла в помещении лучше монтировать металлопластиковые стеклопакеты. Преимуществом таких систем является то, что полый профиль, из которого сделана рама окна, имеет низкую теплопроводность, что благоприятно сказывается на потерях тепла. К тому же металлопластиковые окна комплектуются 2-х и 3-х камерными стеклопакетами, которые аналогично плохо пропускают тепло.
При монтаже окна необходимо принимать во внимание свойства деревянного каркаса. Он может расширяться при впитывании влаги
Поэтому окно устанавливается с технологическим зазором. В противном случае его просто перекосит.
Установка окна на каркас производится при помощи анкерных болтов. Зазор между каркасом и окном заполняется монтажной пеной.
Красивые ограждения для террасы
Двигаясь сверху вниз, у нас пришла очередь и до ограждений. Тут каждый делает то, на что горазд. И в одном из предыдущих обзоров мы уже подробно проходились по всем вариантам подобных заборчиков
Сегодня хотелось бы обратить ваше внимание на наиболее приглянувшиеся из них
Ограждение из бревна
Если хотите удивить друзей, постройте террасу из бруса или оцилиндрованого бревна. Стоит пиломатериал сравнительно недорого, в обработке прост, обладает экологической чистотой и прекрасными тактильными характеристиками. А главное бревенчатые перила имеют свой неповторимый колорит. Тут и солидность, и традиции, и свежее дыхание природы. Одним словом — ляпота!
Кованые перила
Антиподом деревянной является не менее красивая терраса из металла. А если быть точнее, выкованная из стального проката. Тут результат полностью зависит от кузнеца. Но если повезет найти настоящего мастера, то итог вас не разочарует. Однако предупреждаем, волшебники металла оценивают свои услуги не дешево и практически всегда в долларах или евро.
Стеклянные перила
Мы уже говорили о красоте и полезности прозрачных навесов, панорамных окон, а теперь посмотрим, как выглядят стеклянные ограждения. Стекло прекрасно гармонирует с деревом, чёрным металлом, но особой популярностью у заказчиков пользуются никелированные ограждения со стеклянными фасадами. И в этом есть своя логика. И тот и другой материал предельно прост в уходе.
6. Дизайн веранды-гостиной
По той же банальной причине нехватки места внутри дачного дома можно организовать на веранде настоящую гостиную. А может, вы просто хотите быть ближе к природе. Поставьте напротив большого окна, выходящего в сад, уютный диван и пару удобных кресел. Для большой компании обязательно нужен журнальный столик.
Обратите внимание, что в последнее время мебель из деревянных поддонов приобрела огромную популярность. Мы считаем, что это просто идеальное решение для дачной мебели
Во-первых, по доступной цене можно закупить необходимое количество поддонов и самостоятельно придумать и спроектировать мебель по своим потребностям. Во-вторых, собрать такую мебель очень просто. Достаточно вооружиться саморезами и шуруповертом. При этом предметы получаются довольно прочными и крепкими. Для удобства сиденье и спинку украшают мягкими подушками.
Если вы планируете проводить вечера за просмотром телевизора, нужно продумать, куда его поставить и не забыть про розетку. Если гостиная предназначена исключительно для домашних вечеров, предусмотрите небольшой кофейный стол, где можно спрятать чайные принадлежности и розетку для чайника. Возможно, уместным будет оборудовать мини-бар. Добавьте гостиной уюта с помощью красивых занавесок и небольшого ковра.
Подумайте, что вам может потребоваться для создания приятного вечера, и обязательно организуйте это в своей гостиной на веранде. Возможно, вы всегда мечтали о гамаке или подвесном кресле-коконе. Так почему бы и нет? Лишь бы крепления были надежными. Не забывайте про озеленение веранды. Она хоть и служит связующим элементом между садом и домом, и позволяет наблюдать все прелести вашего ландшафтного дизайна из удобного кресла, свежие срезанные цветы в вазе не помешают. На открытых верандах уместными будут напольные горшки крупных размеров с цветущими растениями. Можно развесить по периметру горшки с цветущими петуниями или другими цветами.
Не стоит забывать и про освещение. Вечером сделать обстановку уютной и теплой помогут высокие напольные торшеры с тканевыми абажурами. На открытом пространстве можно обойтись светильниками в виде уличных фонарей. Можно создать атмосферу праздника и повесить под крышей гирлянду.
Особенности создания фундамента, крыши и навеса при возведении террасы или веранды
Перед тем как построить веранду к дому, нужно ознакомиться со всеми этапами строительства:
- определить место будущей постройки;
- выбрать понравившийся тип;
- запланировать оптимальную высоту, ширину и площадь;
- составить расходную смету с учетом стоимости материалов, инструментов и оплаты наемного труда (при необходимости);
- придерживаться определенных этапов проведения работ.

Перед началом строительства необходимо подобрать оптимальное место для постройки
Не во всех случаях требуется выполнение работ по возведению фундамента, но если планируется создание масштабной, капитальной пристройки, то именно крепкая основа поможет продлить срок жизни конструкции. Тип фундамента подбирается исходя из особенностей веранды, в зависимости от предполагаемого веса, размера и назначения.
Прежде чем построить веранду к дому своими руками, часто возводят столбчатый фундамент. В этом случае устанавливаются отдельные опоры, которые распределяются по всей площади будущего строения. При этом для каждого столба выполняется отдельная яма, на дно которой засыпается песок. После этого в готовые углубления опускают столбы и надежно закрепляют. В конце работ обязательно проводится обвязка рубероидом. Другие варианты основания:

Монолитно-плитный фундамент оптимально подойдет для террасы или веранды
- Винтовой фундамент относится к универсальным, потому как подходит для большинства типов грунта. Именно количество установленных свай будет определять несущие возможности конструкции. Для выполнения верхней части фундамента используется рама из деревянного бруса или металла.
- Ленточный фундамент считается оптимальным вариантом, если планируется создание тяжелой конструкции. В этом случае по периметру пристройки на глубину 50 см заливается монолитное основание. Если строение небольшое, глубину можно уменьшить.
- Плита. Простой в оформлении вариант, потому как для организации основания требуется убрать верхнюю часть грунта, засыпать его щебнем и уложить поверх плиту. Для организации пола в таком случае советуют использовать обрешетку, чтобы было теплее.
Чтобы построить террасу к дому и придать строению привлекательный внешний вид, нужно грамотно организовать крышу или выполнить навес. Если пристройка примыкает вплотную к дому, то на крыше укладывается такой же материал, как и на основном здании. В случае если терраса вынесена отдельно от здания или отличается внушительными размерами, лучше выполнить двухскатную крышу.

После организации фундамента выполняется монтаж напольного покрытия
Простым, удобным, недорогим и практичным материалом считается рулонная кровля. Это может быть гидроизол или рубемаст, характеризующиеся высокими пользовательскими характеристиками. Чтобы уложить подобный материал, предварительно монтируются деревянные стропила, сами листы крепятся при помощи оцинкованных гвоздей.

Подбирать крышу необходимо в зависимости от условий использования постройки
Благодаря привлекательному внешнему виду и простому монтажу, популярностью пользуется и гибкая черепица, которой можно накрыть веранду любой формы и площади. Кроме того, используются и такие материалы:
- профнастил;
- железные оцинкованные листы;
- поликарбонат.
Дизайн веранды закрытого типа
В зависимости от месторасположения веранды относительно сторон света зависит и сам дизайн помещения. От всевозможных погодных осадков и явлений закрытая терраса защищена полностью. Она может быть использована для различных целей:
- детская игровая комната;
- кухня или столовая;
- гостиная;
- зимний сад.
Если дизайн веранды продуман грамотно, то она сможет превратиться в практичную комнату для проживания, а самое главное – для отдыха. Большие окна и раздвижные двери смогут максимально приблизить людей к природе, которые находятся в этом помещении. Можно соорудить камин, поставить удобную мебель.
Остекленные крыша и стены закрытой веранды – замечательный вариант дизайна. Границы помещения такой приём визуально расширит. Эту самую светлую комнату можно будет превратить в помещение определённых увлечений, встреч.
В случае оборудования террасы в качестве детского уголка, здесь необходимо разместить:
- сухой бассейн заполненный шариками;
- домики для кукол;
- подвесные качели.
Подушки всевозможных форм и цветов украсят такое помещение. Для возможности занятия различными видами творчества следует поставить стол со стульями.
Планируя пользоваться террасой в холодное время года, нужно позаботиться об установке здесь:
- теплоизоляционных стеклопакетов;
- поликарбоната.
Обогреватели, различные камины позволят обогреть помещение.
Терраса и ее важность
Но что же такого особенного в террасе и почему ее правильное обустройство является необходимым условием комфортной дачной жизни? Возможно, реально обойтись и без нее? Оказывается, нет. Ведь терраса — это ровная площадка, имеющая свою строго обозначенную площадь и элементы, которые ее ограничивают. Раньше в качестве таковых выступали неровности ландшафта. Сегодня их заменили ограждения, элементы домов и других построек.
По своему целевому назначению, она является зоной отдыха, плавным переходом от внутрикомнатной духоты, к свежести дачного сада. Поэтому именно терраса перед домом является наиболее эффективным и востребованным решением.
- По своей конструкции, различают пристроенные террасы. Те, что устанавливаются возле дома, который и ограничивает их площадь.
- Отдельно стоящие. Это разнообразные беседки и павильоны. Их обустраивают в саду подальше от проходных зон.
- И интегрированные. К ним относится терраса в частном доме. Она может быть расположена на балконе, эркере или крыше, а то и являться продолжением гостиной. Но в любом случае она будет находиться на общем с домом фундаменте. То есть о такой постройке необходимо подумать еще на этапе составления проектной документации.
Но в чем же важность, спросите вы? И почему террасы строятся чаще всего именно на дачных участках? Ответ на этот вопрос кроется в самом целевом назначении постройки. А именно в ее позиционировании, как зоны отдыха
А ведь на дачу мы едем не только поработать, но и, главное, набраться за выходные сил, чтобы было с чем встретить следующую трудовую неделю. Не будет террасы — не будет и отдыха, а значит, и целесообразность приобретения загородного участка окажется под большим вопросом.
9. Каминный зал на веранде
Очень популярным в последнее время стало применение электро- или биокаминов для придания уюта гостиным в квартирах. Но согласитесь, тепло настоящего огня и треск дров не сможет заменить ни один искусственный камин. Именно на даче проще всего воплотить свои желания в реальность и построить действующий очаг. Только представьте, как замечательно будет посидеть холодными зимними вечерами перед открытым костром.
Главное отличие каминного зала от обычной гостиной в том, что не диван занимает почетное центральное место. В каминном зале приветствуется отделка настоящим или искусственным камнем, шкуры животных на стенах или на полу. Кстати дивана или кресел может и вовсе не быть. Достаточно большого матраса и множества подушек. Каминную полку можно украсить свечами и декоративными статуэтками. Только без должного опыта не стоит даже пробовать строить камин самостоятельно. Лучше обратиться к услугам профессионального печника.
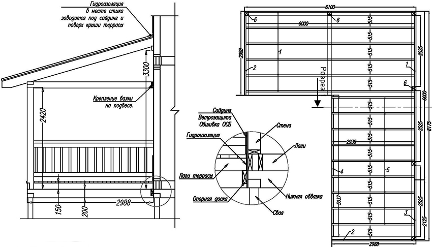
Обустройство каркаса

Каркас сооружается из оцилиндрованного бревна диаметром не меньше 120 мм или бруса с размером сечения не менее 150х150 мм. Из них изготавливают верхнюю и нижнюю обвязки, а также вертикальные стойки. Соединение конструкционных элементов происходит с помощью «прямого» замка. Для начинающего строителя, никогда не имевшего дела с деревом, такой замок не станет премудростью. Делается он довольно просто:
- Необходимо отмерить от конца отрезок бруса, который равен его ширине. Получится небольшой квадрат.
- Затем по начерченной линии ножовкой делается прорез глубиной равной половине толщины бруса.
- С торца с помощью топора отбиваем половину бруса и получаем паз.
- На конце другого бруса делаем аналогичный паз. Соединяем их таким образом, чтобы паз приходился на столб фундамента.
- Закрепляем соединение обвязки на столбе при помощи анкерного болта.
Дальнейший порядок работ по сооружению каркаса:
- При монтаже нижней обвязки вырезаются посадочные места для половых лаг. Если ширина веранды не слишком большая, то лага крепится к основанию дома и брусу нижней обвязки. Если же ширина будет большой, то они должны укладываться на дополнительные фундаментные столбы.
- При установке обвязки необходимо защитить дерево от воздействия влаги. В месте контакта обвязки с бетонным кирпичным фундаментным столбом обязательно укладывается рубероидная прокладка.
- При установке вертикальных стоек обязательно необходимо выровнять их по уровню, чтобы не иметь проблем с монтажом крыши.
- Все элементы каркаса соединяются болтовыми соединениями. Крепеж лучше взять из нержавеющей стали, так удастся избежать коррозии.
Напольное покрытие
И последним конструкционным элементом, который ми еще не рассмотрели, является напольное покрытие. А ведь его значение в плане эстетического восприятия террасы никак нельзя недооценить. Терраса — это и есть сама площадка.
Древесно-полимерный композит
Лидером покупательских симпатий тут стала террасная доска из древесно-полимерного композита. Этот материал легко моется, не гниет, не поддается коррозии, его не коробит на солнце и не ведет после каждой зимы. У него четкие геометрические формы и стабильный цвет. Изготовленная из террасной доски палуба навеса вас никогда не разочарует.
Клинкерная плитка для террас
В группе каменных покрытий она уверенно возглавляет ТОП. В этом клинкерная плитка обошла природный и искусственный камень, а также другие виды керамики. И понятно почему. Помимо широкой цветовой гаммы и красивого дизайна, клинкерная плитка относится к нескользким и предельно износостойким покрытиям
Важно лишь не разменяться на дешевую «Польшу» и приобрести если не немецкое, то хотя бы испанское покрытие
Террасы и веранды: фото проектов и важные моменты, о которых нужно помнить при строительстве
Чтобы пристроенная к дому своими руками веранда или терраса прослужила многие годы, следует тщательно подготовиться и спланировать ход работ
Важно правильно рассчитывать свои силы и не браться за работу даже при малейшей неуверенности в себе. Перед началом строительства советуют выполнить такие действия:

Все нюансы веранды нужно продумать еще на этапе проектирования
Определить выделенный бюджет с учетом даже мелких деталей. Зачастую дополнительные элементы декора: кованые оградки, необычная дизайнерская мебель и аксессуары – съедают львиную долю финансов.
Продумать детальный план, позволяющий хотя бы ориентировочно рассчитать количество используемого строительного материала, чтобы прикинуть растраты на возведение и ремонт. Тогда не придется столкнуться с недостатком средств в процессе работы.
Не экономить
Важно придерживаться уже готовых норм, которые определяют минимальный размер ступенек (15 см – высота и 25 см – ширина), оптимальная высота перил – 90 см. Требуется выбирать подходящее, надежное крепление и соблюдать правильный шаг крепежа.
Собрать нужные инструменты
Многие дорогостоящие приспособления: бетономешалку, болгарку и дрель – при необходимости можно взять в аренду, но вот всякие мелочи в виде уровня, удлинителей, молотка, отверток и др. нужно приобретать лично для себя.
В заключение. Террасы и веранды к дому, фото проектов которых предложены выше, играют не только декоративную роль. Это полноценные помещения с хорошим функционалом, способные увеличить полезную площадь жилья. В них можно устроить рабочий кабинет, место для отдыха, игровую комнату для детей. И очень скоро оказывается, что если веранды и террасы правильно обустроены, то все теплое время семья проводит именно там.
Проектирование веранды к дому, основные варианты пристроек
Современные террасы и веранды к дому (фото проектов представлены на странице) выглядят очень презентабельно. Веранда уже давно не является тамбуром с вешалкой для рабочей одежды или складом для хозяйственных принадлежностей. Вид из пристройки должен радовать глаз. Не рекомендуется размещать веранду вблизи соседского забора, а также на участке с видом на техническую зону (компостную кучу, баки, колодец). Лучше, если постоянными объектами наблюдения станут цветочные клумбы, деревья, детская площадка.

Проект открытой деревянной веранды пристроенной к дому
Если рассматривать современные фото проектов веранд к дому на даче, можно обратить внимание на большое разнообразие идей, форм и использованных материалов. Среди стройматериалов, используемых для возведения постройки, наибольшей популярностью пользуются следующие:
- дерево;
- кирпич;
- металл;
- поликарбонат;
- стекло;
- сэндвич-панели.

Лучше если веранда и дом выполнены из одинаковых материалов
Во время просмотра фотографий и выбора понравившегося варианта в первую очередь следует определить, впишется ли проект в рамки участка и станет ли он идеальным дополнением экстерьера. Например, не очень эстетично будет смотреться пристроенная красивая веранда к деревянному дому, у которого облупилась и выцвела краска на фасаде. Поэтому в некоторых случаях следует выполнить хотя бы косметический ремонт основного фасада, а потом уже продумывать возведение дополнительных строений.
Нередко при строительстве веранды к дому используется и сочетание различных материалов, таких как кирпич, стекло, металл или камень. При выборе нужно учитывать не только стоимость, но и наличие материала вблизи места строительства. Если на участке нет места, чтобы разместить все желаемые постройки, рекомендуют их объединять между собой, например, соединить с открытой верандой баню или летнюю кухню. Как пристроить веранду к дому своими руками? Рассмотрим наиболее распространенные варианты.

Проект веранды Г-образного типа пристроенной к дому
Цокольная терраса. Пристройку размещают на цокольном уровне основного здания и приподнимают довольно высоко над землей. Для обеспечения большей безопасности по периметру устанавливаются перила, а для удобного спуска в сад оборудуется лестница. Для установки обычно используются опорные столбы, а на завершающем этапе возведения оставшееся место между землей и террасой украшается деревянными или коваными решетками.
Открытая терраса к дому из двух (или больше) этажей. Чаще всего, независимо от количества этажей в главном строении, терраса выполняется двухэтажной, что позволяет обеспечить удобный доступ на верхние этажи дома. Зачастую высокие балки, используемые в качестве опор, имеют не очень привлекательный вид. Чтобы избежать неудобств, пространство под террасой используется для создания дополнительной площадки.

Застекленная веранда к дому может быть как отапливаемой, так и нет
Другие способы, позволяющие пристроить к дому террасу или веранду
Как уже говорилось, пристройка может прилегать только к одной из стен, выполняться по периметру дома или представлять собой вообще отдельную конструкцию, стоящую в другом конце участка
Важно при выборе места постройки учитывать особенности розы ветров данного региона и обустраивать строение с подветренной стороны




































