Как из однушки сделать двушку без перепланировки
Избежать осложнений позволит переделка однокомнатной квартиры без проведения масштабных ремонтно-строительных работ.
Варианты
Существует несколько вариантов превращения одной комнаты в две.
Например, если квартира с высокими потолками, больше трех метров, спальню можно сделать прямо под потолком, над кухней гостиной.
Варианты разделения комнаты:
- раздвижная перегородка для отделения спальной зоны;
- легкая ажурная стена позволит отделить гостиную и спальню;
- шторы займут очень мало места и при желании легко убираются;
- стеллажи для разделения рабочей и спальной зон, при этом главное, чтобы такая мебель не смотрелась громоздко.
В небольшой однокомнатной квартире, где в жилой комнате только одно окно сделать изолированные полноценные помещения не получится.
Можно устроить раздвижную систему, которая будет закрываться, только если это потребуется. Подобные перегородки должны большую часть времени быть открытыми, чтобы в отгороженную зону проникал естественный свет.
Однокомнатную хрущевку можно сделать двухкомнатной правильно расположив шкафы (они должны быть высотой до потолка), которые могут выступать в роли ширмы.
Подобный вариант актуален, если в помещении имеется два окна. Обеспечить шумопоглощение поможет пробковое покрытие (плиты) с обратной стороны такой перегородки.
Увеличить функциональность помещения в хрущевке без перепланировки поможет трансформирующаяся мебель.
Например, с помощью обычного раскладного дивана получить еще одну комнату не удастся, а вот дополнительное спальное место появится.
В новостройке обычно отсутствуют перегородки, потому ремонт будет менее затратным, так как демонтаж стен не потребуется.
По-другому это называется «свободная планировка», но на плане квартиры перегородки присутствуют, а в помещениях местонахождение стен намечается посредством кирпичной кладки или блоков на полу.
Если материал стен дома — железобетонный монолит, то к ремонту можно приступать сразу же после возведения дома.
Выполненные работы не придется переделывать из-за усадки здания, что нередко случается в кирпичных и панельных постройках. Кроме того, внутри квартиры в монолитном доме без несущих стен, что значительно расширяет количество возможных вариантов расположения комнат.
В каком случае необходим проект перепланировки нежилого здания? Как узаконить перепланировку квартиры в Москве в 2021 году? Узнайте тут.
Нужно ли согласовывать перепланировку с управляющей компанией? Читайте далее.
Продумав собственные действия можно даже малогабаритное однокомнатное жилище превратить в удобное и функциональное.
Хорошая идея и грамотное воплощение ее в жизнь сделают даже самую маленькую квартирку красивой и комфортной для проживания.
С чего начать перепланировку?
Если вы имеете твердые намерения сделать свою квартиру в хрущевке более комфортабельной, оцените для начала, какие комнаты и зоны будут необходимы для семьи. Нужно учитывать потребности каждого домочадца, чтобы в погоне за красотой и современностью не оставить кого-либо из них без необходимого личного пространства.
Далее следует нарисовать предварительный проект на бумаге с учетом размеров каждого помещения. Перепланировка предусматривает работы по демонтажу стен, и в этом плане владельцам хрущевок несказанно повезло, так как все внутренние межкомнатные перегородки не являются несущими. Это упрощает дело не только в плане простоты их сноса, но и в урегулировании вопросов перепланировки в соответствующих инстанциях.

Идеи зонирования на спальню и гостиную
Разместить полноценный набор мебели для двухкомнатной на квадратных метрах однокомнатной возможно. Чтобы отделить пространство для отдыха и сна от жилой комнаты лучше всего использовать напольные раздвижные перегородки. Так на ночь вы сможете закрывать «двери» спальни и наслаждаться покоем.
Совет! Стеклянные ширмы можно дополнить шторами изнутри, чтобы утреннее солнце не будило вас слишком рано.
Совместить две зоны без перегородок также возможно, но этот вариант подходит только если в квартире проживает 1 человек или семья из двоих взрослых.
Важно! Отодвиньте кровать в сторону от окна и обустройте место для сна в темном углу. Ночью освещение вам не понадобится, а днем вы не заметите трудностей, ведь не будете пользоваться спальной комнатой
Способы разделения зон в студии
Один из способов зонирования при помощи гипсокартона
Каждую зону необходимо выделить для того, чтобы она стала обособленной территорией в едином целом (см. Варианты и планировки квартиры студии).
Существует несколько вариантов такого разделения:
- Высота пола. В какой-то части квартиры можно соорудить небольшой подиум или лестницу, состоящую из 3-5 ступенек.
- Высота потолка. Все части помещения будут наиболее выигрышно смотреться на общем фоне, если создать потолок разного уровня. Даже совсем незначительная разница в 0,5 см будет заметной.
- Использование различных перегородок. К их выбору необходимо отнестись крайне ответственно. Все перегородки, установленные в помещении, должны гармонировать с мебелью.
- Использование разных оттенков. Для каждой зоны следует подбирать различные оттенки так, чтобы они максимально гармонировали друг с другом.
Как еще разделить помещение
Простые способы зонирования
Для разделения помещения подойдут:
- Стенка-этажерка.
- Шкаф-купе.
- Раздвижная ширма.
- Занавес под потолком.
- Металлопрофиль с ДСП.
При желании можно своими руками несколько модифицировать собственное жилище. Чтобы сделать его более комфортным для проживания, совсем необязательно изощряться и придумывать что-то необычное. Перепланировка квартиры студии в двухкомнатную квартиру позволит создать свой укомплектованный рай.
Двухкомнатная квартира
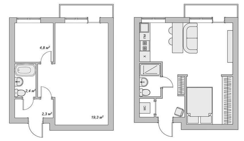
Перепланировка однокомнатной квартиры в двухкомнатную обычно предполагает банальное разделение комнаты пополам. Давайте рассмотрим, как можно сделать более оригинальный вариант. Дело в том, что при стандартном разделении комнаты с помощью, например, гипсокартонной стены, одна из комнат останется без окна. Такая перепланировка однокомнатной квартиры в в двухкомнатную не совсем удачна.
В этом случае нам также нужно сделать снос всех стен, однако позже нам придется возвести новые стены, таким образом, чтобы кухня оказалась в центре всего помещения. Сделать это будет несложно, если вы используете электрическую плиту вместо газовой. Вся сложно будет заключаться в обустройстве нормальной вентиляции. Продумайте этот вопрос очень тщательно.
Ванную комнату и санузел немного увеличим за счет прихожей. Нам это понадобится для того, чтобы установить в ванной комнате стиральную машину и в целом сделать ее более комфортной.
В бывшем помещении кухни можно организовать детскую комнату, совмещенную с кабинетом, то есть установить тут детскую кроватку, компьютерный стол, книжный шкаф и другие необходимы вещи. Когда малыш подрастет, данную комнату можно отдать полностью в его распоряжение. Собственно, образование такой уютной и уединенной комнаты, у которой будет свое окно, и было целью перепланировки однокомнатной квартиры в в двухкомнатную.
В оставшейся комнате можно обустроить полноценную гостиную и столовую. Кроме того, установленный тут компактный диван послужит полноценным спальным местом для родителей. Как видите, перепланировка однокомнатной квартиры в в двухкомнатную – довольно трудоемкий процесс, но он полностью себя оправдывает.
Скандинавская двушка с кухней-нишей
Площадь жилья – всего 40 квадратных метров. В исходной планировке квартира делилась на большую кухню и жилую комнату, которая служила одновременно гостиной и спальней. Роль кровати выполнял раскладной диван. Чтобы получить отдельное помещение, дизайнер Ирина Носова предложила частично перенести кухню в зону прихожей.
В итоге из однушки получилась комфортная двухкомнатная квартира с небольшой спальней, куда ведёт дверь со стеклянными вставками. Во второй комнате задействовали эркер, превратив подоконник в широкий письменный стол. Зону готовки визуально разделили плиточным покрытием на полу и потолочными рейками.
Евродвушка из однушки
Квартира площадью 45 кв.м, рассчитанная на кухню и комнату, превратилась из бетонной коробки в удобное пространство с кухней-гостиной, спальней и продуманной системой хранения. Дизайнеру Виктории Власовой удалось сделать из однушки двушку всего за 4 месяца, включая согласование с БТИ.
Там, где раньше располагалась кухня, спланировали спальню, а само место для готовки обустроили в гостиной, присоединив часть прихожей. Несущая конструкция между комнатами осталась нетронутой. Чтобы узкое пространство казалось шире, дизайнер воспользовалась сразу несколько приёмами:
- Установила встроенные системы хранения до потолка.
- Повесила широкое зеркало в кухне-гостиной, отражающее пространство и увеличивающее естественное освещение.
- Использовала однотонную отделку.
- Установила раздвижные двери вместо распашных.
Способы разделения зон в студии
Один из способов зонирования при помощи гипсокартона
Каждую зону необходимо выделить для того, чтобы она стала обособленной территорией в едином целом (см. Варианты и планировки квартиры студии).
Существует несколько вариантов такого разделения:
- Высота пола. В какой-то части квартиры можно соорудить небольшой подиум или лестницу, состоящую из 3-5 ступенек.
- Высота потолка. Все части помещения будут наиболее выигрышно смотреться на общем фоне, если создать потолок разного уровня. Даже совсем незначительная разница в 0,5 см будет заметной.
- Использование различных перегородок. К их выбору необходимо отнестись крайне ответственно. Все перегородки, установленные в помещении, должны гармонировать с мебелью.
- Использование разных оттенков. Для каждой зоны следует подбирать различные оттенки так, чтобы они максимально гармонировали друг с другом.
Как еще разделить помещение
Простые способы зонирования
Для разделения помещения подойдут:
- Стенка-этажерка.
- Шкаф-купе.
- Раздвижная ширма.
- Занавес под потолком.
- Металлопрофиль с ДСП.
При желании можно своими руками несколько модифицировать собственное жилище. Чтобы сделать его более комфортным для проживания, совсем необязательно изощряться и придумывать что-то необычное. Перепланировка квартиры студии в двухкомнатную квартиру позволит создать свой укомплектованный рай.
Ниша для кровати
Специальное углубление в стенке однокомнатной квартиры сотни лет назад нарекли необычным словом «альков». Во времена монархов его украшали текстилем, как бы создавая пышную тканевую перегородку. Сегодня такой вариант также возможен, если альков имеет достаточную ширину – 1,7-2 м.
Зона отдыха в нише не отделяется по стилю от основного помещения, а становится его гармоничным продолжением.
Лучше всего подобная конструкция впишется в классические интерьеры, но не стоит упускать ее применения в обителях, обустроенных по новейшим модным тенденциям. Например, кровать, спрятанная за шторками с рюшами, станет прекрасным и действительно сказочным местом для сна и времяпрепровождения девочки.
Детская кровать компактно расположена в нише.
Как расставить мебель
Расположение мебели играет особую роль в восприятии студии, любой предмет может стать символом границы одной из зон: спинка стула, приставленного к рабочему столу, обозначит кабинет, диван – гостиную. Основное размещение мебели выполняется вдоль стен, ведь студия создается для свободного пространства. Но отделение зоны отдыха обычно выполняется диваном, установленным напротив телевизора. Массивная мебель не впишется в интерьер студии, ее лучше заменить трансформирующимися моделями. Обстановка зависит только от вкуса и предпочтений хозяев.
Читать дальше: Внесение сведений в егрн в уведомительном порядке
Что такое перепланировка квартиры
Перепланировка квартиры — это изменения, которые касаются размера помещений и их количества, расположения комнат, коммуникаций. Варианты перепланировок однокомнатной квартиры бывают такими:
- Когда нужно изменить существующее жилье таким образом, чтобы оно соответствовало всем статьям закона и современным правилам пожарной, газовой, санитарной безопасности. Часто в случаях отдельных изменений затрагивают и коммуникации: меняется проводка и способ ее подводки, переоборудоваться водопровод и т.п. Чаще всего такое происходит в хрущевках, где условия не всегда соответствуют существующим нормам;
- При переоборудовании квартиры-студии в однокомнатную квартиру. Такое случается с теми, кто приобрел студию и со временем хочет сделать из нее более традиционную планировку. Возможна обратная ситуация, когда из квартиры делают студию;
- Для создания удобств в 1 комнатной квартире и воплощения design идей.
- После покупки квартиры в новостройках, где застройщик оставляет владельцам возможность самим придумать планировку для жилья.
Фактически — это изменение размера помещений и их расположения, которое делается в соответствии с потребностями владельца. Новая планировка должна обязательно отвечать необходимым правилам и законам.

6 распространённых вариантов законной перепланировки помещения
Теперь рассмотрим варианты проектов перепланировки однокомнатной квартиры в двухкомнатную. Вообще, сделать из одного помещения два намного проще, чем наоборот – и в плане законности, и по проведению ремонтно-строительных работ. Кстати, одним из вариантов перепланировки является зонирование, которое осуществляется достаточно легко, и позволяет просто и быстро изменить интерьер помещения.
Сделать из одной комнаты два отдельных помещения не сложно
Вариант №1: гипсокартонная перегородка
Разделение одной комнаты на две при помощи гипсокартонной перегородки – довольно распространённый вариант. Такая конструкция не оказывает существенной нагрузки на пол. Перегородка не требует больших материальных затрат и собирается сравнительно быстро. Единственный недостаток такого варианта заключается в том, что одно получившееся помещение будет лишено естественного освещения. Однако здесь можно обустроить спальню, а недостаток света компенсировать установкой достаточного количества осветительных приборов. Гипсокартонные перегородки – хороший вариант для перепланировки, особенно если это квартира-студия.
Разделение одной комнаты на две при помощи гипсокартонной перегородки
Вариант перепланировки при помощи гипсокартонных конструкций
Вариант №2: на помощь придут стеклоблоки
Если сплошная гипсокартонная перегородка ограничивает доступ естественного света в одну из зон, то можно решить эту проблему с помощью конструкции из стеклоблоков. Подобная конструкция возводится довольно быстро, имеет хорошую светопропускную способность и эстетичный внешний вид. К тому же в ней можно устроить декоративную светодиодную подсветку. Стеклоблоки отличаются более высокой прочностью, чем гипсокартон.
Разделение помещения при помощи стеклоблоков
Визуализация перепланировки
Вариант №3: мебель как строительный материал
Сделать перепланировку однокомнатной квартиры можно при помощи зонирования, а именно – используя предметы мебели. Это довольно хороший вариант, поскольку, например, установка шкафа позволяет не только разграничить пространство, но и использовать его по прямому назначению – для хранения вещей. Также это может быть не только шкаф, но и диван, стеллаж или высокий комод. Подобный способ позволяет легко и быстро изменять интерьер в случае необходимости и не требует каких-либо разрешений.
Зонирование посредством стеллажа
Перед планировкой нужно создать план или компьютерную визуализацию
Вариант №4: раздвижные межкомнатные перегородки
Использование раздвижных межкомнатных перегородок – довольно популярный способ сделать из одной комнаты две функциональные зоны. Можно использовать конструкции с глухими, зеркальными или матовыми стеклянными фасадами. Раздвижные перегородки легко монтируются, имеют прекрасный внешний вид и подходят практически к любым интерьерам.
Раздвижные межкомнатные перегородки из матового стекла
Подробная визуализация перепланировки при помощи раздвижной перегородки
Вариант №5: используем площадь лоджии или балкона
Сделать ещё одну комнату в квартире можно за счёт присоединения площади балкона или лоджии. Для этого нужно демонтировать часть стены, в которой располагается оконный и дверной блок. Также требуется застеклить и утеплить лоджию или балкон. На полученном пространстве можно устроить спальню или кабинет.
Спальное место на лоджии
Чертёж перепланировки
На плане красным цветом отмечен демонтаж оборудования, дверей и перегородок, а синим – перенос и возведение новых элементов.
Вариант №6: делаем второй этаж
Данный вариант подходит для квартир-студий с потолками высотой более 3 метров. В помещении устраивается второй или антресольный этаж, на котором можно расположить спальню или рабочее место. При создании второго яруса в квартире требуется разрешение БТИ. Обустройство антресолей – дело серьёзное, поскольку всё должно быть надёжным и соответствовать всем существующим нормам безопасности. К тому же второй этаж создаёт значительную нагрузку на пол, правда, распределяемую равномерно.
Кабинет на антресолях в квартире-студии
Создание второго этажа – отличный вариант для квартир-студий
Стиль и цветовая гамма интерьера
Планирование хрущевок, независимо от года постройки и материала дома, полностью идентичное. Расстановка мебели в них производилась по единому удобному плану. Современный дизайн маленьких квартир предполагает наличие только функциональной мебели, правильной отделки поверхностей. Все акценты должны быть расставлены максимально органично, поскольку будут бросаться в глаза одновременно.
Какой бы ни был выбран стиль оформления, он не обойдется без аксессуаров. Но не стоит перегружать и без того скромную по площади квартиру элементами декора. Специалисты рекомендуют во время выбора мебели и декора пользоваться принципом – чем меньше, тем лучше.
Классический вариант использования цветового решения – однотонная отделка в светлых тонах. Чтобы комната не казалась скучной, можно взять один базовый цвет, второй приглушенно яркий, третий контрастный. В глубине комнаты размещаем яркие тона, стены, полы, шторы, крупные предметы мебели делаем светлыми. Совмещение нескольких ярких оттенков будет выглядеть навязчиво и нелепо.
Однокомнатная квартира для 4 человек
Грамотная планировка, разработанная дизайнером Ольгой Подольской, стала решающей в создании нового интерьера для большой и дружной семьи – мамы, папы и двоих детей. Площадь квартиры – 41 кв.м. После перепланировки однушки в двушку в ней появилась ниша для кровати родителей и небольшая детская комната.
Зону спальни для взрослых отгородили плотной драпировкой. Столовую вынесли в гостиную, где поставили небольшой диван и кресло. Шкафы с зеркальными фасадами и комод играют роль закрытых систем хранения. Стиральная машинка и гардероб находятся в коридоре.
В небольшой детской комнате, которую выкроили за счёт уменьшения кухни, установили двухъярусную кровать и столы для занятий. В ней живут два мальчика двух и трех с половиной лет.
Двушка из однушки в доме серии п-44
Перепланировки в квартирах этой серии требуют много хлопот и средств, так как стена, разделяющая кухню и комнату, несёт нагрузку перекрытия. Поэтому дизайнер Жанна Студенцова оформила квартиру площадью 37,5 кв.м. максимально просто, разграничив комнату текстильной перегородкой.
Комната для проживания пожилой женщины совмещает в себе гостиную и спальню, но зонирование создаёт эффект приватного пространства.
Если в однушке живёт семья с ребёнком, идеальным решением станет кровать-чердак. Второй этаж послужит спальным местом, а свободная зона внизу – рабочим кабинетом.
Вот ещё несколько примеров перепланировки однушки в двушку без сноса несущей стены. Архитекторы предлагают возвести перегородку из гипсокартона, но одна комната останется без света, а дополнительный проём в капитальной стене придётся укреплять и согласовывать. Если наличие тёмной комнаты не устраивает, между спальней и гостиной можно смонтировать лёгкую стенку из матового стекла. Ещё один вариант – реечная перегородка, не доходящая до конца стены.
Однокомнатная квартира в старом доме: возможности перепланировки
Хрущевки, гостинки, малосемейки – в жилье подобных форматов квадратных метров минимальное количество, и это означает, что при организации пространства для жизни должен быть учтен каждый сантиметр. Однако даже безнадежный интерьер при профессиональном подходе можно существенно улучшить, не выходя за рамки существующих нормативов и находя даже крошечные лазейки в официальных ограничениях. Есть основное правило: чем меньше площадь, тем больше внимания приходится уделять нюансам.
Прежде всего, стоит определиться с личными предпочтениями и потребностями каждого из домочадцев, особенно если в крошечной квартирке приходится уживаться семейству с разным ритмом жизни.
Кстати, при оформлении перепланировки понадобится письменное согласие каждого из собственников.
Вполне гармоничным для целеустремленного карьериста – абсолютно минималистический интерьер с торжеством предельной функциональности, однако супруге, возможно, будет более интересным наличие будуара. Можно ли совместить и то, и другое? Хороший дизайнер сделает все возможное, тем более что разумное смешение стилей нынче в моде. А вот насколько качественно будут учтены все требования, зависит от их максимальной детализации.
Если нет возможности привлечь профессионального дизайнера, можно составить первоначальный план самостоятельно, найдя готовые проекты в Сети
При самостоятельном планировании очень важно правильно произвести все замеры, позаботиться о наличии допусков. Многие начинающие дизайнеры, планируя переоборудование санузла для установки стиральной машины, в итоге сталкиваются с тем, что даже самая негабаритная модель не помещается на отведенное для нее место.
Перед тем, как начать проектирование изменений, стоит вникнуть в технический план и выяснить, какие именно стены являются несущими, поскольку при перепланировке их трогать нельзя даже при огромном желании. В старых домах некоторых серий несущими оказываются стены, разделяющие комнату и кухню. В этом случае с идеей об их устранении для объединения помещений придется распрощаться и подумать о других вариантах. Например, максимальном задействовании коридора и полноценном утеплении балкона, где можно обустроить зону отдыха и даже рабочую зону.
Как сделать ремонт?
Не забывайте о том, что перепланировка – дело серьезное. Соответственно, прежде чем приступить к ремонту, если он предполагает вмешательство в структуру помещения, нужно сделать несколько важных шагов по согласованию своего проекта. А для того, чтобы ваши идеи были одобрены, не стоит забывать о таких простых правилах:
- если ремонт предполагается делать в «хрущевке», помните о том, что в этих домах запрещено переносить кухню в жилое помещение. Например, один из описанных выше вариантов перепланировки для вас не подойдет;
- следует изучить особенности района, в котором вы живете. Правила некоторых областей запрещают объединение кухни с жилым помещением;
- запрещено менять площадь санузла (ни в сторону увеличения за счет жилого помещения, ни в сторону уменьшения за счет кухни);
- запрещено менять положение газовых стояков и прочих коммуникаций;
- не стоит также трогать в процессе перепланировки вентиляционную систему там, где есть газовые приборы;
- невозможен перенос батареи из жилого помещения на балкон;
- любые действия, которые приведут к увеличению веса, приходящегося на несущие стены, так же считаются незаконными;
- перед тем, как осуществлять перепланировку, убедитесь, что ваш дом не входит в число зданий, чье состояние признано аварийным.
Кроме того, если после перепланировки маленькой однокомнатной квартиры в двухкомнатную, одна из комната оказалась лишена окна, следует продумать правила вентиляции и притока свежего воздуха. А чтобы визуально преобразить помещение без окна, можно воспользоваться светодиодной лентой, имитирующей оконный проем или же оклеить одну из стен обоями с пейзажем – так пространство расширится.
Варианты, идеи перепланировки однокомнатной квартиры в студию

Перепланировка однокомнатной квартиры площадью 18-45 (30, 33, 35, 36, 37, 40, 44, 45) квадратных метров в студию сейчас очень распространена. Вы получаете открытое пространство с двумя или даже тремя окнами, просторное и светлое.

При этом вы можете легко выделить спальню-нишу в главной комнате, если вы захотите это сделать, но гостиная (зона дивана) и кухни (гарнитура и стола) будет единым целым. Также в нишу можно выделить детскую, или же разместить спальню или детскую на утепленной лоджии, все равно сделав квартиру студией.
Правда, стоит помнить, что зона кухни может быть только над кухней, коридором, лоджией или ванной, но не может быть – над гостиной или спальней. А вот если ваш этаж первый, кухня может быть где угодно. Но спальня все равно не может быть под чьей-то кухней!
Однокомнатная квартира-студия с нишей с кроватью и диваном

Первый вариант расстановки мебели – это объединение комнаты с нишей и кухни. В итоге вы получаете раскладной диван (спальное место ребенка), кровать в нише-спальне (для родителей) и просторную зону гостиной-кухни для приема гостей в дневное время. Прихожая остается отдельной комнатой. Посмотреть пример такого дизайна можно ниже:

Несомненно, планировка однокомнатной квартиры-студии выглядит обычно очень современно. Такие квартиры ценятся на рынке, но имеют куда меньший спрос. Тем не менее, найдя правильного покупателя, и такую квартиру можно продать по хорошей цене.
Студия на троих (для семьи с ребенком)

Если у вас есть ребенок, то в своей квартире площадью в 20-40 кв. метров вам наверняка захочется выделить приватные места для каждого члена семьи. Как мы уже говорили, спальню или детскую можно вытеснить на присоединенную и утепленную лоджию. Либо сделать подиум, чтобы из-под кровати родителей выдвигалась еще одна детская кроватка. А от детской зоны подиум можно закрыть стеклом, гипсокартоном или занавеской. Кстати, ребенок может спать на раскладном диване возле кровати.
Планировка такой студии может выглядеть по-разному. Кухня может быть отделена гипсокартоном, стеклом или барной стойкой от спальни-гостиной либо открыться им навстречу с помощью острова. Вот вариант планировки квартиры на троих (слева – кровать родителей, справа – диван для ребенка) в планировке студии площадью 40 квадратных метров:

Если же в вашей квартире нет 40 квадратных метров, вы можете подумать о вот такой перепланировке квартиры площадью 30 квадратных метров. Особенно хорошо она подойдет для квартир старого фонда. Конечно же, варианты, применимые к вашей планировке, будут отличаться от рисунка, но его легко подстроить.
Однокомнатная квартира-студия с кроватью и без дивана

Если же в квартире вы живете один (или одна) или вдвоем, то вам возможно подойдет вариант даже без дивана, но с роскошной кроватью шириной 180 сантиметров! Неплохая идея, не правда ли? Например, возле нее можно поставить козетку, поставить телевизор так, чтобы смотреть его с кровати (истинное наслаждение!), а кухню объединить с комнатой, чтобы ощущение простора было более полным.

Вот так будет выглядеть ваша однокомнатная квартира площадью 30 квадратных метров после перепланировки в студию без дивана (планировка ниже). В данном случае план относится к фотографии, которую мы представили выше. Коридор объединен со спальней, а кухня (в прошлом – 4 квадратных метра) теперь является красивой нишей.




































