Варианты перепланировки и зонирования в трехкомнатной квартире
Перепланировка трехкомнатной квартиры может оказаться довольно сложным делом; некоторые типовые планировки практически не подлежат изменениям из-за расположения несущих стен или длинных коридоров, а также колонн или просто маленькой площади. Тем не менее мы собрали для вас актуальные и удачные планировки с практичными идеями, которые могут вам понравиться.

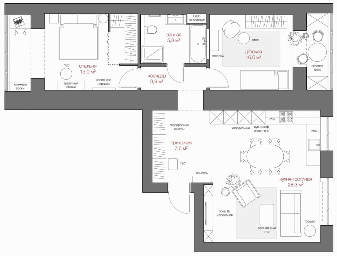
В этом варианте перепланировки, кухню (8 кв. метров), гостиную (20 кв. метров) и прихожую (7,6 кв. метра) объединили в одну комнату, которая получилась очень просторной и с двумя окнами.В детской и спальне лоджии присоединены, там образовались кабинет и игровая комната.Ванная комната расширена за счет одной из спален, теперь здесь есть и ванная чаша, и душевая кабина.Кухонный гарнитур поставлен таким образом, чтобы раковина находилась напротив окна, что очень удобно, а зона для ТВ встроена в нишу.

Эта практичная планировка трехкомнатной квартиры площадью 110 квадратных метров имеет две спальни, в каждой из которых есть ванная комната и гардеробная. Кухня не имеет окна, но спроектирована в американском стиле – с островом и столовой на четыре персоны. В гостиной двери на балкон решены в формате дверей-слайдеров со стеклами от пола до потолка.

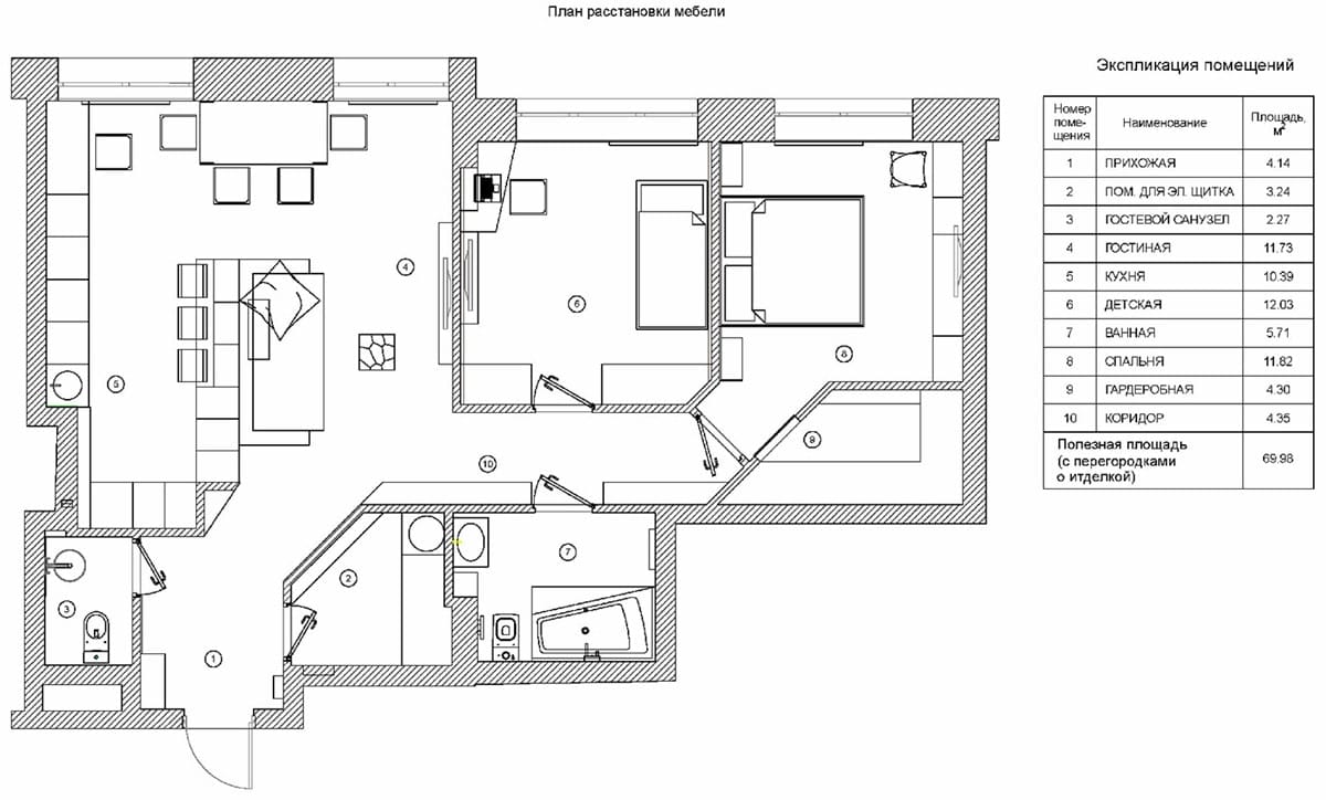
Эта планировка трехкомнатной квартиры вполне типична для новостроек Москвы. Гостиная и кухня были объединены, на месте прихожей расположилось помещение для электрощитка, по совместительству – гардеробная. Также есть гардеробная при главной спальне и гостевой туалет.

Еще один вариант перепланировки трехкомнатной квартиры реализован в интересном формате. На месте, где раньше была кухня, теперь расположились гостевой дополнительный туалет и прачечная, на месте прихожей – кухонный гарнитур. Кухня и столовая объединены. На плане в правой части квартиры расположены две спальни, каждая с ванной комнатой и встроенными шкафами-купе. А при гостиной большая лоджия оформлена в стиле патио с диванчиком и летней столовой.

Еще одна удачная планировка трехкомнатной квартиры имеет по гардеробной в каждой из спален и две ванные комнаты. Столь расширенный формат стал возможен благодаря размещению кухни в зоне прихожей и устранению коридора как такового. Теперь здесь есть лишь проходная зона между кухней и гостиной, с обеих сторон острова.

Проблема квартир с длинными коридорами в том, что в них зачастую очень сложно сделать перепланировку, так как вариантов расположения комнат не так уж и много. Но в данном варианте, обе спальни получили встроенные гардеробы, хозяйка – отдельную прачечную и кухню-гостиную открытой планировки, а в прихожей теперь есть встроенный шкаф для одежды.

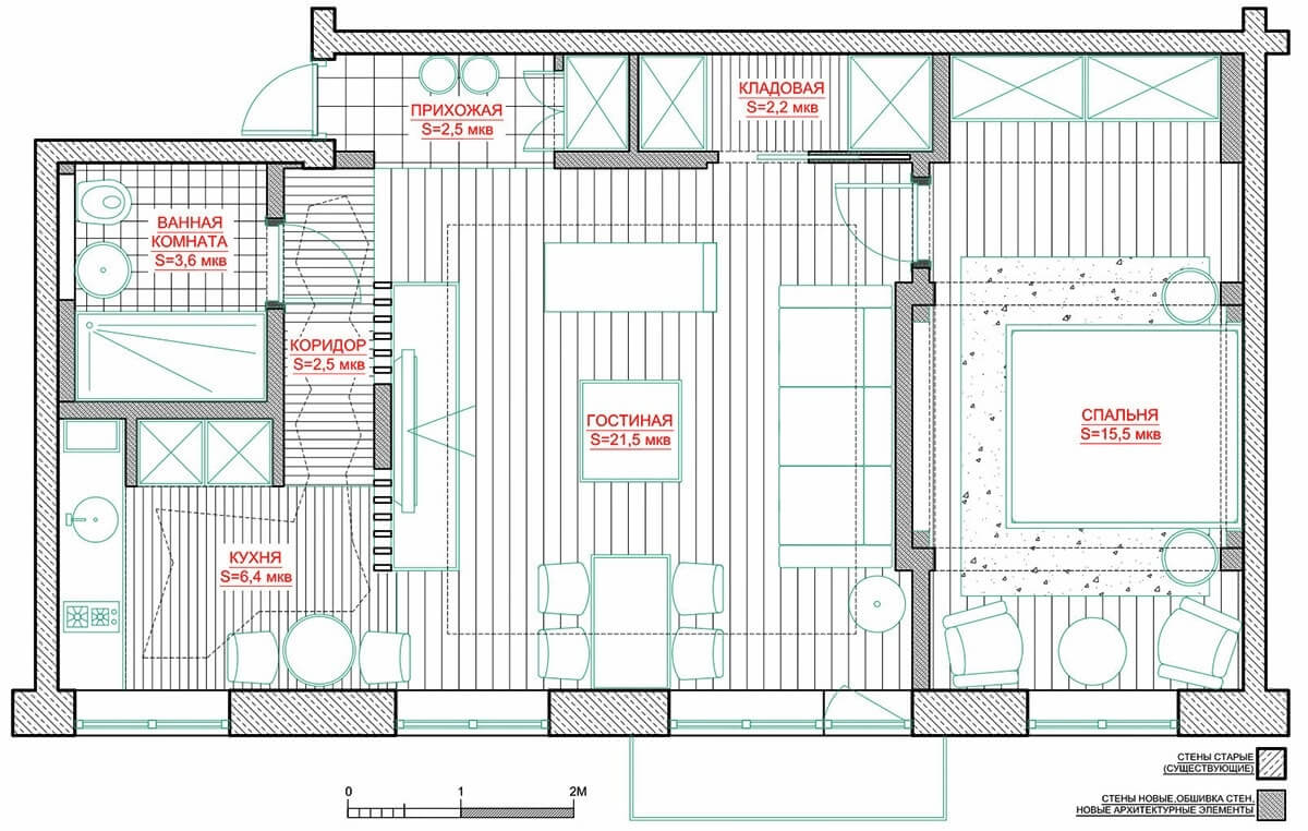
В данном случае трехкомнатная квартира в хрущевке стала двухкомнатной. Спальню в 6 квадратных метров, которая в некоторых случаях в пятиэтажках также является кладовой, сделали частью главной спальни, которая теперь располагает площадью в 15,6 квадратных метров.

Шоу «Мистер Х»
В 2022 году Саванец прошел кастинг в новый романтический проект «Мистер Х» от телеканала «Пятница!». По задумке создателей реалити-шоу, 30 девушек должны бороться за сердце главного героя, мечтающего встретить любовь всей жизни.
Игорь Саванец в шоу «Мистер Х» на телеканале «Пятница!» / кадр из телешоу
Правда, продюсеры изменили биографию Игоря, представив его как криптомиллионера, владельца одной из самых крупных майнинговых ферм в России, а не работника клининговой службы со скромной зарплатой. Таким образом шоураннеры решили поставить социальный эксперимент и выяснить, что важнее для нынешних девушек — истинные чувства или корыстное стремление к материальному достатку.
Чтобы Саванец был больше похож на состоятельного холостяка, ему создали образ удачливого бизнесмена, владеющего собственным делом с 16 лет. Герою поставили виниры, с помощью стилистов подобрали гардероб из люксовых марок, обучили правилам этикета и придумали соответствующее статусу хобби — коллекционирование роскошных часов.
Основательно подготовив псевдомиллионера, продюсеры отобрали претенденток и приступили к съемкам. Истинную личность незнакомца участницы узнали только спустя восемь недель в финале проекта. От зрителей же фигуру и имя холостяка держали в секрете почти до премьеры дебютного сезона.
В эфире телеканала «Пятница!» реалити-шоу стартовало в начале сентября 2022-го. Ведущим выбран блогер, певец и актер Роман Каграманов. В числе участниц оказались девушки разных типажей и профессий: психолог, бизнесвумен, мастер по татуировкам и многие другие.
Финалистками проекта стали София Соболева, Екатерина Брусникина и Алина Артыкова. Совместным решением медик, гадалка и психолог сочли, что лучше всех из участниц проекта Игорю подходит именно Алина, ранее известная как персональный барбер певца Тимати. Именно на ней свой выбор остановил и псевдо-миллионер. Узнав детали настоящей биографии главного героя проекта, девушка хоть и удивилась, тем не менее согласилась продолжить строить отношения.
Тем не менее, сразу же после окончания эфиров, Алина рассказала о том, что с Игорем они не остались вместе, посетовав, что образ, созданный герою проекта не участвует реальному человеку и реальной жизни, «в которой нужно адекватно оценивать свои возможности и стремиться к чему-то большему».
Карьера
Окончив училище, выпускник пытался устроиться по профессии. Саванец переехал в Борисоглебск Воронежской области, где искал работу летчика-инструктора. Уволившись из вооруженных сил, мужчина снова сменил место жительства, обосновавшись сначала в Подмосковье, а затем в Москве.
Игорь Саванец в юности / Фото:
Источником заработка для Игоря поначалу была интернет-коммерция, несколько лет он торговал спортивными товарами под маркой Veltrend, а также занимался другими продажами в онлайн-магазинах и рекламным маркетингом.
После переезда в 2019 году в столицу Саванец работал фасовщиком, комплектовщиком, занимался шлифовкой и полировкой автомобилей под вывеской фирмы «Автоблеск». В 2020 году уроженец Амурской области основал клининговую компанию Qlean-Home, предоставлявшую услуги по уборке жилья, торговых, складских и других объектов. Сейчас Игорь имеет регистрацию в качестве ИП с основным видом деятельности «комплексное обслуживание помещений».
Согласно оставленным в Сети резюме, бывший пилот освоил в Москве еще одну специальность, отучившись в школе при киностудии имени Максима Горького. Навыки актерского мастерства, яркая внешность и высокий рост (190 см) пригодились Саванцу в работе моделью. Игорь соглашался на оплачиваемые съемки в рекламных фотосессиях и видеороликах, был готов сотрудничать с брендами одежды и маркетплейсами по бартеру или TFP.
«Космополит»

«Космополит» — один из старейших роскошных пятизвёздочных отелей в Лас-Вегасе, расположенный на Стрипе, в непосредственной близости от знаменитого казино Белладжио. Комплекс «Сити Центр» также находится в нескольких минутах ходьбы.
В этом прекрасном отеле есть несколько удивительно больших жилых помещений, а в номерах есть свои террасы с великолепным видом на горизонт. Номера выглядят яркими и современными из-за сочетания синего и белого. Ванные комнаты отделаны мрамором, также есть отдельные гостиные. Открытый бассейн предлагает широкий панорамный вид на город вокруг, а эстетика отеля стильная и изящная. В гостинице также есть казино площадью 100 000 квадратных футов и ночной клуб в типичном стиле Лас-Вегаса.
Если вы останавливаетесь в этом отеле, то вы также должны зайти в буфет-бранч «Спун», который является любимым местом среди гостей всех слоёв общества. Если ищете что-нибудь вкусное, то есть рестораны от известных шеф-поваров, таких как Дэвид Чанг и Хосе Андрес. Если ищете модные бары для коктейлей, то рекомендуется бар «Люстра» с его огромными сверкающими шторами. Если вам нужны отличные диджеи и танцы, отправляйтесь в бар «Бонд».
Какого цвета мебель поставить на северную сторону
Чтобы северная комната выглядела контрастной, мебельные предметы выбирают тёплых коричневых, шоколадных, рыжих или бордовых цветов. Контуры смотрятся мягче с насыщенным золотистым или медовым оттенком шкафов.
Такие предметы выделятся у стены, если та покрашена другим цветом, отдадут теплоту и добавят уюта. Для светлой мебели фон стоит сделать тёмным или подобрать мебельный гарнитур с контрастной отделкой.
Оригинально смотрится среди привычной обстановки коричневой гаммы мебель, окрашенная в красный, жёлтый, фисташковый или другой интересный цвет. Этот вариант чаще используется для мягкой мебели.
На северной стороне квартиры не ставят высокие тёмные шкафы, только низкие тумбы и комоды.
Обстановка в комнате
Помещение делят на рабочую часть и зону отдыха. Преимущественно используют предметы из металла, дерева и стекла. Обилия пластика лучше избегать, если этого не требует стилистика интерьера. Дополнить комнату можно библиотекой. Общие правила:
- устанавливают один-два стеллажа для книг и документов;
- располагают рабочий стол;
- отделяют зону работы;
- затем оборудуют место отдыха.
Оригинальный кабинет можно соорудить при помощи контрастной покраски стен, чтобы выделить границы рабочей зоны. Такой подход позволит отделить визуально место концентрации.
Естественный свет
Универсальным вариантом оформления окон считают рольшторы, жалюзи. Они практичны, компактны, просты в уходе. Используют как плотные полотна, так и полупрозрачные. Не стоит закрывать окна витражами, так как это может отвлекать от работы. Дополнительно украшают оконный проем тонким тюлем, который не препятствует попаданию дневного света в помещение. Ниже на фото дизайн интерьера, кабинет в светлых тонах.
Стеллажи и полки
Выбирают массив, либо имитацию. Предпочтение отдают прочным, долговечным материалам. Если полки навесные, то обязательно подбирают крепеж, который выдержит вес книг. Вариации:
- один стеллаж для документов, один для книг;
- установка шкафа на всю стену;
- компактное расположение полок только над рабочим столом.
Дизайнеры рекомендуют при установке стеллажа во всю стену, не заполнять все ниши, а оставить несколько свободных. Это позволит избежать ощущения нагромождения, придает воздушности, легкости.
Рабочий стол
Одно из самых важных мест в кабинете. Предпочтение отдают изделиям из натурального дерева, стекла, металла. Вид стола зависит от стиля интерьера. Возможно использование комбинированных материалов. Стол для кабинета может быть
- Угловой. Вмещает больше предметов. Встречаются как многоуровневые, так и одноуровневые варианты.
- Круглый. Смотрится оригинально, но не практичен в использовании. Если хочется мягких, обтекаемых форм, то лучше выбрать овальный вариант.
- Прямоугольный. Классический вариант. Позволяет разместить самое необходимое, нередко включает дополнительные полки, ящики.
- Квадратный. В кабинете используется редко, подойдет для совмещения за одним столом несколько видов работ.
- С выемкой. Наиболее удобный вариант, который обеспечит долгое комфортное пребывание за компьютером.
Дизайн рабочего кабинета должен учитывать удобство, ведь владелец будет проводить здесь не один час в день
Важно выбрать удачную по высоте модель, обязательно установить источник света. Самым удачным вариантом считается размещение у окна
Ниже на фото интерьер кабинета, выполненного в винтажном стиле
Ниже на фото интерьер кабинета, выполненного в винтажном стиле.
Мебель
Для любого дома и квартиры модный вариант – дизайнерская мебель с необычным оформлением и асимметричным формами. Но сейчас также популярно использование компактных предметов мебели с устройством типа трансформер. Лучше, если большая часть предметов мебели будет иметь складной тип механизма. Все эти элементы мебели можно убрать, когда они будут не нужны, чтобы освободить пространство.




Вместо стульев лучше использовать барные табуреты, а столешницы в классических столах лучше заменить на барные стойки. Стулья и кресла, а также столики должны быть трансформируемыми, чтобы они могли выполнять больше функций и занимали меньше места. Так вам не придется для каждого жильца квартиры приобретать отдельные индивидуальные предметы мебели, достаточно будет лишь отрегулировать столик или стул для комфортного времяпрепровождения каждого жильца.




Шкафы и системы хранения должны быть встроенными и наиболее функциональными. Больше внимания необходимо уделить внутреннему наполнению шкафчиков. Сейчас также остаются в моде купейные модели шкафов. Мебель в целом должна дополнять пространство помещения и позволять использовать его более функционально.




Формы мебели должна быть более мягкими и обтекаемыми. Причём лучше использовать модульную мебель, с которой вы сможете поэкспериментировать, переставляя отдельные элементы. Некоторые бренды предлагают интересные модульные диваны, а не только шкафы.



Что касается кухонных гарнитуров, то обратите внимание на мини-модели. Они предполагают маленькие шкафчики и большую часть открытых систем хранения
Мини-кухни смотрятся очень мило и современно. Стенки в гостиной сейчас не так популярны, но всё же многие стеклянные модели пользуются спросом. Стекло должно быть матовым для того, чтобы скрыть содержимое шкафов.




К оформлению мебели можно добавить интересные растительные мотивы или декоративный камень. Так, ручки могут иметь необычные формы. В ванной комнате мебель также должна быть простой и функциональной. Допустимо использование серебристых, серых и натуральных белых оттенков. Лучше не приобретать мебель золотистого цвета или под беж. Белоснежный санузел – прекрасное решение для современного оформления квартир.




Правила
Список вещей, о которых вам следует как минимум задуматься перед началом ремонта в квартире-студии:
Определитесь с полом. Будет ли это ламинат во всей студии, или вы хотите зоны из плитки. Об этом надо думать ещё до перепланировки т.к. важна длина стыков.
Кровать? Не думали? У нас почему-то принято отказываться от кровати в пользу дивана, за рубежом такое даже не рассматривается. Как минимум задумайтесь.
Барная стойка — стандарт. Удобное и современное решение, многократно протестированное на практике.
Пытаемся впихнуть как можно больше закрытых мест для хранения вещей. Иначе будет вечный бардак.
Разберитесь с вентиляцией(будет дальше)
Это важно и в обычной квартире, а в маленькой студии просто критично.
Мебель желательно на заказ. Да, дороже, но это экономит метры, которые тоже стоят денег, и это окупается.
Бытовая техника с совмещенным функционалом: стирально-сушильная машина, мультиварка, духовой шкаф с функцией СВЧ.
Если встаёт вопрос где разместить стиральную машину, то первый кандидат на выход — ванна
Возможно душевой зоны/кабины вам вполне достаточно. Как показывает практика, у кого есть и ванна и душевая кабина, первой пользуются очень редко.
Никогда не делайте перегородки из гипсокартона. Рано или поздно вам понадобится на них что-то повесить и вы обломитесь. Только газосиликатные блоки(стандарт) или кирпич(если нужна максимальная прочность).
Выбираем современные стили дизайна, классические стили для интерьера квартиры-студии подходят плохо.
Материалы и цвета только естественные натуральные и их имитирующие. Яркие насыщенные цвета только точечно, в малых количествах и желательно в текстиле. Хотя для стильного дизайна натуральных оттенков более чем достаточно.
Пройдёмся по неочевидным пунктам.
Выбор пола
Почему это 1-ый пункт?
Потому что в квартире-студии нет дверей между комнатами, а значит стыковать разные напольные покрытия под дверьми не получится. А значит их выбор особенно важен.
Стандартный и лучший по соотношению цена/качество вариант пола для студии — ламинат. И в зоне прихожей тоже. Да, и в зоне кухни тоже можно, хотя и придётся быть аккуратнее — стоящей воды он боится. Нет, в ванной конечно плитка, но там есть дверь, а стыковать ламинат и плитку по узкому месту под полотном двери проблем нет. Как делать НЕ надо:
Современный ламинат вообще без проблем выдерживают все нагрузки и в кухнях и в прихожих. Делать стык ламината и плитки где-то кроме как под дверью — худшая идея. Про это мы подробно писали в плитка или ламинат на кухне и плитка или ламинат в прихожей. В студии свободное пространство, а значит стык будет длинный и всегда на виду. Убирать тоже неудобно. Под него все равно будет забиваться грязь, попадать влага.
Паркет — другое дело, его с плиткой стыковать можно и нужно. Во-первых паркет идеально стыкуется с плиткой т.к. оба материала закрепляются на клей, во-вторых паркет очень нежный и его на кухне и в прихожей действительно укладывать не стоит.
Квартира-студия с кроватью
То, что у вас маленькая квартира, ещё не означает, что вы не должны комфортно спать
Многие недооценивают важность таких простых вещей. В Европе вы не увидите квартиры-студии без кровати, но с диваном
Да, в маленькой квартире вполне может не быть дивана. Главное — удобство хозяев, вам тут жить в конце концов.
Спальня, конечно, не получится — кровать придется разместить в углу или нише. Либо окружить её мебелью. Либо сделать перегородку. Не обязательно даже до потолка. Стандартная практика в любой студии, не делать промежутков между предметами мебели. Где это возможно, ставим всё в упор. Интерьер от этого не будет восприниматься тесно, скорее наоборот.
Сейчас мы всё реже ходим в гости. Дешёвая телефонная связь и интернет сделали своё дело. С друзьями тоже всё чаще встречаемся где-то на нейтральной территории. А если и приводим домой, то сидим на кухне. В общем, как минимум рассмотрите идею отказа от дивана в пользу полноценной двуспальной кровати.
И ещё одна студия из Скандинавии:
Фото Лас-Вегаса
Центром можно условно считать немного потрепанный, но тем не менее роскошный отель Bellagio с одним из символов Вегаса – озером с поющими фонтанами. Каждый вечер каждые 15-30 минут фонтаны привлекают толпу зевак на очередное бесплатное шоу. Почетные игроманы – заказывают музыку.

Внутри Белладжио тоже есть на что посмотреть. Кроме пафосного интерьера и люстры «озеро Комо» за миллион долларов от скульптора Dale Chihuly:

Стоит пройтись вглубь – в Conservatory. «Консерватория» представляет собой сюрреалистический садик с ежеквартально обновляемыми декорациями (вход бесплатный!). Мне довелось побывать там на Halloween


И весной


В левом дальнем углу от входа обычно выставляется одна из феноменальных цветочных репродукций картины Andy Warhol


Прямо напротив расположен отель Париж с неизменным его символом – Эйфелевой башней, на которой находится дорогой ресторан и неплохая смотровая площадка.

Рядом — флагманская зона отдыха компании Caesars Entertainment — the linq с самым высоким в мире колесом обозрения (да, да, оно выше, чем Сингапурское!):

Общая палитра и акцент
Не каждый понимает, что такое цветовые акценты в интерьере. Это краски и их оттенки, которые используются очень дозировано для того, чтобы разбавить монохром общей палитры или поддержать тему контраста. Допустим, стены в спальной комнате выкрашиваются в тёплый цвет слоновой кости, потолок просто выбеливается, создаётся спокойный общий тон, а потом он разбавляется яркими вкраплениями в виде голубого коврика, брошенного на пол или лёгкой занавеси такого же цвета, повешенной на оконный проем.
На первый взгляд, кажется, что разбавить общую палитру довольно просто: для этого нужно всего лишь внести в оформление интерьера другой цвет. Но как подобрать подходящий, знает только опытный дизайнер. От выбора будет зависеть общий эффект. Существуют универсальные сочетания, которые помогают добиваться нужного результата.

Сочетание мягких оттенков помогает создавать нежный приглушенный интерьерИсточник avatars.mds.yandex.net
Первое – тёплые и холодные краски
Красиво смотрятся интерьеры, у которых общая палитра – знойные, жаркие тона персикового, оранжевого, жёлтого, красного, терракотового цвета. Разбавьте их холодными оттенками синих, зелёных, фиолетовых красок, получите идеальную картинку. На фото видно, что голубые цветовые акценты в интерьере подчёркивают теплоту атмосферы и, одновременно с этим, слегка охлаждают её пыл.

Сочетание тёплых и холодных красокИсточник avatars.mds.yandex.net
Второе – дополнительные краски
Ещё в девятнадцатом веке французский художник Эжен Делакруа изобрёл «золотой треугольник», который позволил систематизировать все оттенки спектра. На вершину углов он поставил три основные краски: красный, жёлтый и синий. На грани расположил цвета, которые образуются при смешении двух основных красок. Например, если смешать синий и жёлтый, получится зелёный.
Изменение пропорций красок при смешении даёт новые полутона. Позднее художники вокруг треугольника начертили круг и разложили всю палитру, на множество оттенков. Так вот, чтобы привнести в интерьер жизнь, энергию, нужно в качестве акцента использовать цвет, дополнительный общей гамме. Он будет располагаться в круге ниже, напротив основному.

Цветовой круг с оттенкамиИсточник medmarketing.ua
Изучая эту схему, становится понятным, какого цвета должны быть акценты в зелёном помещении (фиолетовые или красные). Такой выбор считается смелым, поэтому он больше подходит для оформления гостиных, игровых, столовых. А вот в спальне стоит уходить от таких решений. Здесь лучше использовать следующий принцип комбинирования цветов.
Третье – краски подобранные по аналогии
Такие сочетания считаются идеальными для создания спокойной, размеренной атмосферы. Здесь в качестве акцента выбирается цвет, который находится в круге рядом по соседству с цветом общей палитры, фона интерьера или рядом с его вторым компаньоном. Так, например, в спальне персикового цвета может появиться текстиль ягодных оттенков. Они не нарушат общую гармонию, не потревожат покой. Поэтому это лучшее решение для оформления комнат, предназначенных для отдыха.

Персиковые и ягодные оттенкиИсточник assets.metrolatam.com
Четвёртое – яркое пятно на нейтральном фоне
Большинству из нас нравятся монохромные интерьеры, выполненные в спокойных нейтральных красках (в оттенках песочного, кремового, белого, серого). К ним в качестве акцента подойдёт любой яркий цвет. Такой вариант оформления обычно выбирают любители минимализма, скандинавского стиля, хай-тека.
Можно малыми усилиями, каждый раз меняя цвет ярких красок, создавать новое настроение. На фото видно, как белый интерьер с яркими акцентами оранжево-красных цветов преображается и становится более выразительным
Фон по количеству доминирует, но берет на себя внимание именно второй компаньон. Он и формирует атмосферу томной осени
Можно вводить в оформление комнаты сразу несколько цветов
Важно, чтобы акценты разных тонов сочетались друг с другом по насыщенности, по яркости красок. Нежно-голубой хорошо соседствует с сиреневым и с фисташковым
Но он плохо сочетается с темно-фиолетовым оттенком.

Яркие цвета на нейтральном фонеИсточник roomester.ru
Дизайн интерьера в различных стилях
Стиль минимализм считается наиболее подходящим для оформления небольших студий. Данное направление отличается использованием не более трех оттенков белой, серой и коричневой гаммы. Мебель здесь, обладает максимально простой формой, в обивке применяется однотонный текстиль.
Скандинавский интерьер предполагает достаточно светлые цвета, особенно в настенной и напольной отделке. Мебельные элементы, выполняются из натуральной древесины, обшивка имеет различные узоры и орнаменты. Дизайн дополняют постерами, картинами с изображениями северных пейзажей или животных, а также украшают обстановку живыми растениями.
На фото зонирование с перегородкой из металла в дизайне студии 25 кв. м., выполненной в стиле лофт.
Индустриальный лофт характеризуется кирпичной кладкой, деревянной отделкой и достаточно широкой цветовой гаммой от белых до темно-коричневых и графитовых оттенков.
Стиль прованс предполагает наличие цветочного принта, белую, бежевую или другую светлую облицовку стен, мебель в пастельных лавандовых, мятных, фиолетовых или голубых колерах. Французская стилистика часто предполагает перегородки и другие конструкции, имеющие перекрещенные рейки, которые хорошо пропускают свет, не загромождают пространство и поэтому особенно гармонично вписываются в небольшое помещение.
На фото интерьер квартиры-студии 25 кв. м. в скандинавском стиле.
ЖУРНАЛ HOUSECHIEF

ВЫБОР РЕДАКЦИИ

Новости 
StarHouse 
Споттер своими руками: как быстро и легко сделать прибор для точечной сварки
Инструмент
Уютный материал прекрасно подойдет для отделки всех поверхностей балкона. Он может стать теплым полом, изящным потолком, уютными стенами. Дерево прекрасно комбинируется со всеми остальными материалами и не нагревается на солнце.
Древесина:
- Имеет прекрасный внешний вид;
- Экологична и безопасна в использовании;
- Проста в монтаже и не требует специальных навыков;
- Не требует тщательного выравнивания стен;
- При должном уходе будет служить долго и счастливо, радуя владельцев помещения красотой.
При выборе материала особое внимание необходимо обратить на сухость доски, неплохо дополнительно обработать материал специальными пропитками, защищающими от влаги, жучков-паучков, плесени и гнили
НЕ ПРОПУСТИТЕ ИНТЕРЕСНОЕ
StarHouse
StarHouse
Двери и окна
Интересные факты
- В 1958 году в СССР вышла музыкальная мелодрама «Мистер Икс», снятая по мотивам оперетты «Принцесса цирка» Имре Кальмана. Главную роль сыграл Георг Отс, а в цирковых трюках актера дублировал Мстислав Запашный. Одноименный триллер презентовали индийские кинематографисты в 2015 году, но с кардинально иным сюжетом: по сценарию, честный полицейский Рагхурам (Эмран Хашми) получает способность становиться невидимым и решает использовать эту возможность, чтобы вершить правосудие.
- В один день с Саванцом родились Игорь Ливанов, Франсуа Озон, Джонни Ли Миллер и Шейлин Вудли.
- В число любимых треков Игоря на портале «Яндекс.Музыка» вошли, в основном, композиции зарубежных исполнителей. Среди них: Asking Alexandria, Breaking Benjamin, Bullet For My Valentine, Энрике Иглесиас, Кэти Перри. Из русскоязычных артистов в подборку попали Kamik, Ray, Amatory и Антон Токарев.
- В четвертом выпуске шоу «Мистер X» участницам рассказали несколько интересных фактов о главном герое. Так. он никогда не встречался одновременно с двумя девушками, его любимое блюдо — котлеты с пюре, эрогенная зона — спина, а в отношениях ему не нравятся женские слезы, используемые как способ манипуляции.
Стандартный
Является функциональным и информативным. Его очень легко составлять. Данный документ помогает систематизировать все виды работ по строительству и ремонту. С помощью этого типа дизайн-проекта можно быстро определиться со стилистическим решением для каждой комнаты, а также проанализировать, каких атрибутов недостает, а каких переизбыток.
В документ включается два этапа, которые включают эскиз и проектную часть.
Этап 1: составление эскиза
Эскиз составляется руками профессионалов. Обязательно учитываются особенности планировки помещения, его освещенность, размер, расстановка мебели.
Все эти объекты указываются на листе специального формата. Данный этап помогает оптимизировать помещение и тщательно продумать каждую деталь. Благодаря этому удается получить завершенный интерьер, подчеркивающий единство стилистического направления.

Эскиз дизайн проект одноэтажного дома с высоким потолкомИсточник Pinterest
Для составления этого этапа одного эскиза недостаточно, важно рассмотреть обстановку на этапе рисования со всех сторон. В эскизе должны быть обнародованы возможные варианты расстановки мебели, отделка поверхностей
Обязательно каждая деталь изображается в том оттенке, в котором она будет в реальности.
Этап 2: проект
В проекте содержатся технологические расчеты, а также данные о стенах, перегородках и прочих конструкциях, которые будут изменяться. Здесь же прописывается наличие фальш-стенок, уровней потолка для их сборки и дополнительных ниш в стенах.

Проект внутренней части дома в составе дизайн-проектаИсточник topdom.info
Каждая из этих деталей указывается вместе с чертежами и параметрами в условных единицах. Данный раздел дизайн-проекта помогает мастерам точно определить где и в каком месте необходимо выполнить конкретный комплекс работ.

Интересный дизайн проект домаИсточник roomester.ru
На что ориентироваться при выборе цветовой гаммы интерьера?
Существует расхожее мнение, что цветовую гамму нужно выбирать исходя из особенностей окружающей местности. Например, если вы живете на юге или, скажем, в тропиках, то интерьер стоит оформить с яркими цветами либо в прохладных тонах. А если речь идет о городской квартире, предположим, в средней полосе России, то предпочтение следует отдать приглушенным спокойным оттенкам.

Многие же дизайнеры считают, что правил в выборе палитры интерьера нет, и можно выбирать любые цвета, которые нравятся жильцам. Нам же кажется, что правда, как всегда, находится где-то посередине. Представьте, что каждый раз возвращаясь домой через городские джунгли в холодный зимний день, вы попадаете в квартиру в сине-голубых тонах или, скажем, в квартиру с изобилием ярких красок. Скорее всего, она не будет комфортна в долгосрочной перспективе. Однако всегда можно найти компромиссное решение, например: вместо ярких чистых цветов использовать разбелённые оттенки или с серым подтоном либо использовать броские краски только в акцентах.

- Еще один простой ориентир в выборе цветовой гаммы интерьера – это цвета вашего гардероба. Как правило, мы неосознанно выбираем одежду в тех цветах, которые нам приятны и подходят по темпераменту, а значит и в обстановке дома будут хороши.
- Третий способ определения палитры, который очень упрощает дело: берем журнал или находим фото в Интернете и отбираем десять интерьеров, которые вам очень нравятся. Так вам станет ясно, к чему тянется глаз и какие оттенки стоит включить в цветовую гамму квартиры. Далее вам нужно будет только повторить уже готовое решение.









![Дизайн студии 25 кв. м. [60+ фото] планировки, идеи зонирования](https://remontgoda.ru/wp-content/uploads/1/e/c/1ec5a3957506bdb08c00e99c22e0855d.jpeg)



























