Согласуйте проект с местной администрацией
Готовый проект надо в орган местного самоуправления. В Москве перепланировку и переустройство квартиры в многоквартирном доме согласовывает Мосжилинспекция, в других городах могут быть районные отделы архитектуры или другие организации. Уточнить, куда вам надо обратиться, можно на сайте местной администрации или по справочным телефонам администрации. Кроме проекта возьмите с собой такие документы:
- Паспорт.
- Eсли собственников несколько — их письменное согласие на перепланировку, заверенное у нотариуса.
- Договор долевого участия и акт приемки-передачи квартиры, если квартиру покупали по ДДУ, или договор купли-продажи.
- Согласованный проект перепланировки.
- Техническое заключение о допустимости и безопасности работ.
У вас могут запросить свидетельство о праве собственности и техпаспорт на квартиру. Если они на руках — проще отдать. В противном случае можно не приносить, а выучить фразу: «В соответствии с частью 2.1 статьи 26 Жилищного кодекса Российской Федерации вы запрашиваете эти документы самостоятельно — в рамках межведомственного взаимодействия».
После этого в местной администрации вам выдадут расписку, что приняли ваши документы. Если всё в порядке, через 45 дней вам выдадут разрешение на проведение работ. Если нет, придется переделывать проект или судиться с отделом архитектуры.
Разрешение не выкидывайте: оно понадобится для согласования готовой перепланировки.


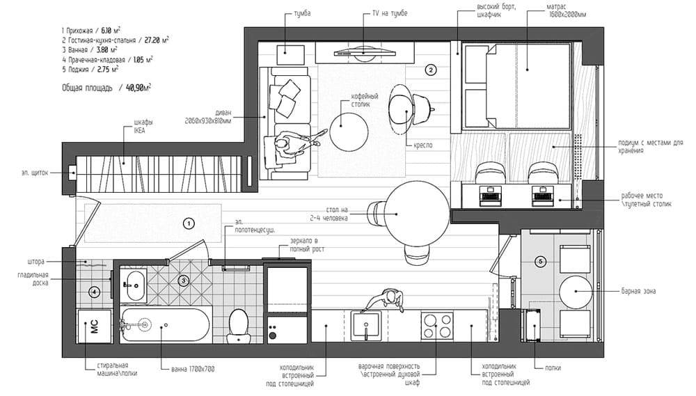
Варианты перепланировки
Для покупателей квартира свободной площади чаще всего обходится дешевле, кроме того, вы сможете внести свои коррективы в обустройство и расположение комнат и кладовых.
Пример планировки однокомнатной квартиры свободной площади
Очень важно понимать, что существуют нормы, согласно которым нельзя расширять жилые зоны за счет не жилых. Если вы живете в однокомнатной хрущевке, к примеру, увеличить ванную комнату может только после того, как вы выделите коридор. Вариант перепланировки однокомнатной хрущевки с переносом стены ванны
Вариант перепланировки однокомнатной хрущевки с переносом стены ванны
Очень часто жильцы мечтают о переносе кухонной зоны в коридор. Такой вариант возможен практически без ограничений. Главное правильно распланировать расположение коммуникаций. В этом случае, вы получите вместо однокомнатной квартиры – двухкомнатную.
Вариант выделения кухонной зоны в коридоре
Вопрос подвода коммуникаций также может иметь принципиальное значение. В этом случае допускается их прокладка под полом. Кухня может быть разбита на зоны.
Статья по теме:
Сталинки

«Сталинка» – это тип жилья, построенного при И. В. Сталине с 1930-х по 1950-е годы. Отличаются высокой комфортностью за счет большого метража. Как правило, «сталинки» имеют по 3-4 комнаты, реже – 1-2.
Плюсы и минусы:
| Достоинства | Недостатки |
|---|---|
|
|
Это отличное жилье с большим пространством для комфортного обустройства. Но найти «сталинку» в хорошем состоянии довольно трудно.
Затраты и согласования при свободной планировке
Утверждение «квартира со свободной планировкой» означает следующее – это студия, со всеми коммуникациями и контурами внутренних перегородок, обозначающих стены, на которые вроде бы намекает застройщик. На деле, он не просто намекает – законодательно эти стены там есть. Внутренние перегородки обязательно должны быть нанесены на план иначе невозможно выполнить расчеты, необходимые для строительства.
Без указания кухни не получится определить положение вентиляционных шахт, без разграничения санузлов не получится провести канализационные и водопроводные стояки, без данных о примерной площади жилого помещения невозможно рассчитать модель радиатора. А значит, уже несколько помещений «свободной планировки», так или иначе, определены в пространстве: это туалет, ванная, кухня. Возникает логичный вопрос: насколько изменяемо пространство такой планировки. Ответ немного странный: в пределах нежилых помещений.

Составим список, что действительно можно изменять в такой квартире:
- Площадь кухонь и санузлов за счеткоридоров и подсобок. Жилые комнаты уменьшать с целью увеличения кухонь или туалетов нельзя. Эти помещения относятся к зонам с повышенной влажностью или мокрым зонам, поэтому существенное увеличение размеров помещений приведет к увеличению нагрузки на систему вентиляции.
- Можноразмещать внутренние перегородки так, как вам этого хочется. Необходимо понимать, что каждая дополнительная строительная конструкция занимает место, а значит уменьшает количество квадратных метров и стоимость квартиры. Это незаметно при небольших площадях, но на больших пространствах потери будут чувствительны.
- Можносоздавать дверные проемы в несущих конструкциях.
- Можноразобрать часть стены на балкон, чтобы визуально объединить пространство лоджии и жилой комнаты. Но при этом нельзя переносить радиатор, подключенный к системе централизованного теплоснабжения на балкон. Почему? Это нарушит гидравлику системы отопления и может привести к пагубным последствиям.
Главное помнить, что для перепланировки необходимо согласование нового плана помещения и документов на него с БТИ, а это требует времени и денег. В частных фирмах вопрос перепланировки оценивается в диапазоне от 40 до одного миллиона рублей.
Такие квартиры, как правило, продают в панельных домах, где заботиться о несущих стенах не нужно, поскольку их роль выполняют внешние конструкции. В такой квартире возможности разграничения пространства действительно шире, но не стоит вестись на красивые цены.
Так, реальная цена всегда ниже заявленной. Панельный дом дешевле построить, чем кирпичный или монолитный, на внутренние перегородки не тратились деньги и трудовые ресурсы, а значит дом вышел быстрее и дешевле. Но именно словосочетание свободная планировка может добавить затрат вроде бы дешевой жилплощади.
Детские годы будущей актрисы
Свое редкое имя девочка, родившаяся в самой середине зимы 1973 г. в семье студентов Астраханского театрального института, приобрела в наследство от бабушки Груни, такой же зеленоглазой и рыжеволосой русской красавицы.
Так выглядела Агриппина Стеклова в детстве
Впоследствии именно эти штрихи ее индивидуальности – многочисленные веснушки, усыпающие все лицо, ярко-рыжий цвет волос, а также необычное имя – стали предметом бесконечных подтруниваний сверстников, часто напевавших ей вслед известную песенку о дяде Ване и тете Груне, а также о конопатом Антошке.
Это интересно! Профессиональными актерами у Агриппины были не только родители, но и бабушка с дедушкой. Династию продолжили дети.
В «неформатной», по выражению самой Стекловой, внешности отразились черты не только матери, но и отца, которого девочка боготворила. Однако в семнадцатилетнем возрасте ей пришлось пережить трагедию, связанную с уходом из семьи отца – человека, от которого она не могла ожидать предательства, потому что бесконечно доверяла. Его женитьба на актрисе Александре Захаровой стала для девушки одним из самых сильных жизненных потрясений. Боль утраты смягчило то, что родители смогли сохранить хорошие взаимоотношения.
Театральные роли
Впервые на сцену актриса вышла в детском возрасте. В одном из спектаклей ее партнером был С. Шакуров в роли Уильяма Шекспира, а маленькая Граня исполнила роль дочери поэта. Кроме этой роли, были и другие, сыгранные в детских спектаклях, но к своей ранней сценической деятельности Агриппина не относилась сколь-нибудь серьезно. Для нее это была, скорее всего, игра.
Перечень женских образов, созданных талантливой актрисой в театре, довольно длинный. Тем не менее театральные критики выделяют десятку триумфальных ролей А. Стекловой, без упоминания о которых разговор о ее творчестве лишен смысла.
| Название спектакля | Роль, сыгранная А.В. Стекловой |
| Макбет | Леди Макбет, Леди Дункан, Первая ведьма |
| Ричард III | Королева Елизавета |
| Кьюджинские перепалки | Донна Либера |
| Трехгрошовая опера | Проститутка |
| Ромео и Джульетта | Горожанка |
| Тартюф | Дорина |
| Жак и его Господин | Трактирщица |
| Смешные деньги | Джейн Перкинс |
| Гедда Габлер | Фру Теа Эльвстед |
| Король Лир | Регана |
Даже этот небольшой список позволяет сделать справедливое заключение о том, что актриса способна блистательно исполнить практически любую роль – от простой горожанки до коронованной особы.
Агриппина Стеклова – одна из немногих российских актрис, обладающих абсолютной узнаваемостью
Ее высокий профессионализм не остался незамеченным. Стеклова была награждена премией «Чайка» за роль Регины, блестяще исполненную ею в спектакле «Король Лир», поставленном по одноименной драме В.Шекспира.
Столь же почетно и награждение за лучшую роль второго плана премией «Звезда театрала». Награда получена в связи с премьерой спектакля «Тартюф», где она предстала перед зрительской аудиторией в образе Дорины.
Неслучайно Константин Райкин, характеризуя творчество актрисы, назвал ее неподдельной драгоценностью, безупречной в своем профессионализме.
В артистической биографии театральной примы было немало, цветов, аплодисментов, восторженных взглядов поклонников, но главная награда – звание Заслуженной артистки Российской Федерации.
Юношеские годы
Актерские судьбы родителей, бабушки и дедушки, а также творческая атмосфера в доме повлияли на выбор девушкой профессионального пути. Самую значительную роль в этом сыграл отец, создавший десятки запоминающихся ролей в художественных фильмах и сотни в театральных постановках. Он был для нее самым большим авторитетом в жизни.
Продолжая актерскую династию, Граня решила поступать в ГИТИС, самый знаменитый театральный вуз страны. Провалив экзамены, она со свойственным ей упорством на следующий год все же стала студенткой и по счастливому стечению обстоятельств была зачислена на курс Марка Захарова.
Еще не окончив учебу, Агриппина стала работать в «Сатириконе» под покровительством знаменитого К. Райкина, всегда восторгавшегося ее профессионализмом и внешностью.

А.В. Стеклова в молодости
Таким образом, без преувеличения можно сказать, что творческая биография Агриппины Стекловой буквально с первых дней стала складываться весьма удачно. Но не потому что ей помогали знаменитые родители, а благодаря собственным стараниям, профессионализму и незаурядной внешности.
Недвижимость Немоляевой

Семья проживает в Москве по адресу Смоленская площадь, 13/21. Проект построенного в 1953 году дома принадлежит Ивану Жолтковскому, который выбрал для него стиль итальянского ренессанса. Хозяевам настолько понравился оригинальный дизайн купленной квартиры, что они старались изменять пространство по минимуму, реставрируя и сохраняя старинные детали. Что касается стоимости, цена на квартиру в этом районе сейчас составляет около 30-100 млн. рублей.
https://youtube.com/watch?v=3SPtDBlJOOU
Помимо столичной квартиры у супругов есть загородный дом в Подмосковье площадью 450 м². В обоих случаях дизайн жилплощади семейство разрабатывало без посторонней помощи. Помимо сохранения старинной атмосферы, супруги ставили перед собой задачу воссоздать в комнатах дух разных стран и эпох.
Квартира Владимира Винокура
Владимир жил со своей семьей на Арбате, но не так давно решил переехать, оставив квартиру дочери. Но уехать далеко не получилось. Сосед снизу предложил на время своего уезда Владимиру пожить у него. Но из-за заграницы, куда и отправился хозяин, сосед Винокура передумал возвращаться и решил продать квартиру семье Винокура. Туда и переехал актер вместе со своей женой. Интерьер квартиры, хоть он и был непривычен, новые хозяева решили не изменять, а вещи из прошлой квартиры идеально подошли к интерьеру нового жилья. Обставлена квартира с изыском, подобно царскому дворцу.
Гостиная просторная, пол сверкает, как мраморный в бальных залах дворцов, высокие потолки отделаны лепниной и украшены золотистыми фресками, потолок прекрасно дополняет люстра сделанная в золоте. Вся комната выдержана в бело-золотых тонах, с редкими вставками коричневого. На белоснежных картинах висят портреты семьи Винокура, пейзажи и украшения из цветов.
Светлый диван, на котором собирается вся семья, кресло, камин, где зимним вечером можно насладиться уютом дома, шкаф, над которым висит картина, а его самого украшают различные статуэтки, часы, фотографии – все это расставлено по контуру комнаты, оставляя достаточно свободного места. Большие окна украшает светлый тюль, а на ночь их можно закрыть коричневыми шторами.
Кухня, не изменяя обстановке гостиной, тоже сделана в молочных оттенках. В большой кухне, с множеством прозрачных дверцей и шкафчиков, хранится посуда и продукты, а за большим ванильным столом собирается на завтрак, и не только, семья Винокура. Кабинет Владимира уже выглядит более массивным, из-за добавления в интерьер бордовых и темно-коричневых оттенков, а также деревянных материалов. Большой стол из дерева занимает главное пространство, вмещая на себе кучу бумаг. Красный диван, на взгляд не отличающийся мягкостью или легкостью, стоит рядом со столом. Белые стены кабинета как и остальные комнаты украшены различными картинами.
Личная зона, спальня хозяев, сочетает в себе две особенности комнат квартиры: изысканную легкость и домашний уют. Пол, как и прикроватная тумбочка и пуфик, сделаны из дерева.
Кресло под цвет им стоит с другой стороны от кровати, слегка отливая золотом. На стенах картины, окна украшают золотисто-бежевые занавески.
Ванная комната в ванильных оттенках оснащена душем, ванной, умывальником и другим, необходимой для принятия водных процедур. Квартиры на Арбате, где и находится жилье Винокура, продаются от 22 млн. рублей.
Отдыхает семья Владимира в загородном доме в поселке «Лесное Озеро». Соседями Винокура являются Агутин, Лещенко, Наташа Королева. Поселок охраняется и окружен лесом, что обеспечивает прекрасный чистый воздух, природу, успокаивающую и позволяющую отдохнуть от утомляющих гастролей. Дом Владимира Винокура стоит на улице Центральная, а стоят подобные дома в этом поселке от 11 млн. рублей и выше.
Квартира Владимира Винокура отделана с царственным величием и властностью. Одновременно с этим в интерьере можно заметить легкость и изящность. Все эти качества в себе содержат хозяева дома. Они прекрасно обставили квартиру, со вкусом и ответственностью подойдя к этому вопросу.
Читайте далее:
Владимир Стеклов: из загородного дома в квартиру с футуристическим ремонтом
«Умный дом» Владимира Вдовиченкова
Квартира и загородный особняк Вячеслава Манучарова
Онлайн через Росреестр
Самый простой и доступный способ быстро узнать планировку квартиры по адресу — заказать выписку и ЕГРН на сайте Росреестра. Выписка делается за 3 дня и стоит для физических лиц от 300 рублей. Третий раздел выписки содержит план объекта (дома или квартиры).
Простая выписка из ЕГРН
Выписка из ЕГРН на квартиру – это единственный официальный документ, подтверждающий право собственности на квартиру. В нем содержится информация Росреестра о характеристиках объекта (площадь, адрес, кадастровый номер), сведения о доме, собственниках и ограничениях на квартиру, форма собственности.
Выписка из ЕГРН на квартиру заполняется в соответствии с приказом Министерства Экономического Развития №378 от 20 июня 2016 года.
Планировка дома или квартиры по нужному адресу будет примерно как на фото ниже.
Далее на фото — еще один пример схемы квартиры по адресу дома, взятой из ЕГРН. Довольно часто выписка имеет подобный вид и размеры помещений не содержит. Максимум что можно выяснить — это схематичное расположение комнат. Однако и этого может быть достаточно, чтобы убедиться в отсутствии незаконных перепланировок и площади помещений. Раздел 5 выписки содержит поэтажный план с расположением на нём квартиры.
О том как получить выписку пошагово, читайте подробнее тут.
Отметим, что выписка ЕГРН не имеет срока давности. Она считается действительной, пока информация, содержащаяся в ней, является актуальной. Но разные организации предъявляют свои требования к сроку давности.
Так, нотариусы, органы ФМС, опеки, суды и банки просят выписку, полученную не позднее месяца назад. МФЦ, Мои документы, БТИ и агентства по приватизации просят выписку от 3-х до 6-и месяцев. Однако такое требование не совсем обосновано законными положениями, но имеет место быть в связи с тем, что сведения должны быть актуальными.
Расширенная выписка из ЕГРН
Поквартирный план дома по адресу имеется только в расширенной выписке ЕГРН.
Данная выписка обычно готовится в течение 3-5 дней. На усмотрение сотрудника Росреестра может быть отражена только квартира или весь этаж здания. Если выписка получена в электронном виде, то поэтажный план квартиры может идти отдельным файлом, подписанным ЭЦП.
Расширенная выписка содержит следующие данные:
- расположение основных и вспомогательных помещений;
- оконные и дверные проемы, вентканалы;
- размеры помещений на этаже;
- прокладка инженерных сетей и оборудования;
- экспликация с полным перечнем технических параметров (площадь, назначение помещений и т.д.).
Сторонние сервисы
Можно ли узнать план квартиры по адресу через онлайн сервисы вроде «ктотам», «егрнка» и т.д.? Раньше, до мая 2021 года, они активно предоставляли сведения из ЕГРН.
Однако законом «О внесении изменений в Федеральный закон «О государственной регистрации недвижимости» подобные сайты фактически запрещены.
Лофты
В классическом понимании «лофт» является переделанным из старого производственного здания жильем. Как правило, под лофт переделывались заводские помещения. Пришел этот формат из США, где была распространен во времена Великой депрессии. Тогда он позиционировался как очень дешевое жилье в аренду.
В России тип недвижимости видоизменился – теперь это не дешевое жилье в фабричном здании. За счет моды и удобства оно перекочевало в разряд элитных и стоит довольно дорого. Кроме того, стали появляться новостройки в стиле лофт – то есть обычные жилые здания по особым проектам и с уникальным стилем.
Плюс лофта – в необычности. То, что может показаться неухоженностью (торчащие около стен коммуникации, отсутствие штукатурки и так далее) придает стилю изюминку. Кроме того, такое жилье имеет высокие потолки и внушительные окна. Минусов всего два – настоящего лофта в России мало. А если он и есть, то будет очень дорогим.
Стильная кухня
Двери санузла демонтировали, новую перегородку установили ближе к прихожей, благодаря такому решению площадь кухни увеличилась. От гостиной её отделяет стильный остров со столешницей из искусственного камня, изготовленный из металлического каркаса. Он довольно функционален, поскольку наполнен большим количеством ящичков и полочек для хранения.
ФОТО: roomidea.ruКаркас из металла скрыт за стенками шкафчика
ФОТО: design-parquet.ruМассив горного тополя лежит внахлёст на столешнице
Гарнитур изготовлен из МДФ, высота потолка позволила установить верхние шкафчики в два яруса. Они открываются лёгким нажатием руки, на матовой поверхности, покрашенной современной краской, отпечатки пальцев не остаются.
Фартук защитили скинали из закалённого стекла. Это довольно практичный вариант, поскольку не требует особого ухода. В рабочей зоне установили стиральную машинку, мойку и выдвижные ящики с доводчиками для хранения кухонной утвари. Напротив организовали обеденную зону, в которой поставили высокий стол. Рядом разместили стильные барные стулья, обитые тёмной кожей.
Барную стойку освещает необычная люстра, напоминающая плавающих рыб. Дизайнер своими руками сделала рамки для памятных фотографий. В работе она использовала оригинальные гвозди из металла, изготовленные вручную в кузнице.
1 из 6
ФОТО: ald-interior.com ФОТО: abitant.com
ФОТО: ald-interior.com
ФОТО: design-parquet.ru ФОТО: design-parquet.ru
ФОТО: design-parquet.ru
Дома-коммуны
Дома-коммуны решали не только практическую, но и идеологическую задачу. Считалось, что воспитать свободного от мещанских ценностей «нового человека» в старых архитектурных пространствах невозможно: для нового быта требовался новый тип жилья.
Как правило, они состояли из жилого корпуса с компактными квартирами без кухонь и большого общественного блока со столовой, прачечной, детским садом, библиотекой. Предполагалось, что в своих комнатах жильцы будут только спать, а всё остальное — питаться, проводить свободное время, воспитывать детей — будут делать вместе.
Одним из самых радикальных образцов дома-коммуны стало общежитие Текстильного института (Москва, 2-й Донской проезд, 9).
Источник
Источник
Архитектор и инженер Иван Николаев создал пространство, где все функции (сон, еда, учеба, отдых) жестко разделены, а жизнь подчинена строжайшему графику. 1008 двухместных комнат (а вернее сказать, кабин) площадью 2,3–2,7 м с раздвижными, как в купе поезда, дверями были рассчитаны только на сон. В них запрещалось даже оставлять одежду и личные вещи: учебники хранились в индивидуальных шкафчиках возле комнаты для занятий, предметы гигиены — в санитарном блоке. Из мебели в кабинах были только кровати: не было ни шкафчиков, ни столов, ни стульев. В первоначальном варианте проекта не было даже окон, а комнаты были еще меньше; но в окончательной редакции окна все-таки добавили. Весь день студенты проводили в общественном блоке: там были устроены столовая, библиотека, комнаты для занятий и кружков.
Вот как сам Николаев описывал распорядок дня в спроектированном им доме-коммуне:
Звучит как отрывок из антиутопии. Правда, социальный эксперимент продлился недолго: довольно быстро крошечные кабины стали использоваться как обычные комнаты в студенческом общежитии: в них и хранили личные вещи, и готовились к занятиям, и отдыхали.
Некоторые архитекторы предлагали еще более радикальные идеи переустройства быта. Один из самых ярких примеров — дипломный проект коммуны для горняков шахты в Анжеро-Судженске (Кемеровская область), разработанный студентом Николаем Кузьминым в 1928 году. В его доме-коммуне жилые блоки предполагалось разделить для 4 возрастных групп: дети, подростки (живущие отдельно от родителей), взрослые и пожилые. Достигая определенного возраста, жители перемещаются в соответствующий своей группе блок. Жилые комнаты (на 6 и 8 человек, отдельно мужские и женские, плюс 8 «двуспален» для супружеских пар) предназначены только для сна.
Визуальное увеличение пространства прихожей
В прихожей установили высокие шкафы, зеркальные дверцы которых визуально расширяют помещение. Дизайнер дополнила пространство светоотражающими конструкциями, замаскировав таким образом двери в ванную комнату и санузел.
Правильное распределение люстр, идеально подобранные бра, обилие светоотражающих поверхностей, зеркальные панели, установленные над дверными порталами, создают эффект большой высоты, но это лишь иллюзия и грамотное сочетание дизайнерских приёмов.
ФОТО: homemania.ruПотолочные точечные светильники практически сливаются с белоснежным потолком прихожей
Детство и юность
Агриппина родилась в Краснодаре 15 февраля 1973 года. Воспитывалась в актерской семье, вместе с младшей сестрой Глафирой Стекловой. Отец девочек – знаменитый российский театральный и киноактер Владимир Стеклов, по происхождению поволжский немец. Известен широкому зрителю благодаря огромному послужному списку, в котором находятся десятки фильмов и театральных спектаклей.
В семье слово отца было законом, Владимир Александрович пользовался огромным авторитетом. Мать девочки тоже была актрисой. Людмила Мощенская познакомилась с будущим супругом в Астрахани. Вместе молодые люди посещали театральный кружок, затем поступили в местное театральное училище.
Необычное имя девочка получила в честь бабушки и поначалу стеснялась его: на вопрос о том, как ее зовут, маленькая Граня старалась отвечать как можно тише, чтобы собеседник услышал «Аня». Также немало хлопот в детстве доставляла огненная шевелюра, только ленивый не пел девочке песенку про рыжего-конопатого.
Закажите проект перепланировки
Проект перепланировки заказывают в компании, у которой есть допуски СРО на выполнение проектных работ. СРО — это саморегулируемая организация, по факту — реестр всех порядочных строителей. Раньше строителям выдавали лицензии на проектирование, а теперь выдают допуск на проектирование, свидетельство о допуске и вносят в реестр этой СРО.
Чтобы убедиться, что у компании действительно есть допуски СРО, запросите у них свидетельство о допуске к работам. В свидетельстве посмотрите, в какой СРО состоит компания и за каким номером в реестре она числится.
Найдите сайт этой СРО и проверьте, есть ли в реестре членов интересующая вас компания. Если всё в порядке, несите им техпаспорт квартиры и заказывайте проект. Проект перепланировки нужен, чтобы в отделе архитектуры убедились, что перекрытия способны выдержать нагрузку, которую создадут ваши дополнительные кирпичи.
Пока вам в компании сделают проект перепланировки, пройдет 5 дней. В случае с гардеробной проект стоило бы порядка 15-20 тысяч рублей. Некоторые компании берут дороже, некоторые дешевле. Ограничений цен и сроков нет, так что ищите компанию, которая устроит именно вас.
Компания согласовывает и готовит техническое заключение о допустимости и безопасности работ по перепланировке. Это заключение вы получаете вместе с готовым проектом.
Ограничения
Что касается свободы внутренней перепланировки, то это скорее миф, чем реальность. При перепланировке существуют серьезные ограничения:
- Несущие стены. Ни в коем случае не разрешается переносить или ломать несущие стены, особенно это касается больших помещений.
- Санитарные стояки. Расположение стояков всегда отражено в планировке квартиры, но согласовать их перемещение практически невозможно. Поэтому ванная и туалет останутся в месте, отведенном им застройщиком.
- Окна. Количество и расположение оконных проемов рассчитывается в зависимости от площади и расположения квартиры.
Покупатели редко обращают внимание на то, что по документам общая площадь квартиры в два раза больше жилой зоны. В таких случаях работают ограничения по фактической инсоляции. Приходится использовать плохо освещенные зоны для увеличения объема жилого пространства, а для таких проектов тоже нелегко получить согласование
Приходится использовать плохо освещенные зоны для увеличения объема жилого пространства, а для таких проектов тоже нелегко получить согласование.
Важно! По закону не допускается расширение подсобной площади за счет жилой. Это значит, что балконы и лоджии нельзя перестраивать в жилые помещения, запрещено планировать комнаты менее 9 квадратных метров





































