Дачный унитаз: виды. Особенности квартирного варианта, деревянных, железных и пластмассовых моделей
Туалет – это первая постройка, которая должна появиться на загородном дачном участке. Наличие элементарных удобств необходимо как при использовании дачи исключительно в качестве огорода, так и в случае начала строительства на ней жилого здания.
И даже после установки «тёплого» санузла непосредственно в доме есть смысл иметь его дублёра и снаружи
Как это сделать наилучшим образом, мы разберёмся в данной статье, а особое внимание уделим самому важному элементу – унитазу
Удобный дачный унитаз для уличного туалета
Общие положения
Эстетичный дачный туалет с унитазом
Начнём, пожалуй, с преимуществ наличия дачного уличного туалета, чтобы раз и навсегда ответить на вопрос о его необходимости. Их можно выразить с помощью следующей таблицы:
Туалеты-избушки и дачные дома из блок контейнеров отлично гармонируют друг с другом
А какая же часть уборной самая главная? Конечно же, та, которая контактирует с вами. Именно от неё зависит то, насколько комфортно пройдёт посещение означенной постройки. Поэтому далее речь пойдёт об унитазах.
Виды реализации унитазов
Речь пойдёт не просто о каких-то моделях, а именно о комплексном подходе к данному вопросу.
Квартирный вариант
Фаянсовый унитаз для дачного туалета
Зачем что-то придумывать, когда полки магазинов полны классическими удобными фаянсовыми изделиями, такими же, как устанавливаются в квартирах и домашних санузлах?
Пара причин всё-таки есть:
- Достаточно высокая цена. Рассматриваемый агрегат, скорее всего, окажется намного дороже самой постройки.
- Большой вес. Чаще всего над выгребной ямой устанавливается настил из досок, а на него сверху монтируется унитаз. Так вот тяжесть фаянса древесина может не выдержать, и тогда случится трагедия.
Совет: если вы всё-таки настойчиво желаете использовать именно фаянсовую модель, то следует тогда создать железобетонное перекрытие. В таком случае вы точно не провалитесь, но и вся затея выйдет гораздо дороже.
Деревянный прилавок
Фото сбитого из досок «прилавка»
Один из распространённых вариантов реализации самодельного сиденья для туалета – это создание своеобразной широкой ступеньки.
Подробная инструкция выполнения такой операции выглядит так:
- Половину пола застилаем досками.
- Посередине на высоте 40 см устанавливаем поперечную балку.
- Заделываем вертикальный промежуток между перекладиной и полом, а также закрываем верх получившегося прилавка.
- В верхней его части прорезаем овальное отверстие под обычное пластиковое сиденье.
Совет: при обустройстве туалета над выгребной ямой рекомендуется вывести из неё наружу вентиляционную трубу высотой около трёх метров. Так вы сократите количество неприятных запахов в самой постройке.
Вентиляционная труба защитит вас от зловонных ароматов во время посещения туалета
Железный трон
Металлическая самодельная конструкция
Несмотря на высокопарность названия, цена изготовления такого унитаза выходит наименьшей. Поэтому данный вариант особо привлекателен для редко посещаемых дач.
Заключается он в следующем:
- Подбираем подходящий кусок оцинкованной трубы с сечением 300-350 мм и высотой около 400 мм или же делаем его из листа соответствующего материала.
Совет: если вы трубу сворачиваете сами, то лучше сделать её овальной. Такая форма больше подходит для размещения в клозете.
- Верх при помощи ножниц по металлу разрезаем в виде ромашки.
Железная «ромашка» дачного туалета
- Далее берём лист фанеры толщиной не менее восьми миллиметров и вырезаем из него подходящей формы сиденье, которое фиксируем на отогнутые края трубы.
- Всю конструкцию устанавливаем над септиком.
Конечно, такая конструкция не отличается особой эстетичностью, зато необходимые для её создания материалы обычно можно найти в любом хозяйстве.
Если вы планируете чистку выгребной ямы выполнять самостоятельно, то вам, возможно, потребуется аренда дизель генератора для дачи и глубинного насоса.
Пластмассовая модель
Пластиковый унитаз в деревянном туалете на даче
Это оптимальный вариант для обитаемого участка, обладающий несколькими достоинствами:
- Привлекательный внешний вид. К тому же имеется широкий ассортимент форм и расцветок.
- Лёгкий вес, который не станет оказывать чрезмерного давления на пол.
- Высокая прочность.
- Удобная эксплуатация.
- Гигиеничность.
- Приемлемая стоимость.
Единственное в чём могут возникнуть некоторые трудности, так это в монтаже на септик в виде пластиковой бочки. Вам понадобятся для этого некоторые дополнительные материалы:
Дачный унитаз: виды Дачный унитаз для уличного туалета: пластиковый, видео-инструкция как установить своими руками, фото и цена
Разновидности выгребных ям
Почти для каждого дачного туалета нужна выгребная яма
Принцип работы выгребной ямы на даче придуман давно, и актуален по сей день. В подготовленном углублении в почве собираются все отходы из туалета. Благодаря специально подобранной конструкции и укрепленным стенкам, такая выгребная яма может выполнять все поставленные функции. Она обустраивается следующим образом:
Выгребная яма из кирпича
- из кирпича или бутового камня;
- из пластиковой или металлической емкости;
- из железобетонных колец;
- из готовой емкости для септиков;
- из монолитного бетона.
После того как в данном углублении скопится много жидкости, можно приступать к откачке отходов. Сделать это необходимо при помощи специальной машины-ассенизатора или вручную. Многие владельцы загородных дач выбирают вариант, который предусматривает засыпку выгребной ямы через 3-4 года. При этом нужно ориентироваться на степень ее наполнения.
Когда отходы заполнят 70% котлована, его можно засыпать, после чего сам туалет переносится на новое место на даче. Через 7-8 лет вся биологическая масса расщепляется и образовывается обычный чернозем. На этом месте можно вновь выкопать яму и установить своими руками туалет.
Выгребная яма для дачного туалета из шин
Изготовление своими руками крыши уличного туалета
И последний этап строительства нашего WC – изготовление временной (или постоянной и очень дешевой) крыши. Рассмотрим этот вариант пошагово.
ШАГ 1: отпиливаем доски. Нам нужен размер с напусками по 20 сантиметров, не больше, чтобы не срывало ветром.
ШАГ 2: привинчиваем доски саморезами. По 2 самореза на 1 сторону будет достаточно.
ШАГ 3: натягиваем и крепим пленку. 200 микрон в 2 слоя, напуски на стены и доски по 15-20 сантиметров, все закручивается саморезами и мягкими резиновыми шайбами.
Мы показали, как построить уличный туалет и фото сделаны были именно с «чернового варианта», далее на этом санузле будет поклеена битумная крыша, аналогично такой же, которая делалась на доме и заборе. О недостатках битумной черепицы и ее преимуществах вы можете почитать в другой нашей статье про битумку и выбрать для себя оптимальный вариант кровли. Но я все же советую делать все в одном стиле и потратить больше времени на укладку битумной черепицы для получения лучшего результата.
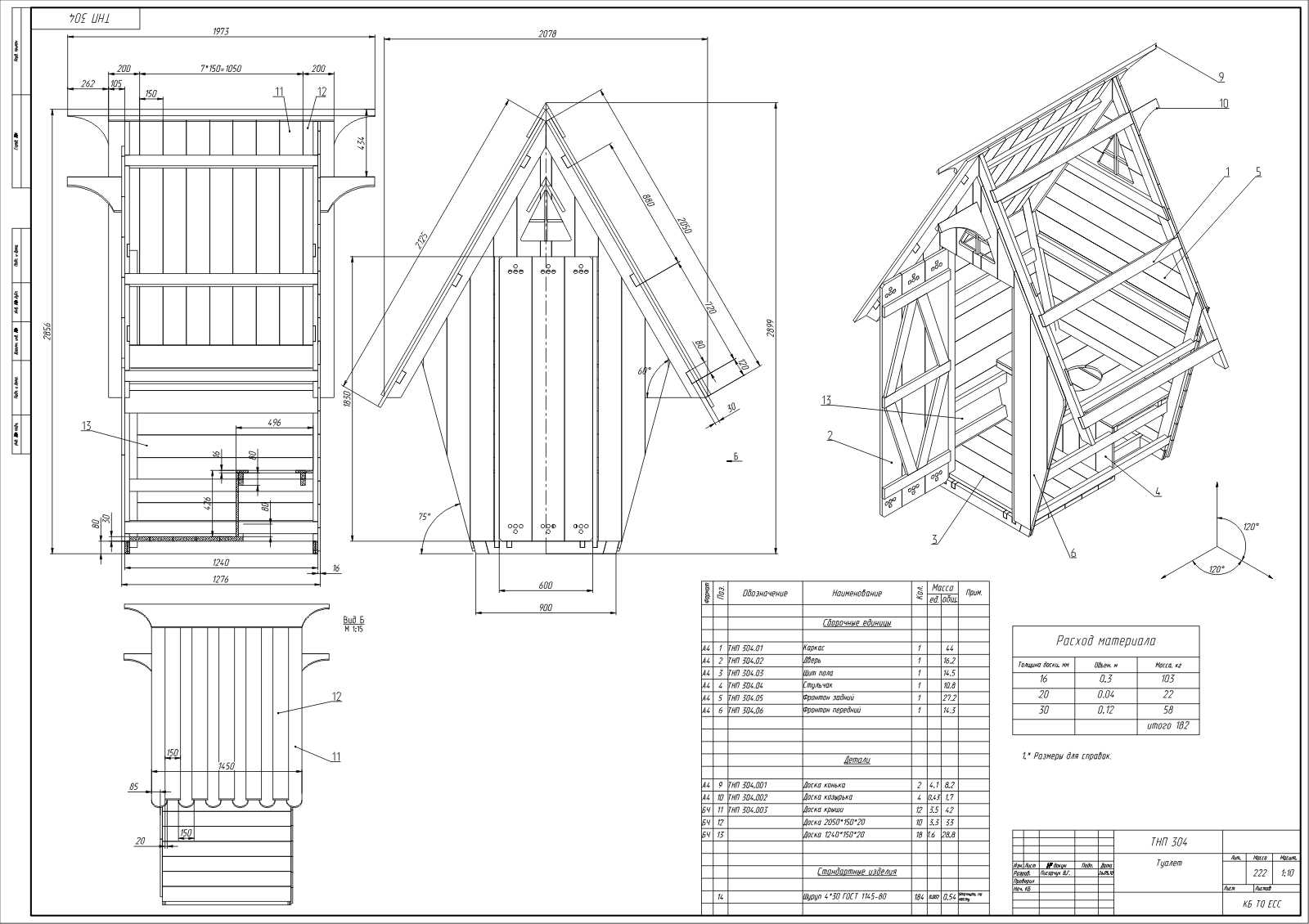
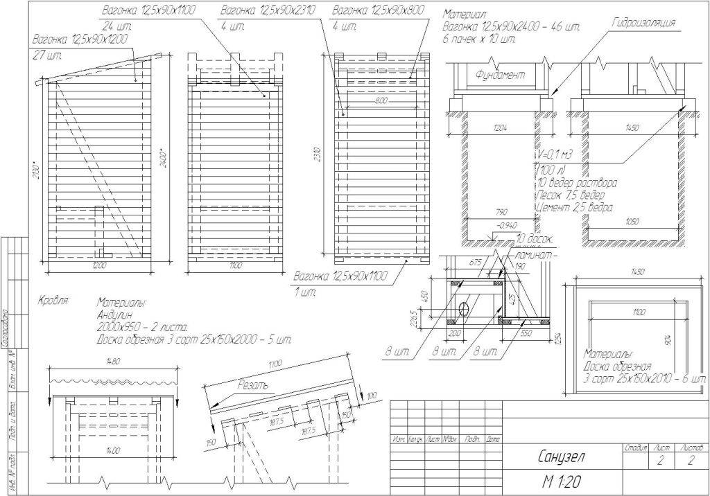
Строительство туалета для дачи: чертеж с размерами для конструкции типа «Скворечник»
Конструкция «Скворечника» состоит из древесины, которая может быть ообшита любым другим видом материала. Допускается строительство одно- или двускатной крыши. Данный вид клозета монтируется в качестве надземной постройки над выгребной ямой.
Типовый проект «Скворечника» с размерными параметрами:
| Элемент конструкции | Размер, м |
| Задняя стенка (высота) | 2 |
| Ширина | 1 |
| Передняя стенка (высота) | 2,3 |
| Площадь основания | 1х1 |
При установке конструкции деревянного туалета необходим обязательный контроль размещения поверхностей по вертикали и горизонтали. Для этих целей рекомендуется использовать строительный уровень.
Чертеж туалета «Скворечник»: 1 — обвязка, 2 — стойка, 3 — дверь, 4 — ручка, 5 — поперечина двери, 6 — передняя стенка, 7 — стропила крыши, 8 — кровля, 9 — вентиляционный стояк, 10 — дефлектор, 11 — боковая стенка, 12 — крышка выгребной ямы, 13 — кирпичные опоры, 14 — задняя стенка
Материалы для строительства «Скворечника»
Для проведения работ позаботьтесь о наличии:
- рубероида — в количестве 2 м?;
- бетонного бордюра (2 шт., длина – 2 м) или песчано-цементного блока (4 шт.);
- дверного блока (2000х900 мм);
- песка;
- вагонки (40 шт., 87х3000 мм);
- обрезной доски (4 шт., 50х100х6000 мм; 3 шт., 32х90х6000 мм);
- профильного листа из стали с оцинковкой (2000х1520х0,4 мм);
- деревянного бруса (1 шт., 50х50х600);
- комплектующих к двери (шпингалета, петель, ручки);
- крепежных элементов (саморезов, гвоздей);
- материала для финишного покрытия (лакирующего или красящего состава).
Туалет «Скворечник», фото 1: подготовка материалов и монтаж каркаса
В целях утепления конструкции следует приобрести пенопласт. После окончания строительства каркас обшивается им изнутри. Вы можете выполнить внутреннюю отделку красивыми материалами (по желанию).
Как построить туалет на даче своими руками: поэтапное строительство «Скворечника»
Инструкция к строительству «Скворечника» (пошаговое руководство):
организация выгребной ямы. Минимальный размер резервуара составляет 1х1х2 м. На дне выполняется подушка из щебня или битого кирпича;
Туалет «Скворечник», фото 2: устройство технологического отверстия в полу
- строительство фундаментной части. Для этого бордюр из бетона устанавливается так, чтобы края ямы располагались от него на расстоянии не более 0,2 м. Бордюр будет играть роль перекрытия. Процесс монтажа бордюра предполагает вкапывание таким образом, чтобы бетонное основание возвышалось над уровнем почвы не более чем на 0,1-0,15 м. Если используются песчано-цементные блоки, их следует вкопать по углам. На них в будущем будет установлен весь каркас;
- монтаж рубероида. Материал укладывается поверх основания в 3-4 слоя в качестве изолятора от влаги;
- строительство надземной части (каркаса из дерева), его отделка. В качестве обшивочного материала для каркаса может использоваться деревянная доска или вагонка. Настил для пола делается из толстых досок. Минимальная толщина для напольного покрытия составляет 4 см. Рекомендуется использовать породы дерева, обладающие повышенными прочностными характеристиками. К таким породам относится лиственница, бук, дуб и т.п.
Туалет «Скворечник», фото 3: обшивка внешних стен конструкции
Заключительные работы по созданию «Скворечника»
К заключительным работам относятся следующие этапы:
- формирование отверстия в полу. Форма прорези в этом случае может быть произвольной (круглой, ромбовидной, овальной, в виде сердечка), главное, чтобы диаметр его составлял не менее 30 см;
- монтаж дверной конструкции. Для удобства в полотне двери можно выполнить небольшую прорезь в виде окошка, чтобы солнечный свет мог проникать внутрь каркаса. Это оконце можно оставить свободным или остеклить;
- обустройство кровли. Крыша «Скворечника» может укрываться различными видами материалов. Лучше всего для этих целей подходит асбестоцементный лист, рубероид, профильный лист, изготовленный из стали;
- нанесение финишного слоя. Поверхность изделия следует обработать лакирующим составом или краской. Рекомендуется использовать масляный краситель.
Туалет «Скворечник», фото 4: монтаж вентиляционной трубы и обустройство кровли
При обустройстве туалетов не стоит забывать об организации вентиляции. Достаточно будет даже простейшего варианта. Эта система предназначена для вывода воздуха из ямы с отходами наружу. В качестве материала для изготовления вентиляции может быть использована труба. Минимальный диаметр изделия – 10 см.
Для установки трубы в подиумной части туалета, а также в его крыше выполняются прорези соответствующего диаметра. Труба должна возвышаться над крышей минимум на 0,2 м.
Туалет «Скворечник», фото 5: дачный туалет, построенный своими руками
Основные требования к конструкциям
Прежде чем я расскажу, как делать тот или иной вариант туалета, нужно обозначить основные требования по выбору места его расположения. Дело в том, что санитарными нормами четко определены несколько важных правил, нарушение которых приведет к штрафу или даже к порче питьевой воды на вашем участке, что крайне нежелательно.
Основные рекомендации по расположению туалета показаны на рисунке
Рассмотрим самые важные рекомендации:
- Расстояние до колодца должно быть не менее 30 метров, а вообще, чем больше этот показатель – тем лучше;
- До проезжей части должно быть не менее 5 метров, иначе неприятные запахи могут беспокоить прохожих;
- Нельзя располагать конструкцию вплотную к забору, минимальный отступ составляет 1 метр;
- До водоемов должно быть не менее 30 метров, до мелких ручьев – как минимум 10 метров;
- Жилые строения должны располагаться на удалении как минимум 12 метров;
- До деревьев должно быть не менее 3 метров.
Расположение туалета в самом дальнем углу участка – оптимальное решение
От себя хочу отметить, если на вашем участке есть низина, в которой весной стоит вода, то строить там туалет запрещено, так как ежегодно все нечистоты будут распространяться по-вашему и соседним участкам.
Туалет для дачи без запаха и откачки: три возможных решения
Существует три возможных варианта постройки туалета без необходимости откачки. Все они фундаментально различаются между собой по конечной стоимости, целесообразности в связи со временем проживания на участке и дачных условий, поэтому прежде чем сделать выбор, внимательно изучите описание всех решений.
Обратите внимание на критерии выбора клозета
Торфяной биотуалет для дачи
Данный вариант является оптимальным ввиду целого ряда причин. Во-первых, это самое дешевое решение, для которого не надо возводить каких-то сложных конструкций. Во-вторых, перерабатывая отходы человеческой жизнедеятельности, биотуалеты производят прекрасное удобрение для почвы под посадку разнообразных растений. В-третьих, данное решение не занимает много места, а для его правильной и эффективной эксплуатации вам понадобится лишь специальный торф, который вы можете легко приобрести в любом строительном магазине.
Главным плюсом торфяного туалета является то, что его необходимо очищать всего раз в месяц даже при условии активного регулярного использования.
Как уже упоминалось ранее, у всех представленных вариантов есть свои нюансы установки. В случае с торфяным клозетом они следующие:
- Оптимальным местом для обустройства такого туалета будет обычный хозблок. Это решит проблему возникновения неприятного запаха.
- Для того чтобы ликвидировать абсолютно всю жидкость, необходимо обязательно создать систему дренажа, а в случае если туалет будет располагаться в доме – подвести к нему шланг.
Таким образом, установка торфяного биотуалета для дачи позволит решить целый ряд проблем и неприятностей, связанных с обустройством санузла.
Торфяной клозет во многом хорош благодаря своей низкой цене и простоте установки
Бетонные или пластиковые септики
Данный вариант представляет собой целую специально оборудованную систему, которая предназначена для сбора и очистки жидкостей и отходов. На каждом из этапов жидкость очищается при помощи разных компонентов, что исключает возможность попадания вредных веществ в почву. Принцип ее работы довольно прост и заключается в постепенном очищении жидкостей по секциям, а затем заключительной фильтрации на поле.
Примерная схема расположения септиков на участке
Усовершенствованные современные конструкции
Подобные туалеты для дачи без запаха и откачки представляют собой улучшенные и усовершенствованные септики, с более высоким уровнем очистки. Наиболее часто применяются такие варианты как:
- Септики ультрафильтрации позволяют очистить жидкость до такой степени, что становится возможным ее повторное использование. Кроме того, большим плюсом данного метода является то, что в нем не используется никаких вредных химических веществ.
- Ионообменные устройства позволяют очистить воду до нужной кондиции и сделать ее гораздо более мягкой, чем до очистки;
Такой вид имеет один из современных вариантов септиков
- Электрохимические конструкции позволяют очистить воду при помощи особых реакций;
- Мембранный осмос является самым современным видом очистки жидкости, и позволяет очистить воду до состояния дистиллированной. Это становится возможным благодаря специальным мембранам, проходя через которых молекулы воды очищаются от всевозможных примесей, опасных для здоровья человека, например ртути или хлора.
Так выглядит усовершенствованная система очистки
Ширина и глубина ямы для туалета на даче
Как правило, выгребной уличный туалет на дачном угодье ставят на неглубокой яме. Ее оптимальная глубина 1,5-2 м. Ширина выгребной ямы для выкопки должна быть в пределах 1,5 м на 1,5 м. Для строительства обычного дачного туалета такого резервуара вполне достаточно, при увеличении ширины боковых стенок становится сложнее накрыть яму.
Когда яма рассчитана не только на отходы от туалета, а также под отходы жилого дома, то для вычисления ширины и глубины учитывают количество людей, проживающих на даче. В среднем 1 человек потребляет 180 л воды в сутки. Произведя несложные вычисления, становится понятно, что, например, 3 лица за месяц постоянного пользования заполнят яму с отходами на 12 м3. Яму делают с запасом, поэтому ее объем в этом случае должен быть не менее 18 м3.
Замечание! Яму без дна на даче делают с учетом грунта. Песчаная и рыхлая почва впитывает до 40% воды, а глинистая земля плохо впитывает воду, поэтому яму делают с запасом.
В любом случае яму под уборную на даче не выкапывают глубже 3 м. Если этой глубины недостаточно, то лучше поставить септик или чаще выкачивать отходы.
Уличный туалет для дачи из ОСБ плиты своими руками – фото и чертежи
Пожалуй, самый простой способ построить достаточно удобный для летнего использования дачный туалет – использовать плиты ОСБ. Они дешевы, легко поддаются обработке и подогнать их под размеры конкретной постройки не составит труда.
Фундаментом на прочной почве вообще можно пренебречь, а если и устраивать его, то самый простой, столбчатый или же на кирпичах.
В первую очередь собирается каркас. Для этого нужно взять прочный брус – желательно сечением от 40×40 мм или больше. В основание укладывается квадрат размером от 120×120 до 140×140 см. Крепить брус между собой можно при помощи гвоздей или шурупов-саморезов. Если выгребная яма большая и находится почти под всей площадью туалета, есть смысл сделать обрешетку – добавить ещё несколько брусьев в середину квадрата.
К основанию крепится вертикальный брус высотой 200 см. В верхней части собирается ещё один квадрат по площади точно совпадающий с основанием – дополнительный пояс жесткости. Уже к нему под углом следует прикрепить основание для будущей крыши – классический треугольник.
Каркас готов. Осталось только обшить его листами из ОСБ плит. Выпилить подходящий по форме и размеру при помощи ножовки или электролобзика не составит труда. Кровля также может быть выполнена из ОСБ плиты, но для гидроизоляции следует защитить его кусками рубероида или шифера. Первый можно наплавить или закрепить мелкими гвоздями, а второй – при помощи шурупов.
Видео
Устройство пудр-клозета
Если вы строите такой дачный туалет своими руками пошагово, инструкция будет достаточно лаконичной. Простота устройства объясняется, в том числе, тем, что для пудр-клозета не требуется сооружения ямы. Для компактных конструкций земляные работы вообще не нужны, а для стационарных может потребоваться углубление в земле, в которое будет помещаться накопительная емкость (ведро или бак). Устройство пудр-клозета сводится к установке под стульчаком емкости для сбора нечистот и снабжении туалета ящиком с засыпкой (торфом, опилками и пр.) и совком. Засыпать отходы следует после каждого посещения уборной.
Дачный пудр-клозет является наиболее простым в монтаже и обслуживании вариантом
Туалет из кирпича своими руками
Чтобы возвести кирпичный санитарный узел, необходимо заложить прочный и надежный ленточный фундамент. Для этого нужно вырыть по периметру ямы траншею глубиной в 30 см и сделать бетонную стяжку. Каркас можно будет монтировать на металлические болты, установленные до полного застывания бетона. Пол кирпичного туалета делаем бетонным, оставляя, при этом, технологические отверстия. Крышу строим, начиная с деревянной обрешетки, на которую стелим слой гидроизоляции и кровельные материалы.

Порядовка даст возможность рассчитать необходимое количество материала, правильно организовать дверной и оконный проемы. Ряды кладем один за другим, по всему периметру будущего туалета. При этом, всегда проверяем кладку строительным уровнем.
Дачный туалет из дерева – чертежи с размерами
Конечно, чаще всего, решив построить уличный туалет своими руками, в качестве основного строительного материала используют древесину. Она дешева, доступна, легка в обработке и дает немалый простор для творчества. Тем более, что вариантов строительства тут много. Давайте изучим наиболее интересные из них, а заодно выделим размеры дачного туалета.
Теремок
Этот туалет для дачи также известен, как избушка. Считается наиболее сложной архитектурной формой, но в то же время одной из самых красивых. Материалов на строительство придется потратить немало – подрезать приходится много.
Но перерасход древесины компенсируется не только внешней красотой, но и тем, что туалет типа «теремок» хорошо сохраняет тепло даже зимой, да и дождь со снегом доставляют меньше хлопот, чем в других постройках подобного типа.
Домик
Ещё одно удачное решение, если вы хотите построить комфортный туалет на дачном участке своими руками. Места он занимает не больше, чем простейший скворечник, но при этом имеет более высокую прочность, да и по уровню комфорта не сравнится с ним.
Скворечник
А вот тем мастерам, которые при строительстве выбирают проекты максимальной простоты, наверняка понравится деревянный скворечник. Возвести его на участке своими руками проще всего. Односкатная крыша и примитивная схема позволяют уменьшить расход строительных материалов. К тому же, крыша дачного туалета дает возможность легко разместить напорный бак – полезная вещь, если вы планируете строить туалет с унитазом.
Но недостатков у конструкции немало. В первую очередь – постройка получается шаткой. К тому же, она легко продувается ветром. Наконец, при обильных осадках влага наверняка просочится внутрь, что также не добавит комфорта.
Шалаш
Желаете красивый деревенский туалет, удобный в эксплуатации и простой в строительстве? Тогда вам подойдет шалаш. Архитектурная форма выглядит просто, благодаря двускатной крыше. Но при этом постройка обладает устойчивостью к осадкам и ветрам. Особый дизайн делает её ещё и прочной. Расход материалов также сравнительно невелик.
Дачный туалет без выгребной ямы своими руками
Наиболее популярным вариантом среди самостоятельного изготовления туалетов для дачи, фото которых представлены выше, является сооружение из бетонных колец.
Первым делом закупаются строительные материалы – 9 колец и 3 люка к ним.
Люк – обязательное условие герметичности конструкции
- Вырываются три ямы в ряд, с диаметром в 2,8 метра и глубиной 3 метра.
- Для первых двух ям необходимо сделать бетонную подушку.
Так выглядит установленное кольцо без бетонной подушки
В каждую из ям при помощи специальной техники устанавливается по три бетонных кольца. Щели между ними заполняют специальной гидрофобной смесью, а оставшуюся полость между землей и кольцом.
Монтаж перфорированных колец
Септик на даче
Сделать септик для дачного туалета не сложно. При этом необязательно покупать готовые системы, поняв технологию, такую установку можно сделать своими руками.
Для того чтобы получить качественно профильтрованные стоки нужно сделать 3 резервуара по любой из указанных выше техник, причем он должны быть такими:
- Первый самый меньший по объему с герметичным дном. В него попадают стоки непосредственно из туалета (дома) – отстаиваются, заполняя 2/3 резервуара, переходят во второй.
- Второй также имеет герметичное дно, в нем работают со стоками анаэробные бактерии. Перелив происходит, когда заполнится приблизительно половина.
- Третий резервуар имеет фильтрующее дно – часть очищенных жидких стоков уходит в почву, часть на фильтрационное поле.
- Поле фильтрации устроено также, как и фильтрующее дно ямы, только площадь его приблизительно 25-30 м².
Такая система актуальна, если на даче бываете регулярно. Для небольшого количества стоков ее обустраивать нет смысла.
Стандартная схема септика
Как выбрать местоположение конструкции с выгребной ямой
Люди, которые решили заняться созданием выгребной ямы, должны заранее определиться с местом ее расположения.
До подвала
На территории каждого участка есть подвал, который используется для хранения законсервированных продуктов. Некоторые люди думают, что можно устанавливать клозеты неподалеку от таких погребов, однако делать этого не стоит. Если расположить его слишком близко, неприятный запах может проникать внутрь подвала. Поэтому специалисты советуют устанавливать конструкцию на расстоянии 12-15 метров от погреба.
До бани
У некоторых людей на территории дачного участка установлена сауна, баня или душ. Поскольку от некоторых клозетов может исходить неприятный запах, размещать их необходимо подальше. Расстояние между баней и туалетом должно быть около восьми метров. Однако специалисты советуют размещать конструкции подальше, чтобы неприятные запахи точно не проникали внутрь бани и не портили банные процедуры.
До ближайшего водоема
Иногда неподалеку от дачи располагается водоем. В этом случае необходимо заранее разобраться с оптимальным расстоянием дачного клозета до водного объекта. Не рекомендуется устанавливать его слишком близко, чтобы отходы не попадали в воду. Необходимо устанавливать конструкцию на расстоянии 15-20 метров.

От забора
Практически на каждом участке устанавливается специальный деревянный или металлический забор, который ограждает территорию от соседних дач. Поэтому нужно определить оптимальное расстояние между оградительным забором и туалетом. Конструкции должны находиться на расстоянии полтора метра друг от друга.
От деревьев
Люди, которые устанавливают туалетные конструкции в садовом участке, должны определить расстояние до ближайших деревьев. Между высокими деревьями и клозетом делается расстояние не меньше четырех метров. На таком расстоянии корневая система деревца не проникнет в выгребную яму. Если на территории нет деревьев, но есть пышные кустарники, конструкцию удаляют от них на 1-2 метра.
Выбирая во дворе подходящее место для уличного туалета, необходимо учитывать розу ветров. Направление ветра во многом зависит от количества растительности и построек на территории. При выборе места надо думать не только о себе, но и о соседях. Поэтому для установки клозета выбирается безветренный участок, чтобы неприятный запах не проникал на соседний двор.
Чертежи туалетной кабинки
Туалетная кабинка может иметь и другую конструкцию, но принцип постройки у всех идентичен. Вот несколько примеров.
Рис.40.
Рис.41.
Рис.42.
Рис.43.
Рис.44. Туалет изготовлен на основе деревянного каркаса и обшит вагонкой.
Рис.45. Самый простой — это деревянный уличный туалет.
Рис.46. Оригинальные туалеты для дачи фото.
Рис.47. Красивый туалет на даче фото. Туалет в форме бочки – очень оригинальная идея.
Рис.48. Как построить интересный туалет на даче? Сделать его необычной формы.
Рис.49. Как замаскировать туалет на даче фото. Обшить его блок хаусом и покрасить его в цвет коры дерева.
Рис.50. Туалет на даче из бревна.
Рис.51. Как покрасить туалет на даче. Оригинальная идея.
Рис.52. Туалет на даче из сайдинга.




































