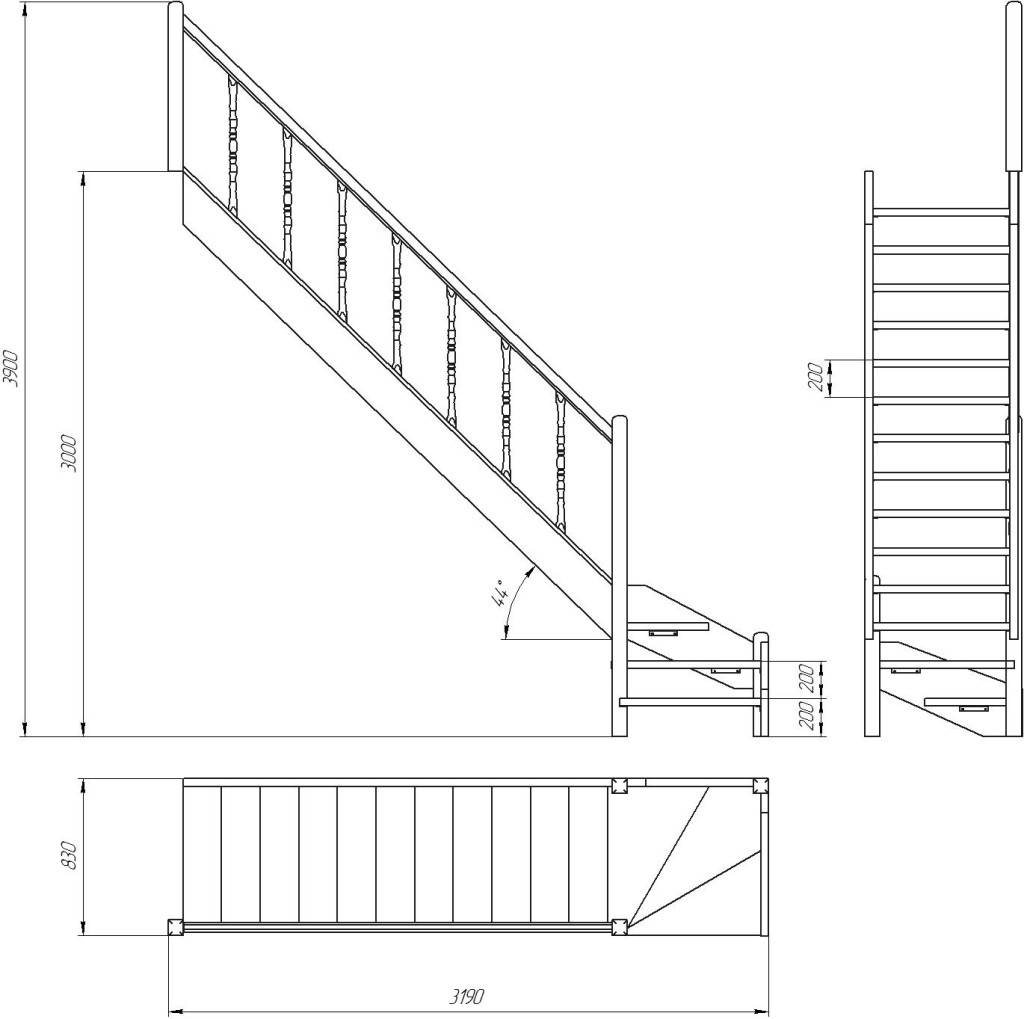
Расчеты размеров лестничной конструкции
Перед тем как приступить к проектированию, нужно сделать точные расчеты, начертить схему и нанести на нее все данные. Если нет уверенности в правильности расчетов, то лучше доверить работу профессионалам, которые сделают грамотный чертеж, что позволит поэтапно выполнить монтаж без ошибок.
Общая высота лестницы
Определить высоту можно, измеряя расстояние от пола первого до второго этажа с учетом толщины потолка.
Например, если на 1-м этаже потолочная высота равна 2700 мм, а толщина межэтажных перекрытий – 300 мм. В результате суммарная высота будет равна 3000 мм.

Если чистового пола нет, то его размеры нужно заложить примерно.
Количество ступеней
Если известна высота лестницы и подступенка, можно определить число ступенек конструкции. Для этого нужно разделить один показатель на второй. Например, при общей высоте лестницы 3000 мм, а высоте подступенка – 175 мм расчет будет таким: 3000: 175=171 мм.
После этого нужно округлить значение, в результате получится 170 мм. В таблице указан пример расчета:

Высота подступенка
По рекомендации специалистов оптимальная высота подступенка должна составлять 150–180 мм, фактически это размер человеческого шага. Данная высота может составлять 150–200 мм. Обычно средняя величина по нормативу равна 160-170 мм.
зеленым цветом
Ширина ступени
Чтобы не возникло травм в результате неверно подобранной ширины ступеней, нужно правильно ее рассчитать. Исходя из многолетней практики, ширина детали должна быть в пределах 220 – 400 мм.

Для определения более точного значения можно воспользоваться определенной формулой. Нужно взять среднюю ширину человеческого шага (600 – 640 мм) и вычесть из нее высоту подступенка, умноженную на 2, т.е. 640 – 2х175 = 290 мм. Этот показатель будет оптимальным для перемещения.
Ширина марша
По правилам безопасности для удобного передвижения людей пролет должен быть шириной не меньше 80 см, но лучше принять не менее 90 см. Для удобной переноски мебели этот показатель для частного жилого дома должен быть 100 – 120 см.
Длина лестницы в плане
Для расчета этого параметра нужно умножить количество ступеней и ширину проступи. В нашем примере получится 29х17= 493 см. То есть лестница выходит довольно длинной и при устройстве одного марша потребуется помещение не менее 6 метров. В небольшом срубе или деревенском доме нужно будет делать 2 марша с 90 или 180 градусным поворотом.
Между маршами монтируется площадка или ставятся поворотные ступеньки. Если не получается выполнить расчет самостоятельно, можно воспользоваться специальной программой, представленной чуть ниже, где наглядно будет отражаться локализация лестничных деталей.
Размер потолочного проема
При строительстве лестницы из деревянного массива нужно помнить о расчете проема потолка, чтобы при поднятии наверх не пришлось нагибаться. Такой показатель будет зависеть от уклона, который влияет на удобство при перемещении и подбирается индивидуально.
От угла лестничного марша будет зависеть величина проема в области потолка. Так, для складной конструкции потребуется небольшой проем, а для большего уклона потребуется более значительный (до 2 м).

Длина косоура
Для определения длины косоура применяется формула Пифагора: (длина лестницы в плане)²+ (высота лестницы)²= (длина косоура)².

То есть при длине 493 см и высоте 300 см получим следующее: L=√(4932 + 3002) = 577 см (показатель берется с запасом – 580 см).
Отделочные работы
Работа будет производиться с помощью следующих инструментов :
- шуроповёрта и саморезов;
- молотка с резиновой головкой, предназначенного для возможной фиксации;
- инструментов для резьбы по дереву;
- тесанка;
- строительного уровня;
- линейки и карандаша по дереву;
Подготовка деталей
- Первый этап — замер всех элементов лестничной конструкции, которые планируется обшивать. Делать это нужно внимательно, исключая возможность образования щелей или слишком плотного крепления. Это может привести к деформациям и трещинам.
- После этого проведённые замеры переносят на древесину.
- По выполненной разметке производят нарезку деталей.
- Если ступени имеют разную форму, то стоит произвести на них нумерацию, чтобы не перепутать в процессе сборки.
- При обработке деталей стоит немного скруглить углы, расположенные на лицевой стороне. Это обеспечит более комфортную эксплуатацию, снизив риск возможной порчи дерева и повысив безопасность.
- После подготовки ступеней переходят к обработке перил и балясин, если конструкция предполагает их обшивку. При выпиливании перил сначала определяются с длиной, после этого корректируют ширину и форму.
Профессионалы рекомендуют замерять каждую ступень для обшивки. Даже если они кажутся одинаковыми. Это позволит исключить ошибки и последующую неправильную установку.
Этапы работ
Крепление ступеней
Для начала необходимо определиться с дизайном лестницы и вариантом, которым будет производиться обшивка каркаса. В соответствии с требованиями, необходимо выбрать тип древесины для обшивки. После производят подготовку деталей обшивки. Массив дерева подгоняют под размер каркаса. Если работы простые, не имеющие особых декоративных изысков, то можно обойтись ручной пилой по дереву и крупным напильником. Проступи следует крепить таким образом, чтобы они имели небольшой выступ впереди до одного сантиметра. Это не только придаст симпатичный вид, но и позволит сделать максимально безопасное крепление. Закрепляют их сверху вниз
После установки необходимо проверить каждую на прочность, а также насколько ровно они закреплены строительным уровнем
При установке подступенков важно соблюдать следующее требование: они должны максимально плотно упираться в металлический каркас. Закрепляют их так же, начиная сверху, и после крепления проверяют на прочность и ровность. При условии, что проводится полная обшивка каркаса, следующим этапом будет выбор балюстрады
При условии, что проводится полная обшивка каркаса, следующим этапом будет выбор балюстрады
Они не только выполняют защитную и опорную функцию, но и являются важным декоративным элементом лестничной конструкции. Баллюстрады устанавливаются с шагом в 15-20 сантиметров. При наличии в доме детей этот шаг стоит сократить до 9-10 сантиметров. Далее производим крепление подготовленных деталей из древесины. Делают это при помощи саморезов. Необходимо просверлить отверстия в каркасе в тех местах, где будет производиться крепление обшивки. Используя саморезы, облицовку из древесины прикрепляют к металлическому каркасу. Вкручивать саморез в древесину необходимо с углублением шляпки на 5 мм. Крепление балясин осуществляют к проступям с помощью саморезов. Далее на них укладывают перила.
Обшивка металлической лестницы
Можно также обшить металлический каркас. Это делают при помощи гипсокартона, шурупов и деревянных панелей. Начинают работу с обшивки боковой поверхности деревянными панелями. Их размеры подбираются заранее. Крепление производят шуроповертом на саморезы к балясинам. Нижнюю маршевую часть лестницы обшивают гипсокартоном. Закрепляют его на боковых и нижних частях ступеней.
Отделывать металлический каркас совсем не обязательно, если он имеет внешне привлекательный вид. Но такой вариант отделки сможет скрыть имеющиеся недостатки.
Покрытие деревянных элементов отделки лаком или краской — завершающий этап. Можно также прокрасить металлические части, оставшиеся на виду.
Как сделать и установить тетиву для лестницы своими руками
Сложность самостоятельного изготовления и монтажа тетивы зависит от типа лестничной конструкции, которую предполагается сооружать, а также столярных навыков мастера. Самой простой является прямая, одномаршевая лестница. С ее изготовлением и монтажом может справиться даже новичок.
Вся работа по изготовлению и сборке конструкции включает в себя несколько этапов:
- Подготовка необходимого столярного инструмента и расходных материалов;
- Подбор основного материала, из которого будет изготавливаться обрамление ступеней;
- Проведение расчетов геометрии изделия и линий, подлежащих срезу под пазы;
- Изготовление тетивы;
- Установка опорного элемента.
Для получения качественного итога работ, необходимо точно следовать рекомендациям и произвести точные расчеты.
Какие инструменты понадобятся
Для работ по изготовлению и монтажу тетивы потребуются такие инструменты и материалы:
- Цельная древесина;
- Дрель;
- Металлические тяжи с гайками;
- Карандаш;
- Линейка-угольник;
- Лист фанеры;
- Резиновая киянка;
- Фрезеровочная машина.
Для монтажа тетивы понадобится резиновая киянка
Для закручивания гаек потребуется ключ соответствующего размера.
Выбор материала
Для изготовления тетивы для лестницы чаще всего используется древесина. Основными видами деревьев, обладающими подходящей прочностью, являются:
- Сосна;
- Кедр;
- Пихта;
- Ольха;
- Бук;
- Дуб;
- Ясень;
- Лиственница;
- Осина.
При выборе пиломатериала следует учитывать вид древесины, из которого будут изготавливаться ступени и перила. Если проступи и опорные элементы лестницы вырезаются из дорогих сортов деревьев, для создания тетивы необходимо использовать только тот же материал.
Древесину для изготовления тетивы необходимо подбирать так, чтобы материал был цельным и не нуждался в наращивании.
Расчеты
Конечно же чертеж будущей конструкции можно изготовить самостоятельно и вручную просчитывать все размеры деталей. Однако более надежно проводить расчеты габаритов деревянной лестницы, используя специальный калькулятор. Согласно выбранному типу лестничной конструкции, программа вычислит оптимальные размеры тетивы.
При самостоятельных просчетах следует учитывать, что оптимальная ширина тетивы составляет 4-6 см. Длина изделия зависит от высоты помещения и угла подъема лестничной постройки. Оптимальный размер высоты обрамления составляет 30 см. Расстояние между тетивами зависит от размеров ступеней. А вот пазы под них должны иметь глубину в 1,5-2 см.
Изготовление
В том случае, когда шаблоны готовы, изготовление для лестницы тетивы занимает немного времени. Из приготовленной древесины вырезается две заготовки подходящего размера. На древесину накладывается шаблон, который необходимо выровнять по нижнему краю тетивы. После этого, через отверстие в шаблоне на основной рабочий материал переносится разметка пазов.
Стоит учитывать, что все монтажные отверстия в тетивах должны быть симметричны и зеркальны. Потому при работе со второй тетивой может использоваться тот же шаблон, однако в зеркальном виде.
Работа с тетивой для лестницы
Пазы прорезаются в древесине с помощью ручного фрезеровочного станка. Для создания ровных пазов одинаковой глубины, прорезать монтажные отверстия рекомендуется в 2-3 подхода.
Отверстия для установки тяжей также изготавливаются до начала сборки конструкции. Для их изготовления используется дрель со сверлом по дереву, диаметр которого соответствует сечению тяжей.
Монтаж
При монтаже лестницы у стены, в первую очередь к ней прикручивается одна тетива. После этого в ее пазы вставляются ступени. С обратной стороны ступени входят в пазы второго обрамления.
Если лестница не будет касаться стен, перед установкой лестницы в отведенное для нее место, выполняется сборка тетивы и ступеней. Для удобства монтажа один из элементов укладывается на пол, пазами вверх. В отверстия для фиксаторов сразу вводятся тяжи и слегка прикручиваются с края гайками.
В каждый из пазов вставляется проступь, а при использовании подступенников, и эта деталь конструкции. Для полного вхождения торца ступеней в монтажные отверстия, проступи слегка простукиваются киянкой. После этого на ступени и тяжи насаживается вторая тетива. Все ступени аккуратно вводятся в соответствующие пазы и аккуратно простукиваются киянкой. Когда все ступени будут зафиксированы, на тяжах затягиваются гайки. После этого готовая конструкция поднимается с пола и устанавливается в необходимом месте.
https://youtube.com/watch?v=3aHFS4FdcHg
Что такое тетива и ее назначение
Лестничный косоур и тетива являются несущими элементами лестничного марша. Отличить один метод крепления ступеней от другого очень просто. Достаточно посмотреть на конструкцию сбоку. Если видно торцы ступеней – это косоур. Если ступени закрыты планкой – тетива лестницы.
Основная функция данного способа постройки – опорная. На нее крепят проступи и подступени. От качества расчёта ее параметров зависит функциональность и прочность всей конструкции.
Тетива является основой
Тип лестничной тетивы подбирается в зависимости от потенциальной нагрузки, частоты использования и дизайна помещения.
Как своими руками сделать лестницу из металла с двумя косоурами?
Работу нужно осуществлять в такой последовательности:
- порезка заготовки;
- изготовление узлов для крепления ступеней (кобылки);
- сварка опорных углов;
- установка косоуров;
- приварка ступени и ограды;
- зачистка поверхности;
- грунтовка и окрашивание.
Возьмите уголки и сделайте из них кобылки
Очень важно не допустить ошибок. иначе малейшие перекосы или неточности могут негативно повлиять на целостность всей конструкции. Кобылки должны иметь одинаковый размер и быть зеркальными в отношении друг друга
Кобылки делают из стального уголка
Кобылки должны иметь одинаковый размер и быть зеркальными в отношении друг друга. Кобылки делают из стального уголка.
Вырежьте выборки и состыкуйте углы друг с другом, чтобы получился Г-образный сварной угол. Для лестницы понадобиться всего 14 пар подобных узлов, где одна часть будет выступать, соответственно, правой опорой, а вторая – левой. Теперь приварите кронштейны для крепежа ступеней и поперечные перекладины между каждой парой, перекладины тоже нужно делать из уголков. Чтобы усилить прочность конструкции, возьмите небольшие косынки и установите их внизу ступени в направлении косоуров.
Сделайте разметку по ребру профильной трубы квадратной формы и приварите кобылки по ребру косоура. К первому косоуру приставьте второй вместе с приваренными кобылками и точно перенесите разметку.
Для конструкции шириной 900 мм двух косоуров будет достаточно. Теперь приварите кобылки и ко второму косоуру и проверьте все уровнем. Далее нужно приварить косоуры нижней частью к опоре. Если в вашем доме бетонное основание, то опорная часть может быть установлена прямо в бетоне. а верхнюю часть косоура прикрепляем к опорной стойке, которая крепится к перекрытию между этажами при помощи стальных анкеров. После этого все проверьте уровнем.
Если вы выбрали пристенной вариант лестницы, то для того, чтобы она была жестче, один из косоуров приварите к кронштейнам на стене.
Осталось приварить к кобылкам ступени или же закрепить их при помощи болтов, но тогда потребуется деревянная обшивка. Также можно на кобылки поставить деревянные ступени посредством винтового соединения.
Верхнюю ступень следует устанавливать на минимальном расстоянии от стены, чтобы между ступенью и стеной проходил обойный лист. Ограждение сбоку лестницы нужно приварить так, чтобы это не сокращало ее ширину.
Затем нужно зачистить места сварки, чтобы не были видны заусенцы, швы и зазубрины. Сметите специальной щеткой остатки металла, покройте поверхность грунтовкой и покрасьте в желаемый цвет. Деревянные ступени нужно устанавливать только после высыхания краски.
Весь процесс декора, включая процесс обшивки, уместно осуществлять на этапе чистовой отделки.
Если вы сделали каркас лестницы надежным и прочным, его можно впоследствии дополнительно декорировать с помощью таких материалов как:
- дерево;
- керамика;
- оградные детали из нержавеющей стали;
- прочие материалы.
Таким образом вы придадите изюминку даже самой невзрачной лестнице.
Помимо лестницы данного типа можно своими руками сделать консольные лестницы без наклонных опор. где некоторые ступени прикрепляются к стене одним торцом с помощью болтов или путем опоры на специальные штыри. Однако, сделать консольную конструкцию, как и винтовую, без специальной подготовки будет крайне трудно.
Если вы не хотите нагромождать помещение металлом, то выберите лестницу из стекла, дизайн которой всегда беспроигрышен и вписывается в любой тип интерьера.
Со стороны может показаться, что строительство металлической лестницы – простая работа. Отчасти это так, но нужно быть предельно внимательным и аккуратным, качественно выполнять сварочные работы и не торопиться при монтаже конструкции. Выбирая вариант строительства металлической лестницы своими руками, вы также сэкономите значительные средства, которые можно потратить на другие ремонтные работы и на оформление интерьера.
Сергеев Андрей Николаевич
Что такое тетива и ее назначение
Лестничный косоур и тетива являются несущими элементами лестничного марша. Отличить один метод крепления ступеней от другого очень просто. Достаточно посмотреть на конструкцию сбоку. Если видно торцы ступеней – это косоур. Если ступени закрыты планкой – тетива лестницы.
Основная функция данного способа постройки – опорная. На нее крепят проступи и подступени. От качества расчёта ее параметров зависит функциональность и прочность всей конструкции.

Тетива является основой
Тип лестничной тетивы подбирается в зависимости от потенциальной нагрузки, частоты использования и дизайна помещения.
Необходимые для работы материалы, инструменты
Для сооружения межэтажной металлической лестницы нам чтобы возвести межэтажную металлическую лестницу понадобятся следующие инструменты и материалы.
Инструменты:
Материалы:
Проведение работ
Этапы работ:
Первым делом из уголков изготавливают углы для крепления ступеней, то есть кобылки.

Так же кобылки должны быть одинаковыми и должны находиться точно друг напротив друга. Кобылки изготавливают из уголка, путём вырезания выборки и состыковки уголков между собой.
В итоге получаются Г- образные узлы полками вниз и внутрь. Для нашей конструкции необходимо четырнадцать пар этих узлов и в каждой из пар одна опора будет левой, а вторая правой. Затем кронштейны привариваем чтобы соединить ступени и горизонтальную перекладину между каждой из пар уголков.

Горизонтальную перекладину изготавливаем тоже из уголка. Усиливают конструкцию при помощи косынок, их привариваем снизу ступени по направлению к каждому из косоуров.
По ребру квадратной трубы из профиля производим разметку и по разметке привариваем кобылки к ребру косоура, второй косоур приставляют к первому косоуру с кобылками и переносим разметку.

Делаем проверку по уровню и затем привариваем косоуры нижним концом к платформе опоры. Если в домах бетонный фундамент, то опорная платформа устанавливается в бетоне. К опорной стойке крепим верхний конец, опорная стойка закреплена к перекрытию между этажами анкерами из стали. Затем ещё раз кобылки необходимо проверить по уровню.
В том случае, если лестница сделана возле стены, то для придания конструкции, жесткости один косоур приваривают к кронштейнам, которые закреплены на стене.
Финишные работы заключаются в приваривании ступеней к кобылкам, так же можно закрепить их болтами, но в этом случае необходимо ступени обшить деревом. Так же ступени можно установить деревянные, на кобылки при помощи винтовых соединений.
Советы по монтажу

В статье мы рассказали, как сделать металлическую лестницу на второй этаж.
Конечно, из какого материала делать лестницу решать только вам и никому больше, но лестница из металла получается визуально лёгкой, поэтому мы рекомендуем именно эту конструкцию.
Надеемся, что данная информация была вам полезной. Желаем вам удачи, терпения и вдохновения!
Инструкция по созданию
Несмотря на простоту конструкции, при изготовлении лестниц на тетиве следует придерживаться определённых правил. Иначе из-за плохой устойчивости или недостатка прочности, лестничный пролёт может сломаться. Поэтому во избежание дополнительных расходов и травм, необходимо работать строго по инструкции.
Проектирование
Основная сложность в создании лестничного пролёта на тетивах – это проектирование. В первую очередь следует рассчитать длину и высоту конструкции, учитывая следующие моменты:
- высота ступени должна быть от 15 до 20 см;
- оптимальная ширина проступи – 30 см;
- комфортная ширина пролёта – от 90 до 110 см;
- чтобы во время спуска или подъёма не пришлось нагибаться, высоту просвета следует делать не менее 200 см;
- наклон лестничного марша должен быть от 30до 40°;
- наилучшая высота ограждения – 90 см;
- минимальная высота тетивы – 30 см, толщина – 4 см.
Ваш чертеж должен отображать будущую лестницу в 3 проекциях
Помимо общих моментов, большое значение имеет вид ступени, а также тип стыковки с тетивой.
“Шпаргалка” для проектировния лестницы
Изготовление
Для создания лестничного пролёта на тетивах не требуется определённых навыков. Главное в – аккуратность и точные расчёты. Однако в этом деле не обойтись без специальных инструментов:
- линейка (лучше металлическая или инженерная);
- уровень;
- электролобзик;
- ручной фрезерный станок или стамеска с молотком;
- дрель или шуруповёрт;
- несколько металлических уголков
Сам процесс заключается в следующем:
- на двух тетивах сделать разметку под ступени;
- фрезерным станком или стамеской сделать углубления под ступеньки;
- установить несущие балки и закрепить их к полу с помощью металлических уголков;
- вырезать и отшлифовать ступени;
- смазать пазы столярным клеем и установить в них ступеньки;
- сделать в тетивах несколько сквозных отверстий;
- вставить в отверстия стальные или деревянные тяжи и закрепить их гайками с широкими прокладками;
- в начале и конце пролёта установить вертикальную балку, на которую будут крепиться перила;
- обработать лестничный марш грунтовкой от гниения или возгорания.
Процесс изготовления поворотной лестницы на тетиве
На первый взгляд, создать лестницу на тетивах – задача не из лёгких. Тем не менее, это одна из наиболее простых и незамысловатых конструкций, не требующих а запредельного мастерства.
Нормы для проектирования
Разрабатывая проект лестницы, важно сделать так, чтобы она была удобной и безопасной. Есть вполне конкретные цифры и рекомендации, которые касаются параметров ступеней и общего угла подъема:
- Угол наклона должен находиться в пределах 30-50°. Оптимальный наклон — 45°, при меньшем угле ходить удобно, но требуется много места, при большем слишком крутой подъем вызывает затруднения. Желательно чтобы угол наклона лестницы вписывался в данный сектор.В таблице приведены стандартные размеры проступи и подступенка для каждого угла наклона
- Количество ступеней нечетное.
- Ширина ступени (проступи) находится в пределах 22-30 см. Самые удобные ступеньки имеют ширину порядка 25 см — на них становишься всей ступней. При более узких пятка висит, и основная нагрузка приходится на носок.
- Высота подступенка (расстояние от одной ступени до другой) 15-20 см. При слишком маленькой высоте приходится часто переставлять ноги, что некомфортно, при большой сложно задирать ноги (особенно пожилым людям).
- Высота перил 90-120 см.
- Минимальная ширина лестницы — 80 см.
Количество ступеней определяется путем элементарного деления высоты планируемой лестницы на выбранную высоту подступенка. Например, высота помещения 285 см. Решено сделать угол подъема в 40°. По таблице видим, что высота подступенка 19 см. Делим 285 см / 19 см = 15 ступеней. Если количество получается четным, соответственно чуть корректируем размер, чтобы получить нечетное число.
Если одна из ступеней получается меньше на несколько сантиметров, эту высоту «отбирают» у первой ступеньки. Все остальные, включая последнюю, должны быть одинаковыми.
При выборе размеров ступеней комфортность можно проверить. Если удвоенную высоту подступенка сложить с выбранной шириной ступени, результат должен быть от 60 мс до 64 см. Второй вариант проверки — сумма длин проступи и подступенка оптимально равна 45 см, но допустимы отклонения на 2 см в обе стороны.
Как проверить комфортность и безопасность лестницы
Все эти параметры должны закладываться при проектировании дома. Если же дом уже построен, приходится исходить из того, что есть и подгонять размеры к существующим габаритам.





































