Габариты и материалы для ее постройки
- Если терраса будет простроена как площадка, заменяющая крыльцо, то ее размеры должны давать возможность разминуться 2 людям, она должна быть не уже 1.2 метра
- Для зоны, где можно установить стол на 6 человек, необходимо отвести не меньше 4 м2, кроме стола необходимо место для установки стульев и другой мебели
- Если есть желание оставить место для свободного перемещения возле стола и установить диван, то необходимо делать террасу площадью не менее 7м2
Важно правильно подсчитать, какая потребуется площадь для различных проектов. Если площадь около 15-20 м2, то этого места хватит для удобного отдыха компании из 6 человек. Здесь можно будет поместить простую мебель
На стенах хорошо смотрятся фотографии животных и красивых растений
Здесь можно будет поместить простую мебель. На стенах хорошо смотрятся фотографии животных и красивых растений.
Форма террасы возле дома, от крыши, а она в большинстве проектов имеют прямые линии. По этой причине пол будет прямоугольным или квадратным. Но если пристройка не будет полностью укрыта сверху, то можно использовать любые произвольной формы.
Встречаются конструкции округлой или ломаной формы, они меняются с учетом ландшафта приусадебного участка и архитектуры дома
Стиль здания диктует материалы, используемые при строительстве их нужно обязательно использовать в оформлении пристройки. К примеру, возле здания из кирпича, будет гармонично выглядеть деревянная терраса, у которой кровля опирается на каменные или кирпичные колонны. Возле деревянного дома нужно строить только вариант из древесины.
Двухуровневая зона отдыха
А пристройка закрытая стеклом является универсальной, она впишется как в дизайн домов из камня, кирпича так и домов из древесины. Для каменных построек хорошо подходит дизайн с коваными деталями.
Веранда пристроенная к дому — расширяем жизненное пространство: проекты, советы как создать своими руками (200 оригинальных фото идей)
Материалы для строительства
Выбираются исходя из того, будет терраса открытой или закрытой, потребуется ли установка окон, дверей, теплой кровли.
Имеют различную основу, а потому и отличия в технических характеристиках. Разберем подходящие типы детальнее.
Пенобетон
Относится к современным строительным материалам. Недорогой, легкий, удобен в транспортировке и прост в монтаже.
Важное преимущество пеноблока – не впитывает влагу. Его используют для кладки наружных стен, цоколя, крыльца
Имеет высокие показатели тепло- и звукоизоляции, легко режется на части.
При покупке смотрите на плотность пенобетона: чем плотнее он будет, тем прочнее. Для обустройства террасы снаружи лучше брать материал плотный, для внутренней отделки стен подойдет любой.
Керамзитобетон
В составе блоков много цемента, за счет чего сырье получается прочным и плотным. Керамзитобетон теплоемкий, блоки легкие. Благодаря большим размерам – 390*190*188 мм – укладка материала выполняется быстро.
Соединять блоки нужно керамзитобетонным клеем. Элементы смазываются и укладываются друг на друга. При необходимости разрезать на части можно болгаркой.
Из керамзитобетона удобно построить каркасную конструкцию, а отделку выполнить другим интересным материалом.
Стоит он недорого, поэтому из него можно быстро сделать бюджетную террасу.
Металл
Используется при возведении каркаса, в качестве столбов, оконных проемов.
Как выбрать подходящее средство, вы узнаете из этой статьи: «Выбор краски для металлического забора».
Разберем подробнее варианты металла, применяемого при строительстве веранды.
Алюминиевый профиль
Алюминий получил популярность при строительстве веранд, беседок в деревне, на даче. Он легкий, недорогой, удобен в монтаже.
Применяется только для летних построек. Это основа холодного остекления конструкции.
Ковка
Мастера научились ковать:
- перила;
- решетки;
- перегородки;
- козырьки на крыльцо;
- другие элементы.
При желании владелец частной усадьбы может заказать детали готовыми или нарисовать образец, в соответствии с которым кузнец сформирует изделие.
Монтаж элементов проводится с помощью сварочного аппарата.
Красивый вариант открытой террасы с деревянным полом, огражденной по периметру коваными решетками, а вход в дом дополнен лестницей с коваными перилами.
Металлический профиль
Универсальное сырье для каркаса террасы. Представляет собой трубу из низколегированной стали толщиной 1‒22 мм, сечением 10‒500 мм.
Бывает цельной или сварной.
Стоит отметить, что:
- труба легко режется на части болгаркой, ножницами по металлу;
- весит немного;
- гибкая;
- не требует дальнейшей обработки.
Дерево
Натуральное сырье используется как основа веранды и в качестве отделки.
Любые детали из древесины обрабатываются защитными средствами от влаги.
Доска
Террасная доска используется для настила пола на террасе. Стандартная обрезная служит сырьем для обшивки каркаса конструкции.
Украсить готовую веранду можно резными деталями, которые покупаются отдельно.
Доски красят, лакируют. В отдельных случаях применяют технику браширования – для имитации старины.
Брус
Производится из цельного дерева или склеиванием между собой нескольких досок.
Форма – квадратная, прямоугольная.
По количеству обработанных сторон бывает двух-, трех- или четырехкантовый.
Отдельно можно выделить оцилиндрованный брус – размеры боков строго соответствуют расположению и параметрам центра. За счет этого при высыхании материал сохраняет форму, остается таким же прочным и не деформируется.
Пиломатериал отличается упругостью, надежностью.
Стоимость зависит от используемой породы дерева. Самым дешевым будет брус из сосны, ели. Дороже стоят лиственница, дуб, ясень, но по сроку службы они в разы превосходят хвойные породы.
Бревно
Ствол дерева круглого сечения. Несмотря на большой вес, отличается высокой прочностью и долговечностью.
Веранда из сруба будет уместна в случае, если дом выложен из бревен.
Под конструкцию придется заливать надежный фундамент.
Пользователи часто ищут:
- Виды беседок из дерева
- Дачный вариант летней кухни
Кирпич
Если по плану нужно пристроить кирпичную веранду, то стоит заранее продумать наличие капитального фундамента.
Можно выложить только опоры, а перегородки обшить пластиком или деревом.
Фасад из красного, облицовочного кирпича не нуждается в дальнейшей отделке. А вот стены из силикатного (белого) рекомендуется штукатурить или выкладывать декоративной плиткой, поскольку этому типу свойственно разрушаться под действием влаги.
Терраса выйдет долговечной и прочной. Но на ее создание уйдет много времени, сил и денег.
Особенности террасы и ее отличие от других малых архитектурных форм

Под террасой понимается конструкция открытого или полуоткрытого типа, представляющая благоустроенную площадку, предназначенную для отдыха.

При внешнем сходстве с конструкцией веранды, назначение этой постройки состоит в другом. Веранда является частью дома, имеющей закрытые стены, часть из которых выполнена из стекла полностью или частично. Она находится под одной крышей с домом и помогает укрыться в непогоду.

Терраса же, является постройкой, предназначенной для обеспечения комфортного нахождения на солнце. В отличие от веранды ее могут:
- пристраивать снаружи по периметру одной или нескольких внешних стен дома;
- возводить вблизи от дома, например, с использованием площадки и крыльца перед входом в дом;
- устанавливать в виде отдельной постройки, расположенной в солнечном полуоткрытом месте с обустройством лестницы или дорожки для быстрого попадания в дом.

Крыша террасы возводится в виде отдельной конструкции, независимой от кровли основного дома. Может использоваться планировка, привязанная к потолочному перекрытию дачного строения.
Пошаговая инструкция возведения террасы является важной при самостоятельном строительстве этого объекта
Выбираем прототип
В качестве прототипа возвышенной террасы лучше всего брать конструкции веранд для каркасных домов. Их эксплуатационный запас прочности в принципе не может быть большим, и веранды для каркасников проектируются, так сказать, механически самодостаточными: они способны стоять сами отдельно от дома и в то же время не создают чрезмерных нагрузок на основное строение.
Удачный пример такого рода – прилегающая крытая терраса для каркасных домов «Истра», чертежи которой в оригинальном размере даны на рис. Размеры ее секций могут меняться сообразно другому основному строению и наличной земельной площади. Корректировка размеров производится изменением длины опорных элементов и количества лаг; шаг установки лаг остается неизменным.
Чертежи террасы для каркасного дома
Крыши
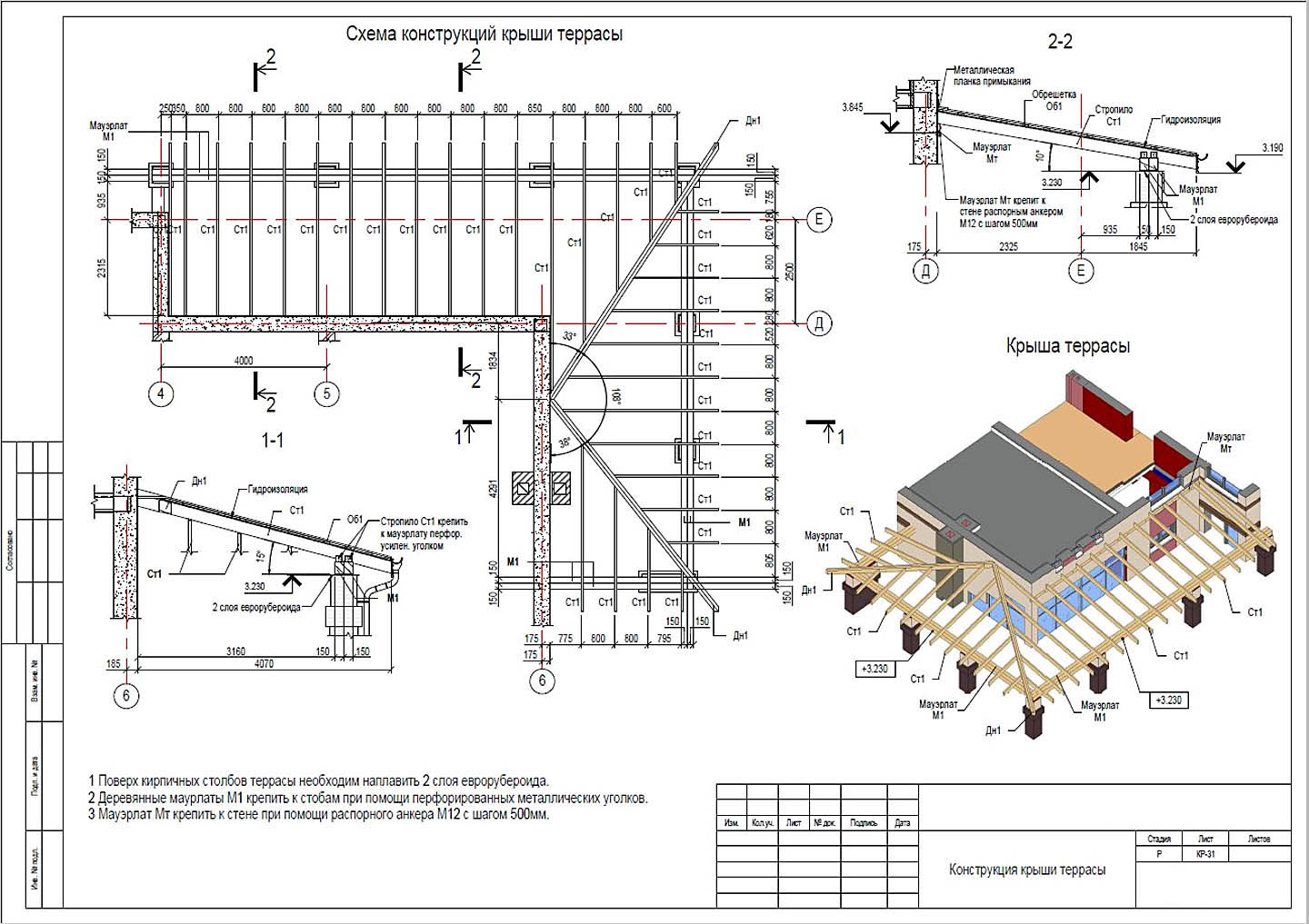
Для крытых грунтовых и грунтоприлежащих террас самой сложной частью конструкции является верхнее строение: кровля на опорах, механически не связанных с настилом. Ее конструкция с односкатной кровлей одинакова для прилегающих и отдельных террас, но во втором случае оба мауэрлата опираются на столбы, а в первом один мауэрлат крепится к стене дома и является опорной балкой. В таком исполнении ширина кровли должна быть не менее 2 м, чтобы сезонные подвижки ее дальнего края за счет упругости дерева не перегружали стену основного строения. Собственно терраса остается механически не связанной с домом.

Чертеж навеса для террасы с крышей-жалюзи
В средних широтах настил крыши желательно делать в виде жалюзи (см. рис. справа). Зимой на крыше-жалюзи снегу много не накапливается и дополнительная снеговая нагрузка на дом почти не передается. Весной снег стаивает не залеживаясь – чистить крышу не нужно. Летом в ясную погоду крыша-жалюзи дает ажурную тень и не создает значительной дождевой нагрузки – дождь тут же стекает. Ветер также не нагружает такую крышу: его поток разбивается о створки жалюзи на мелкие вихри, слабо действующие на кровлю.
В южных широтах актуальной становится борьба с приземным парниковым эффектом: солнечное ультрафиолетовое (УФ) излучение сильно поглощается грунтом, настилом террасы и основным строением и переизлучается в греющей инфракрасной (ИК) области спектра – под кровлей становится парко почти как на чердаке. В этих краях настил кровли террасы лучше делать из сотового поликарбоната, не пропускающего УФ и смягчающего жесткий на юге видимый солнечный свет. Конструкция навеса крытой террасы под покрытие поликарбонатом существенно не меняется (см. рис.), т.к. жесткость сотового поликарбоната почти такая же, как деревянных жалюзи.

Чертеж навеса для террасы под покрытие поликарбонатом

Чертежи скатной крыши для прилегающей к дому террасы
Универсальной под любые климатические условия и материал настила крыши будет двускатная кровля. Для крыши отдельной террасы за основу можно взять испанскую разработку, см. рис. справа. Размеры сечений ее деталей без труда подгоняются под отечественные стандарты: вместо бруса 160х160 берем 150х150; вместо 160х90 – 150х100. Однако сие сооружение создает впечатление, что Испания страшно разбогатела строевым лесом: при такой конструкции ригеля крыши (ее основной несущей части) стропильные балки из бруса 160х90 это уж слишком. Стропил под тяжелую кровлю (напр. шиферную) за глаза хватит из досок 150х40, а под легкую и поликарбонат – из досок 120х30. Если же на опорные столбы пустить брус 200х200, то террасу под такой кровлей можно сделать и закрытой, обшив с боков.
Проектирование скатной крыши для прилегающей к дому закрытой террасы значительно усложняется, если она угловая. Чтобы не перегрузить основное строение ветровыми и дождевыми нагрузками, крышу приходится часто подпирать столбами и применять косые стропильные балки, см. рис. Поэтому придомовую закрытую террасу лучше делать прямой.

Чертеж верхнего строения с двускатной крышей для отдельной открытой и закрытой террасы
Отличие от террас
Для зоны отдыха на дачном участке используют оба архитектурных сооружения. Из-за внешней схожести их часто путают. Хотя конструктивно они разные
Перед началом строительных работ важно определить — веранда или терраса отвечает интересам домовладельца. Учитывают и особенность ландшафта участка. Чаще под верандой понимают встроенное или пристроенное к дому помещение с отдельным перекрытием
Чаще под верандой понимают встроенное или пристроенное к дому помещение с отдельным перекрытием
Может быть открытым с одной или нескольких сторон. Летний вариант не отапливается. Если располагается на втором этаже, конструкцию дополняют опорами. Терраса же представляет собой легкую открытую площадку. Она может присоединяться к дому или строиться отдельно
Чаще под верандой понимают встроенное или пристроенное к дому помещение с отдельным перекрытием. Может быть открытым с одной или нескольких сторон. Летний вариант не отапливается. Если располагается на втором этаже, конструкцию дополняют опорами. Терраса же представляет собой легкую открытую площадку. Она может присоединяться к дому или строиться отдельно.
На даче веранду сооружают, чтобы решить такие практические задачи:
- утепление фасада жилого здания;
- защита входной зоны от потоков холодного ветра;
- повышение звукоизоляции;
- организация дополнительного пространства.
Летнюю веранду на даче не утепляют. Подводить отопление не надо. Но если домом пользуются постоянно, в помещении устанавливают система “теплый пол”. Обязательна и вентиляционная система, чтобы исключить конденсат.
В отличие от возводимых на даче террас, веранды всегда остекляют по всем четырем стенам. Это требует прочных стен, а не легких бортиков как у открытых площадок. Поэтому обязателен фундамент.
Террасы и на даче, и в загородных домах чаще устанавливают на основания в виде столбов. Встроенные или пристроенные помещения всегда накрыты крышей. У открытых построек может и не быть кровли.
Интересно!Открытые террасы рассматривают как подтип веранд. Главное, чтобы это была не просто площадка, а сооружение с крышей и соединенное с домом.
Варианты заполнения стен каркасной веранды или террасы
Главным украшением каркасной веранды может стать лестница с красивыми перилами, а так же декоративные ограждения, если строение открытое. Ограждения не только отвечают за эстетику строения, но и обеспечивают безопасность нахождения людей на террасе или веранде, если отступ фундамента от земли довольно большой.
Даже если каркас веранды металлический, а в открытых строениях такое решение принимается довольно часто, ограждения можно сделать из дерева. И уж тем более они будут деревянными, если из этого же материала строилась вся веранда.
Красивых ограждений не получится, если у вас в распоряжении нет нужного инструмента: торцовочной пилы, электролобзика, фрезера, шлифмашинки. Но по идее, если террасу вы строили сами, то нужный инструмент всё же имеется.
Почему веранда не закрытая терраса
Так как не имеет механической связи с ключевым строением. А если имеет, то упругую/эластичную слабую: при аварийных смещениях дома и пристройки по отношению друг к другу разрушается исключительно их соединение, а оба сооружения остаются в целости. Добавочное требование – если в результате грунтовых подвижек прилегающая к дому веранда навалится на него, пострадать должна она, а дом остаться невредимым.
Если же крытая веранда отнесена от дома, то ее кровля с опорами точно также не сопряжена с основанием. Этим и выделяется веранда от веранды, с одной стороны и от альтанок со второй. Все таки, современные способы строительства дают возможность построить террасу, снаружи неотличимую от веранды и способную принять на себя все ее функции, аж до того, чтобы стать отапливаемым жилым помещением, см. рис.:

Варианты закрытых сезонно обитаемых и теплоизолированных жилых террас
А строительство тёплой пристройки самостоятельно вполне выполнимо; напр., как собственными руками соорудить большую капитальную террасу из бруса с остеклением поликарбонатным пластиком, см. видео
Видео: веранда из бруса с крышей из прозрачного пластика
https://youtube.com/watch?v=lGfNg4n5KJc
Следующий принципиальный момент: веранда не имеет своих инженерных сетей и систем обеспечения жизни. Напр., электрическое питание пристройки необходимо давать эластичным удлинителем в двойной изоляции, включаемым в домовую розетку. Воду – гнущимся шлангом; газ только баллонный. С одной стороны это не так уж прекрасно – если вы протянете на террасу стационарный водомерный узел или канализацию (электричество, газ), то таким образом превратите ее в хозяйственную постройку или жилище со всеми вытекающими отсюда формальными сложностями. Однако если обойдетесь временной подачей (ну, образно говоря временной, на сколько надо будет), то веранда тогда абсолютно не постройка, не здание и не строение, а сооружение для обустройства территории. На которое СНИПы и нормы санитарии распространяются не больше, чем на лавочку, качели или площадку для детей.
Террасы со стенами, но без крыши
Это еще один вид полуоткрытых террас — настолько интересный и самобытный, что на нем стоит остановиться отдельно.
Такие конструкции создают любители проводить время на свежем воздухе, под открытым небом. Стены же дают зонирование пространства, ощущение некой закрытости. Кроме того, они всегда смогут прикрыть отдыхающих от порывов ветра.
Впрочем, у стен подобных построек есть еще одна практическая функция. По сути это забор со всеми вытекающими из данного обстоятельства последствиями. Им можно отгородить все, что угодно — площадку с бассейном от сада, мангальную зону или летнюю кухню от детской площадки и т.д. Главное, чтобы территории хватило.
Красивые примеры для вдохновения
Для создания собственного проекта или подбора подходящего варианта посмотрите фотогалерею готовых дизайнерских решений. Веранды или террасы традиционно служат местом отдыха, но эти пристройки можно использовать с разными задачами.
Примеры интересных решений:
- прихожая-гостиная. При постройке большой по площади утепленной веранды разбейте пространство сразу на две зоны – прихожую с гардеробом и небольшой холл. Можно обустроить камин. Остекление в пол сделает веранду полноценным помещением;
- зимний сад. Остекленная стеклопакетами утепленная пристройка – великолепное место для разведения цветов и домашнего выращивания овощей, зелени. Оснащение конструкции дополнительными источниками освещения, отоплением позволит заниматься цветоводством и огородничеством круглый год;
детская игровая. В утепленной крытой веранде можно устроить комнату для детей. Проведите отопление, электрифицируйте помещение. Пластиковые окна в пол сделают игровую светлой и просторной. Оборудуйте шведскую стенку, стеллажи для игрушек, качели; кабинет. Обособленное пространство в утепленной пристройке можно оборудовать под полноценное рабочее место. Тишина и расслабляющий вид из окна будет способствовать работоспособности; домашний спортзал
При проектировании веранды с функциями спортзала уделите внимание фундаменту. Если в помещении запланированы активные прыжки занятия, необходимо организовать мощное основание. Оно обеспечит статичное положение конструкции без перекосов;
Оно обеспечит статичное положение конструкции без перекосов;
- столовая. Оборудуйте на дополнительных квадратных метрах утепленного помещения зону для семейных обедов. Сбор всей семьей с великолепным видом из окна сделает совместные трапезы уютным и долгожданным мероприятием;
- кухня. В условиях ограниченности пространства в дачном доме сделайте на веранде полноценную кухонную зону. Если пространство будет использоваться только летом, выбирайте практичную мебель и материалы с влагозащитными функциями.
Используйте разные приемы зонирования с помощью декора, разных уровней пола, постановкой ширм, барных стоек.
Обустройство на дачном участке веранды или террасы даст возможность получить дополнительное пространство, которое можно использовать с разными целями. Утепленная крытая пристройка к дому позволит организовать полноценную комнату, кухню, прихожую. Открытая конструкция – великолепное место для семейных чаепитий, отдыха, встреча с друзьями. Строительство просто осуществить по проектам с фото и пошаговыми инструкциями. Продуманная внутренняя и внешняя отделка придаст строению или территории законченный, эстетически привлекательный вид.
Закрытые террасы
Закрытые террасы. Это сооружения, имеющие стены и крыши. Они могут примыкать к основному зданию или же стоять отдельно от него. Плюсы таких построек очевидны:
- защищенность от любых неблагоприятных атмосферных явлений (дождь, снег, ветер и пр.);
- закрытость от лишних звуков и ненужных запахов;
- защита от летающих и ползающих насекомых (при должном оформлении проемов).
Правда, при полностью закрытом подходе на террасе будет ощущаться недостаток солнечных лучей. Но в жаркий день это, скорее, плюс, чем минус. А чтобы избежать духоты, оконные проемы можно не стеклить, а лишь защитить москитной сеткой от комаров и мошек. Или оформить сдвижными створками.
Почувствовать себя на улице, а потом в считанные секунды уединиться позволит стеклянный раздвижной фасад террасы. Но нужно понимать, что для самостоятельного изготовления и монтажа это слишком сложная конструкция. Оборудовать подобную систему по силам лишь профессионалам. Зато в такой закрытой пристройке можно будет разместить и дорогостоящую мебель, и бытовую технику. Тогда в непогоду ничего не нужно спешно заносить под крышу, достаточно будет прикрыть дверь. А когда захочется чуть больше уюта, стекло можно задрапировать мягкими тканевыми шторами в пол.
Веранда своими руками поэтапно
Соблюдение технологи строительства предполагает поэтапное выполнение работ. Это позволит избежать ошибок и дополнительных расходов на их исправление.

Фундамент
Первым делом потребуется выровнять площадку. Для этого снимают небольшой слой почвы. По углам получившейся территории надо вбить штыри. Между ними размещают дополнительные колышки на расстоянии в 1,5 метра. Натянутый между угловыми штырями шнур позволит сделать ровную разметку.

















Для веранды летнего типа применяют столбчатый фундамент. Его суть заключается в установке отдельных опорных столбов, которые заглубляют в грунт. Это самый недорогой и простой вариант фундамента.
- На площадке потребуется выкопать ямы под опорные столбы. Глубина ям и их количество напрямую зависят от площади и веса конструкции и типа грунта. Обычно глубина ямы не превышает метр.
- Дно ямы утрамбовывают. В нее помещают песок и щебень. В качестве столбов можно применить бетонные блоки, цементный раствор, красный кирпич.
- В яму заливают бетонный раствор, затем монтируют опоры.
- Все опоры должны иметь одинаковую высоту. Для гидроизоляции применяют рулонный материал или битумную мастику. Защита от влаги позволит продлить срок службы сооружения.

Каркас
Монтаж каркаса является следующим этапом выполнения работ. Его тоже производят в четкой последовательности.
- Опоры закрывают рубероидом. На них укладывают брус. Необходимо следить, что нижняя обвязка не сместилась. Для этого в угловых опорах нередко фиксируют обрезки стальной арматуры. В деталях из бруса сверлят отверстия, сквозь них пропускают арматуру, которую затем загибают.
- После обвязки низа по периметру необходимо закрепить поперечные элементы из бруса. В заготовках заранее выпиливают пазы. Детали крепят гвоздями с шагом в 1 метр.
- По наружным углам основы и вдоль стены основного строения необходимо установить детали из бруса. Их длина не менее 2 метров вертикально. Это стойки. Их фиксируют к обвязке на стальные уголки и саморезы.
- Из отдельных деталей монтируют верхнюю обвязку, крепят на стойки. Надежную фиксацию обеспечат саморезы и уголки.

Монтаж пола
Для монтажа пола применяют доску из лиственницы или декинг. Если намечено использование сосновых досок, их предварительно обрабатывают со всех сторон антисептическим составом.

Он защитит древесину от влаги и насекомых вредителей.
- Черновой настил монтируют на стойки из бруса, размещая доски ребром. Для фиксации применяют мебельные болты.
- Раму и лаги крепят ниже уровня пола на саморезы.
- Сверху настилают доски. Их можно расположить параллельно одной из стен веранды или под углом. Второй вариант увеличит расход материала на 20%, но будет выглядеть весьма эстетично.

Основу крыши монтируют из бруса или досок
Важно позаботиться об уклоне, который обеспечит стекание дождевой воды.

















Отделка
Перечень отделочных работ зависит от типа конструкции. Для открытой летней веранды необходимы ограждения и перила. Они играют защитную и декоративную роль.

Рисунок ограждения может быть:
- Вертикальным;
- Горизонтальным;
- Крестовидным.

Обычно высота ограждений на летних верандах не превышает 1 метр.
- Первым шагом станет монтаж дополнительных опор. Расстояние между ними определяют с учетом веса крыши и типа ограждения. Вертикальное ограждение мастерят с шагом 0,5 метра. Для горизонтального или перекрестного варианта потребуются опоры на расстоянии до 1,5 метров.
- Сверху на ограждение крепят перила.

Широкие перила позволят украсить веранду растениями в горшках. Нередко отдельные элементы опор ограждения применяют для дополнительной поддержки кровли.

Лестница на веранду
При проектировании лестницы важно учесть общие требования:
- Количество ступеней всегда должно быть нечетным;
- Высота ступеней не превышает 20 см;
- Ширина ступени варьируется от 36 до 45 см.

Упростит работу точный чертеж.
- В основание небольшой лестницы можно положить кирпичи. В этом случае потребуется сделать для них небольшой фундамент.
- Если ступени будут опираться на пару бревен или доски, то необходимо сделать соответствующие боковые надрезы. К ним крепят ступени.
















При работе над лестницей для летней веранды необходимо позаботиться о безопасности членов семьи. Доски должны иметь гладкую поверхность без выступающих частей и заусениц.


Завершающим этапом станет покраска летней веранды. Можно использовать прозрачный лак или красу для наружных работ. Это позволит сделать конструкцию более привлекательной, дополнительно защитит материал от атмосферного воздействия.






































