Виды арок
Вариантов оформления открытых дверных просветов великое множество. Прежде чем выбрать что-то для украшения будущей арки, необходимо решить, какой формы она должна быть, какой дизайн иметь. Существует несколько видов арок:
- У классической арки есть два боковых раствора и полукруглый свод, расположенный сверху них. Сделать такую несложно, смотрится она всегда оригинально, часто такая форма выбирается для того чтобы соединить между собой кухню и зал.
- У оригинальной арки есть дополнительные детали. Это могут быть полочки для мелких предметов по бокам растворов, ниши, расположенные рядом с ними в стене. При визуальном рассмотрении нужно оценивать всю композицию в целом и не отвлекаться на отдельные её элементы.
- У восточной арки всегда необычное исполнение. Она обязательно имеет какие-нибудь дополнительные детали в верхней части свода. Обычно он в самой своей наивысшей точке заостряется и становится похожим на треугольник со скруглёнными боковинами. Смотрится такой элемент экстравагантно, он полностью меняет дизайн помещения, и хорошо подчёркивает стилистику интерьера.

Классическая арка на кухнюИсточник www.v-interere.ru
Арка в стиле модерн («британская арка») тоже имеет узнаваемый дизайн. У неё свод имеет плавные углы, которые образуются прямо на верхней границе растворов. Выглядит проем очень сдержанно и пластично. Если он оформляется деревом, удаётся повышать статусность интерьера.
Арка в форме эллипса очень красива, при правильном оформлении она не смотрится вызывающей, наоборот, максимально раскрывает пространство, при этом чётко разграничивает две зоны. Такой вариант часто используется тогда, когда есть необходимость объединить кухню и столовую.
Если просто убрать дверь и проем между комнатами украсить гипсовой лепниной, деревом, молдингами, получится портал. Это самая простоя по исполнению арка. Она часто выбирается, когда кухня объединяется с коридором.

Портал между кухней и коридоромИсточник avatars.mds.yandex.net
Можно при верхнем оформлении арки объединять полукруглые и прямые элементы. Тогда получается сложные по исполнению варианты, помогающие формировать особую романтическую атмосферу. Реализовывать такие проекты в условиях городских квартир сложно, а вот в родовых особняках такие варианты исполнения хорошо раскрывают всю свою красоту.
Иногда устанавливаются арки из гипсокартона на кухню, у которых верхний свод опирается на две колоны. Если выбрать полые подпорки, в них потом можно организовывать дополнительную систему хранения. Внутри удобно размещать уборочный инвентарь, складировать то, что редко используется по назначению, но бывает нужным в определённые моменты.
Дизайн арок в большой кухне
Просторные кухни с высокими потолками предоставляют практически неограниченные возможности в плане возведения арочных конструкций.
Широкий входной проем оформляется как классическая, эллипсоидная, фигурная или трапециевидная арка.
Объемный фантазийный волнообразный свод выделит столовую, рабочую зону, уголок отдыха.
- Необычный визуальный эффект создает многоярусная потолочная конструкция, объединенная с асимметричной аркой.
- Круглая или фигурная вариация между кухней и холлом или жилой комнатой придает интерьеру особый изыск.
Кухню с балконом или лоджией можно декорировать дугообразной аркой от пола до потолка с внутренней стороны.
Фото красивых арок между кухней и гостиной
Выбрать наиболее подходящий дизайн дуги, не имея опыта связывания интерьеров помещений, достаточно сложно. По сути, приходится решать проблему последовательного «перетекания» композиции и планировки кухни в интерьер гостиной комнаты, причем переход должен быть плавным и естественным, оставаясь при этом линией разграничения.
Арки с прямым и секционным сводом
Устройство прямого арочного свода требует достаточно взвешенного подхода к выбору облицовки. Наиболее удачный вариант дизайна, фото, оформляется, как увеличенный в размерах дверной проем с декоративными псевдо колоннами и накладками из пластика или тонированного дерева.
Прямые арки с трапециевидными контурами используются для случаев размещения кухни и гостиной в помещении мансарды.
Потолочный брус арки не обязательно строить в виде прямой линии, более выразительного эффекта можно добиться, сформировав его в виде каскада прямых отрезков. В этом случае ломаная линия зонирования кухни и гостиной получается очень необычной по форме и содержанию.
К сведению! Формирование арочного пролета из отдельных отрезков считается наиболее простым и доступным способом постройки свода.
Чтобы добиться идеального построения арки, в первую очередь необходимо сформировать идеально ровную дугу, что зачастую остается непосильной задачей для декораторов-любителей. Если предыдущий вариант можно считать переходной моделью, то следующую арку лучше назвать компромиссным решением.
Очень симпатичным получается арочный пролет, оформленный в классическом варианте в стиле барокко.
Симметрия, как основа красоты арки
Криволинейные перекрытия выбирают в первую очередь за притягательную необычность форм. Можно скопировать классический проход с арочным верхом и ровными вертикальными опорами, но сегодня такой вариант выглядит слегка устаревшим.
Более эффектной и современной считается арка в форме усеченной окружности, фото.
Проем между помещениями кухни и гостиной комнаты может быть выполнен в виде полудуги, эллипса, или даже в форме яйца.
Основание симметричной арки может опираться как на пол, так и на поднятые тумбы-колонны, все зависит от размеров помещения и радиуса кривизны.
Арочные конструкции ассиметричной формы
Межкомнатные проемы ассиметричной формы нельзя отнести ни к простым, ни к практичным. Нужно обладать врожденным чутьем художника-оформителя, иметь опыт и смелость, чтобы оформить линию разделения между кухонным пространством и гостиной в виде арки несимметричной формы.
Один из наиболее популярных вариантов предполагает использование наклонной дуги, перекрывающей большую часть припотолочного пространства помещения.
С потолком небесного цвета, облицовкой из камня и желтыми красками стен конструкция смотрится, как часть декораций.
Асимметрия арки не обязательно должна закрывать половину помещения гостиной или кухни, всегда можно использовать в качестве основания свода обычную дугу, но смещенную на небольшое расстояние от осевой линии.
План монтажа классической арки между кухней и залом
После того как вы провели все подготовительные мероприятия, приступайте непосредственно к монтажу. Он несложен, но требует внимательности и терпения. Рассмотрим шаги:
Установите профильный каркас. Укрепите направляющий профиль при помощи дюбелей. Сделайте укрепления по обеим сторонам верхнего перекрытия. На боковых стенах проема установите аналогичные детали от верха конструкции до места окончания закругления свода арки. Скрепите детали каркаса при помощи саморезов. Далее укрепите элементы дуги на П-образный профиль. Такая конструкция нуждается в усилении. В этом помогут полоски стоечного профиля.
Изготовление обшивки. Возьмите ту полоску гипсокартона, на которой ранее вы делали отметки с размерами. Примерьте ее к проему и в случае, если она идеально вписывается в конструкцию, изготовьте еще одну аналогичную деталь. После этого, обе детали закрепите саморезами на каркасе арочного проема с двух сторон. Саморезы размещайте на расстоянии 10 сантиметров друг от друга, шляпки вдавливайте вглубь листа. Внутреннюю часть дуги арки закройте изогнутой по форме дуги полосой ГКЛ. Шурупы крепите к профилю с шагом 5-7 сантиметров.
На этом моменте изготовление арки своими руками можно считать законченным. Теперь вся конструкция требует финишной отделки. Помните о том, что используя арку в качестве разделения пространственных зон, вы обязываете себя придерживаться определенного стиля в оформлении общего пространства гостиной и кухни. Арка – долговечный элемент, который никогда не выйдет из моды. В зависимости от изменяющихся вкусов ее можно каждый раз декорировать по новому: это можно делать совместно с существующим интерьером или отдельно, подгоняя под него. В случае если арка надоест, то ее демонтаж не станет затратным ни по времени, ни по финансам.
Выбираем тип арки
Чтобы в будущем не жалеть об установке арки в интерьере кухни, спланируйте все детали. Набросайте проект этой конструкции, чтобы убедиться, что арка действительно улучшит внешний вид комнаты: для этого вы можете обратиться сразу к установщикам, которые спроектируют дизайн и размеры арки на компьютере.
К слову, такая конструкция необязательно может использоваться на месте двери или прохода в соседнюю комнату.
На фото ниже – один из примеров нестандартного использования арочной конструкции: она подчеркивает зону с барной стойкой.
Внимание! Арка для кухни большой ширины станет отличным решением для кухонь, которые нужно превратить в комнаты студийного типа. Если раньше все арки выглядели однообразно, то сегодня они отличаются и по параметрам, и по используемым материалам
Если раньше все арки выглядели однообразно, то сегодня они отличаются и по параметрам, и по используемым материалам.
Вы можете выбрать одну из следующих форм арочных конструкций:
классическая — представляет собой полукруглую сквозную нишу в стене, нередко переходящую в вертикальные колонны (их можно сделать декоративными с помощью подходящих молдингов и лепнины);
современные арки в стиле модерн могут быть выполнены в виде дуги на четверть или две трети круга;
лаконичное решение – прямоугольной формы – подходит для абсолютно любого стиля комнаты;
более романтичный вариант – арочные конструкции эллипсовидной формы, а также комбинации эллипса и прямоугольника; с трапециевидным верхом подойдет для интерьеров в старинных стилях и в стиле лофт;
нестандартные формы с плавными линиями, сквозными вырезками в стене, пристройками в виде барных стоек и полочек и т.д. можно реализовать, обратившись к компетентным специалистам.
Внимание! В идеале форма арки должна гармонировать с формой окон и остальных дверных ниш в кухонном интерьере. Чаще всего их изготовляют на основе гипсокартона
Из него проще вырезать нужную форму, к тому же, поверхность гипсокартона с легкостью красится, декорируется обоями или другими отделочными материалами, так что вы сможете придать арке желаемый внешний вид
Чаще всего их изготовляют на основе гипсокартона. Из него проще вырезать нужную форму, к тому же, поверхность гипсокартона с легкостью красится, декорируется обоями или другими отделочными материалами, так что вы сможете придать арке желаемый внешний вид.
Деревянные конструкции арок – более прочные и долговечные. Дерево подходит к любому стилю, отлично гармонирует со светлой и темной мебелью и отделкой, оно экологично и смотрится величественно. Но, в силу дороговизны качественного дерева, чаще всего этот материал используют не для всей конструкции, а лишь для ее отделки по периметру.
Наименее дорогостоящий вариант сооружения – использование пластика или пенопласта. Этот материал будет легко держаться на стене в силу своей легкости, а для декорирования вы сможете задействовать краску, декоративный камень или реализовать другие идеи отделки.
Зачем нужны арки
Арка на кухню предлагает зрительно увеличить комнату, сделать удобным переход из одной части квартиры в другую. Добавляется своя индивидуальность в привычную планировку квартир. Если места достаточно много, то можно сделать ее в стиле барокко: конструкция с колоннами, характерной для этого стиля лепниной, станет настоящим украшением любого дома.
Двери наоборот – сужают объемы, перекрывают свободный доступ освещения.
Если переход узкий и места не так много, то арку между кухней и гостиной все равно можно поставить. Просто выбрать подходящую форму, возможно украсить занавесками, легкими шторами. Увидеть дверные арки на кухню можно не только в богатых домах, но и в самой обычной «хрущевке».
Преимущества и недостатки арочных конструкций
Свободный проход на кухню обладает преимуществами:
- зрительное увеличение объемов – даже небольшая комната сразу смотрится по-другому, становясь больше и светлее;
- на фото арки на кухню вместо двери хорошо видно, что света в помещение попадает намного больше, даже стеклянная дверь не обеспечит прохождение такого же количества солнечных лучей в комнату;
- можно украсить конструкцию лепниной, декоративным узором, сделав ярким, самобытным, оригинальным украшением дома;
- гармоничное и аккуратное разделение разных зон аркой между кухней и комнатой возможно, даже если они будут оформлены в разных стилях;
- арка на кухню вместо двери подойдет к любому интерьеру: минимализм, классика, хай-тек, прованс и многие другие.
- не все люди чувствуют себя комфортно при отсутствии глухой двери между помещениями, к тому же постоянно распространяются запахи пищи по квартире, мешает звук льющейся воды, легко «кочует» мусор по всему дому;
- поставить такой архитектурный элемент при наличии низких потолков не представляется возможным – визуально комнаты будут утяжеляться, создавая гнетущее ощущение.
Что лучше — дверь или арка?
Однозначного ответа на этот вопрос нет. Лучше всего опираться на свое видение готового варианта дома и особенности квартиры. На фото арка между кухней и гостиной смотрится всегда хорошо, но подойдет ли именно этот вариант для вашего жилья – далеко не факт. При этом конструкция не занимает место в отличие от классической двери, значительно облегчается вентиляция помещения.
Дверь надежно отгораживает кухню от остальной части дома: запахи не будут просачиваться, шум не станет мешать просмотру телевизора. Если в квартире дети – дверь на кухню может стать критичным элементом. Она не пустит сорванцов к опасной бытовой технике, даст спокойно приготовить обед взрослым. Если вы любите пошушукаться в узкой компании без посторонних ушей на кухне, то дверь будет однозначно лучше всех прочих вариантов перепланировки.
Основные формы арок
Арка на кухню из гостиной бывает разной формы. Чаще всего можно увидеть классическую полукруглую или романскую. Она проста в исполнении, легко становится на место дверного проема без его демонтажа. Каждый желающий сможет сделать такую арку на кухню своими руками. Подойдёт она для квартир небольшого метража, квартир-студий, «хрущевок», при переходе в коридор.
Английская арка в виде лука подойдет для широких проемов. Она имеет острые углы, оригинальную, лучковую, форму и будет отлично смотреться в классическом стиле для больших домов или квартир.
«Полуэллипс» – устанавливают в маленьких комнатах, делая пространство визуально чуть больше.
В виде трапеции не подойдет для небольших проемов и маленьких квартир. Сложная форма конструкции, в этом случае, будет зрительно уменьшать общее пространство, а вот в больших комнатах такое решение найдет свое место.
Прямоугольный вариант подходит для «хрущевок» с их малюсенькими кухоньками и переходом в коридор.
Виды проемов, оформленных аркой
Арка считается древним архитектурным сооружением: она была актуальна при возведении массивных строений древности, а сейчас используется в качестве перегородки между зонами. Современный интерьер предлагает несколько видов арочного проема. Рассмотрим их:
Классические
Арки имеют ровный свод и обрамлены наличниками
На них нет лишних элементов, которые привлекают к себе внимание

Классическая арка в интерьере
Фигурные
Арки имеют разные формы, линии не всегда плавные. Акцент делается на декорирующие элементы. Фигурные арки разделяются на множество подвидов, которые будут рассмотрены далее.

Вариант фигурной арки в интерьере
Классический тип обычно применяется в дизайне арки между кухней и гостиной. Ей также разделяют прихожую и кухню. Отличие арки в том, что она имеет радиус, равный расстоянию между боковыми стенками проема.
Изготовить традиционную арку можно из различных материалов. Это может быть бюджетный гипсокартон или металл, плитка и другие строительные материалы.
Классической арка считается и в том случае, если она имеет другую форму, но элементы ее декора приближены к классическому античному стилю. При этом периметр проема имеет наличник из лепнины или ее имитации. В центре свода присутствует декоративный элемент, который символизирует замковый камень.

Арка из гипсокартона: классический вариант
Арки представлены во множестве вариантов. Рассмотрим основные:
Британские По-другому такие арки называют «модерн». Дуга свода имеет более прямые очертания, радиус дуги усечен. Углы плавные. Подходят для помещений с низким потолком.


Славянские Прямоугольные арки с закругленными краями.


Тайские Форма арки с одной стороны имеет прямой угол, с другой – закругление любого радиуса. Такие арки сейчас актуальны, их фото встречается повсеместно.


Портал Прямоугольная арка с различными элементами декора: витражные стекла, деревянная резьба.




Ниша Выступающая арка, прикрепленная к стене. Скрывает в себе открытые ниши различного размера. Фото арки можно найти по соответствующему запросу в сети.

Эллипс Дуга арочного проема представлена в форме овала. Может нести функциональную нагрузку в виде полок.


Трапеция Арка делается в виде прямоугольника со скошенными углами. Такая арка будет отлично смотреться, если отделать ее деревом.


Круг Своды в виде круга, переходящие к низу в ровные боковые линии, зарекомендовали себя в помещениях с низким потолком. Круглая арка сглаживает острые углы и делает переход из кухонной зоны в гостиную мягким.




Преимущества кухонной арки

Арочная конструкция — это экономичная дверная конструкция, обладающая следующими преимуществами:
Эксклюзивный дизайн. Во-первых, сама арка выглядит оригинальнее, чем обычная дверь. Во-вторых, дает неограниченные возможности для оформления переходной зоны: любой формы, цвета, декора — в этом вопросе все зависит только от вашей фантазии. Арочная конструкция может выступать незаметным переходным элементом между интерьерами и выступать в роли декора, подчеркивая пространство, но в любом случае вы получите эксклюзивный дизайн.

Свет. Гипсокартон имеет небольшой вес, поэтому архитектурная конструкция не нагружает несущие стены, какой бы массивной она ни казалась.
Арка стирает четкую границу между кухней и соседней комнатой, делая пространство визуально просторнее.

В пустотах сводчатой гипсокартонной арки можно аккуратно спрятать различные коммуникации. При этом не требуется прибегать к штабированию, как в случае с кирпичными или блочными конструкциями.

Гипсокартон намного дешевле других отделочных материалов для арок и дверей. Кроме того, обслуживание готовой конструкции не требует серьезных финансовых вложений, так как зачастую отсутствует деформированное оборудование, которое является основным источником затрат на эксплуатацию ворот.

Материал практичный и простой в обработке, поэтому для проектирования дверного проема не потребуется никаких специальных строительных инструментов или опыта — просто следуйте основным инструкциям.

Посмотрев фото конструкции арок, вы заметите, что все они не похожи друг на друга — такое разнообразие объясняется не только большим разнообразием отделки, но и возможностью декорировать ее своими руками. Оригинальное оформление архитектурного сооружения под силу каждому — достаточно решить, с каким материалом вы хотите работать:
Обои — традиционная отделка, не теряющая популярности за счет огромной цветовой гаммы и фактуры. Оптимальный вариант для кухонной арки — флизелиновые или виниловые обои, так как они прочные и подходят для влажной уборки.

Краски — практичная отделка, которая не боится влаги и загрязнений. Краски на водной основе лучше всего подходят для кухни, так как не содержат токсичных веществ и не выделяют резких запахов.
Камень — гипсокартон не выдержит нагрузки натуральных камней, поэтому желательно использовать искусственную декоративную плитку, имитирующую натуральные аналоги. Фактура последнего может быть любой: кирпич, шифер, гранит, мрамор — на фото видно, что этот декор практически неотличим от натурального камня.

Лепнина — элегантный декор, не имеющий ограничений по форме: плоская или фигурная лепнина, колонны, чепчики, барельефы. Рекомендуется использовать лепнину из полиуретана — она легкая, поэтому не оказывает давления на гипсокартон.
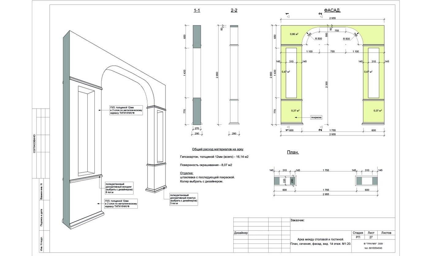
Технология изготовления арки между кухней и гостиной
Процесс монтажа гипсокартонного арочного свода будет мало отличаться от создания любой другой каркасно-обшивной конструкции.
Внимание. Следует помнить, что установка арки в дверном проеме высотой менее двух метров нецелесообразна – конструкция «съест» расстояние 100-150 мм как минимум
Материалы для изготовления
Все необходимые в работе материалы можно легко найти в каждом строительном магазине. Для монтажа каркаса арки своими руками нам потребуется:
- Металлический профиль стоечный (60х27) и направляющий (28х27);
- Самонарезающие шурупы «по металлу» и шурупы-дюбели (6х60).
Обшивку арки будем выполнять с помощью:
- Листов гипсокартона толщиной 6,5 мм (дуга) и 12 мм (боковые стенки);
- Арочного уголка, укрепляющего кромки дуги;
- Самонарезающих шурупов, крепящих обшивку к каркасу.
Необходимый инструмент
Для работы по обустройству арки между нашей кухней и гостиной нам потребуется вполне доступный набор инструментов:
- дрель – перфоратор
- шуруповерт
- ножницы «по металлу»
- нож
- строительная рулетка
- карандаш
- кернер или гвоздь
- прочная капроновая нить
Как мы видим, никаких дорогостоящих материалов и сложного инструмента не потребуется. Остается лишь детально изучить пошаговую инструкцию по монтажу гипсокартонной арки между кухней и гостиной, фото которой представлено ниже – это поможет нам выполнить работы быстро и качественно.
Подготовка к работе
Готовим проем к установке арки, расширяя его при необходимости, удаляя дверную коробку и счищая штукатурку
Особое внимание обращаем на выравнивание верхней плоскости.
С помощью рулетки выполняем замер ширины проема (х), а также расстояния от верхнего перекрытия до наивысшей точки будущего арочного свода (у). Запомним полученные цифры – они потребуются нам при изготовлении составных элементов конструкции своими руками.
Разметка боковых деталей арки
- От листа гипсокартона отрезаем полосу шириной равную ширине проема. Находим середину детали и отмечаем центральную ось арки между кухней и гостиной, проводя карандашом вертикальную линию.
- От верхнего края заготовки отмерим расстояние в половину ширины (х) и добавим к нему значение размера «у». Получившееся расстояние «перекладываем» на линию центральной оси и получаем точку центра окружности арочной дуги.
- «Мастерим» циркуль из карандаша, кернера (или гвоздя) и капроновой нити. Закрепив его в точке, проведем полукруг радиусом половины ширины (1/2 от «х») и получим схему боковой детали с дугообразным вырезом.
Готовим гипсокартон
Изготовление «классической» арки между гостиной и кухней невозможно без ознакомления с основными способами сгибания листа ГКЛ для дуги. Итак, этих способов два:
«Мокрый» – предусматривает увлажнение гипсокартона. Отрежем элемент нужного размера и нанесем на его поверхность множество проколов, используя шило или игольчатый валик. Смочим деталь водой и уложим ее на шаблон, заготовленный из подручных предметов. Материал примет требуемую форму и будет готов к применению сразу после полного высыхания.
«Сухой» способ сгиба гипсокартона своими руками предусматривает нанесение надрезов на одной из сторон листа (смотри фото). Это более трудоемкий метод, требующий наличия определенных навыков и терпения.
Примеры в интерьере комнат
Фото оформительских примеров для различных комнат.
Зал или гостиная
Арочные модели из гипсокартона, отлично вписываются в общий дизайн зала и придают дверному проходу, по-настоящему привлекательный вид. В гостиной довольно часто применяют прямоугольные, эллиптические, овальные или трапециевидные конструкции.


Кухня и столовая
В дизайне кухне особенно будут уместны классические арки аккуратной и симметричной формы или модели из гипсокартона, которые иногда декорируют лепным декором, деревом или вставками из стекла. Для небольшого кухонного пространства подойдут трапециевидные арочные модели.


Коридор и прихожая
Оформление прихожей, должно быть выполнено очень грамотно, чтобы выгодно подчеркнуть всю красоту данного пространства. Для небольшого коридора чаще всего выбирают прямоугольные проемы из гипсокартона, а для более просторного, арку в виде широкого эллипса или трапеции.


Спальня
Арочную конструкцию, расположенную на стене над кроватью, можно дополнить искусственным освещением, книжными полками или прикроватными нишами для всевозможного декора. Форма проема, в целом соответствующая единому стилю спальни, позволяет сформировать сбалансированный и очень уютный дизайн.


Балкон
Если объединять балкон с комнатным пространством, гипсокартонная арка будет являться отличным дизайнерским решением, значительно гармонизирующим общую обстановку.

На фото п-образная белая арка из гипсокартона, расположенная между балконом и гостиной.
Детская
Арочные изделия из гипрока с запоминающимся, сказочным и немного таинственным дизайном, создадут в детской яркий и по-настоящему уникальный интерьер, в который хочется бесконечно возвращаться.


В каком стиле уместна арка на кухне
Арку на кухню желательно выполнить в стиле, гармонирующем с дизайном самой кухни и смежным с ней помещением. Вариантов оформления арочного проема множество, и они ограничены только вашей фантазией.
Если ваша кухня оформлена в классическом стиле, то для создания единого интерьера рекомендуется использовать классическую или трапециевидную форму арки, отделанную деревом или гипсокартоном. Арка в классическом стиле подойдет как для просторной, так и для небольшой кухни.
Арочный проем можно снабдить дополнительной подсветкой. Такой дизайн прекрасно подойдет для романтичного стиля арки и поможет сделать зону разделения кухни и смежного помещения более светлым.
Для кухонных помещений, оформленных в современных стилях, подойдут арки, отделанные камнем или пластиком. Каменную облицовку выбирают и для кухонь в стиле эко.
Форма арки в стиле модерн будет смотреться необычно. Для создания единой картины часть стены оформляют тем же отделочным материалом, что и арку. Если позволяет площадь, проем можно дополнить полочками для аксессуаров.
Кухню в античном стиле гармонично дополнит арка с лепниной, оформленная в единой цветовой гамме с кухней. Арочный проем в виде колон, украшенных лепниной, также идеально подойдет для античной кухни.
Кухонную арку можно снабдить функциональным элементом для хранения различных принадлежностей, но не стоит забывать, что при таком оформлении арочного проема необходимо оставить достаточно места для беспрепятственного прохода из одного помещения в другое.
Для закрытия арки используют шторы, подобранные в соответствии с цветовой гаммой и интерьером помещения. Но обыкновенные шторы из тканевых материалов быстро впитывают в себя запахи и часто пачкаются. Альтернативой тканевым шторам прекрасно могут служить деревянные или пластиковые жалюзи. В зависимости от того, какого типа жалюзи использовать, можно визуально расширить арку или увеличить ее высоту. Для закрытия арки также можно использовать римские шторы. Красиво и необычно в арочном проеме смотрятся нитяные портьеры.
Если при изготовлении арки получается слишком широкий проем, рекомендуется сделать несколько арок, соединенных между собой колонами. Такой дизайн добавит в ваш интерьер величие и царственность.
В дизайне кухни арки можно не только использовать в дверных проемах, но и попытаться зонировать кухню и заменить традиционные оконные рамы арочными. Это придаст помещению еще большую целостность и неповторимость.
Материалы, использование которых подходит для монтажа арки между кухней и залом
Арки можно создавать из чего угодно. Их можно делать своими руками, или покупать готовые, стилизованные под определенный вид интерьера. Не возбраняется самостоятельный декор покупных арочных проемов. Материалы для изготовления арок следующие:
Гипсокартоновые листы
Дешевый вид строительного материала. Прочен, во влажном состоянии обладает гибкостью. Это позволяет делать из ГКЛ любые формы изгибов. Простой в монтаже. Гипсокартон легко отделать финишной шпатлевкой и придать законченный вид. Материал является экологичным и может быть использован для изготовления декоративных арок в доме, где живут дети.




Камень, бетон, кирпич
Такой вид материалов используется в основном на больших площадях, например, в частном доме. Смонтировать такую конструкцию в квартире можно, однако это потребует больших затрат и квалификации. Вес материала достаточно большой, поэтому нужно учитывать, что не все старые панельные дома смогут выдержать дополнительную нагрузку на несущие конструкции.



Дерево, ДСП, МДФ, металл
Арки из этих материалов можно сделать самостоятельно, но приобрести их в собранном виду выгодней. Цена конструкций высокая, однако, покупка внесет дополнительный стилевой элемент в объединенное пространство. Арки из таких материалов изготавливают на заказ в мастерских под индивидуальный интерьер квартиры или частного дома.



Самостоятельная установка сводчатой арки
И даже более сложную арку со сводами можно воплотить в реальность при домашнем ремонте. Важный момент — просто оформить сводом вершину дверного проема не получится из эстетических соображений. Вам придется увеличивать высоту проема, чтобы проход между комнатами не напоминал давящий со всех сторон пиратский грот. Решите вопрос с расширением стенного проема или снесите стену и поставьте новую гипсокартонную конструкцию
Обратите внимание, что нарушать целостность и каким-либо образом менять несущие стены запрещено

А теперь — пошаговая инструкция, как сделать сводчатую арку в межкомнатной перегородке:
- Вариант с расширением проема. Размечаем границы будущего проема на существующем. К желаемой ширине арки добавьте 4 см по ширине и столько же по высоте. Отметьте засечками на стене. Далее через каждые 10 см надо пробить перфоратором сквозные отверстия в стенке и расширить проем дисковой пилой. Потом организуем основание для боковых панелей из гипсокартона или ДСП с монтажом на П-профиль. Как делается свод, вы увидите в отдельном разделе.
- Вариант с межкомнатной аркой из гипсокартона на новой стене. Перед установкой новой гипсокартонной стены нанесите вертикальную разметку с помощью отвеса на несущую стену, к которой будет примыкать конструкция. Возьмите обрезок профиля и перенесите разметку на противоположную стену. Установите и зафиксируйте дюбелями П-образный профиль ЦД по разметке. От боковин с двух сторон отложите на полу отрезки профиля, равные ширине гипсокартонной стенки до арочного проема, прикрутите эти элементы. Профиль по потолку займет всю ширину стены. Далее ведем две рейки от потолочного профиля и соединяем с концами отрезков на полу, чтобы получилось основание боковых арочных панелей. На раму монтируем поперечины с шагом 20 см, что способствует устойчивому положению ГКЛ (гипсокартонных листов), которые мы уложим на этот каркас. И на последнем этапе мы будем делать свод для арки.

Выравнивание поверхности
Конечно, делать своими руками лучше всего шпаклевкой. Вначале грунтуют стену и арку, после чего можно приступать к нанесению шпаклевки. Вне зависимости от того, как формируется проем, этот этап является обязательным для всех вариантов, шпаклевка позволяет сгладить мелкие дефекты и устранить отличия арки от стены.
В случае с гипсокартоном вместо исходной смеси сразу можно использовать финишную шпаклевку. Саморезы специально немного утоплены, поэтому их легко спрятать на этом этапе работы. Для достижения идеального результата обязательно протирайте шпаклевку после ее высыхания.
Материалы для изготовления арочного проема
Материал выбирается обычно не только уместным в данном стилистическом оформлении, но и в соответствии с финансовыми возможностями. Что следует знать, перед тем как сделать на кухне арку?
Камень
Самый надежный и долговечный вариант – каменная (кирпичная) арка, но при этом он и самый дорогостоящий, требующий высокого профессионального мастерства. Кроме того, без дополнительного декорирования такая конструкция выглядит достаточно непрезентабельно для интерьера жилого помещения.
Каменная арка в интерьере кухне
Древесина
Значительно практичнее и удобнее арки из дерева – материала доступного и относительно недорогого. Главный минус и неудобство деревянных конструкций – сложность изготовления изогнутых элементов, но он с лихвой компенсируется удобством и простотой монтажа. Кроме того, как хорошо видно на фото, таким аркам на кухню для придания эффектного внешнего вида во многих случаях вполне хватает минимальной декоративной обработки древесины.
Отделка арки на кухне деревом
ГКЛ и древесные плиты
Еще проще монтировать арки из гипсокартоновых листов – этот материал позволяет при определенных навыках изготавливать проемы любой степени криволинейности. Небольшие огрехи форм легко исправляются шпаклевкой, а финишная отделка позволяет придавать поверхности фактуру любого природного или искусственного материала. Единственный минус дизайна кухонь с гипсокартоновой аркой – относительная длительность отделочных работ.
Дизайн кухни с гипсокартоновой аркой
Конструктивная основа таких арок – каркас из специальных металлических профилей или деревянных реек, впоследствии обшиваемый листовым материалом. Такой остов универсален, и вместо гипсокартона при необходимости вполне можно использовать листы ДВП или ДСП, пластик и даже листовой металл.
Полиуретановые арки
Полиуретан – искусственный материал, по своим физическим и прочностным характеристикам аналогичный пластику. Такие пластмассовые конструкции обычно продаются в виде набора уже готовых элементов, необходимых для сбора арки в проеме подходящей конфигурации. Сборка достаточно проста и не требует высокой квалификации, отделочные работы не требуются.
Полиуретановая арка на кухню
Главный недостаток сборок из полиуретана – их не слишком высокая механическая прочность, поэтому в качестве несущих конструкций их использовать нельзя ни в коем случае. Главная и практически единственная функция пенополиуретановых арок в интерьере кухни – декоративная.





































