Инструменты и принадлежности
Для сборки будет необходимо иметь:
- Профили направляющие потолочные ПНП 28×27 мм.
- Профили потолочные ПП 60×27 мм (возможно).
- Лента уплотнительная.
- «Дюбель-гвозди».
- Электролобзик.
- Правило алюминиевое.
- Лист гипсокартона.
- Шпаклёвка для швов гипсокартона.
- Армирующая лента для швов (серпянка) либо бумажная лента.
- Рулетка.
- Молоток.
- Нож канцелярский (или спец. нож для резки ГК).
- Перфоратор + бур.
- Шуруповёрт.
- Саморезы по металлу 25–35 мм (чёрные, частый шаг).
- Акриловая грунтовка.
- Ножницы по металлу.
- Набор шпателей.
- Пластиковый защитный уголок.
Вот чем нужно запастись для того, чтобы установить арку
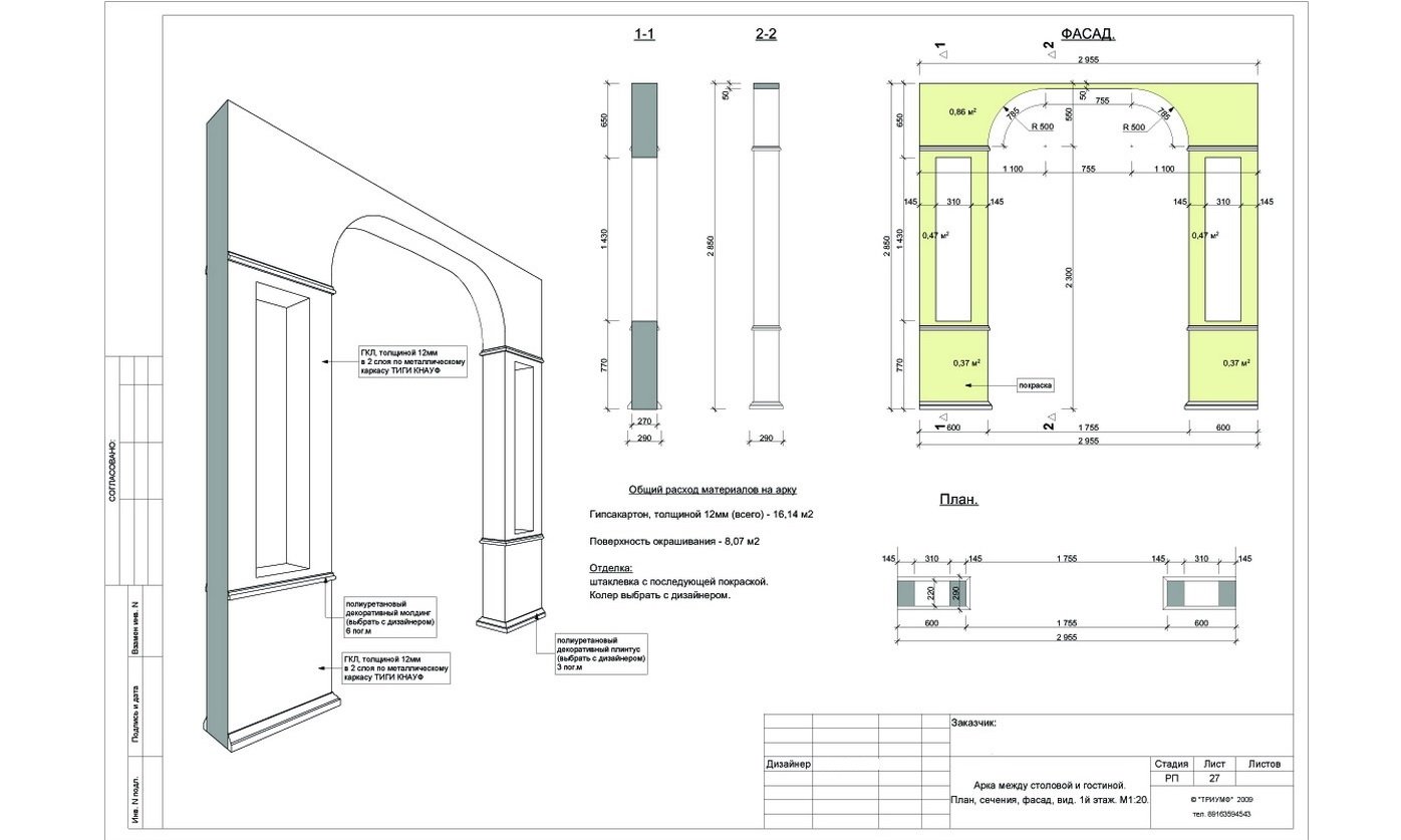
Для монтажа арки нет особой разницы, какой толщины брать гипсокартон. Для торцов лучше всего подойдёт 12,5-миллиметровый, а для свода — 9-миллиметровый.
Выбор конструкции и расчет
Межкомнатная арка своими руками из гипсокартона не требует сложных расчетов, но предварительные вычисления все же нужны: требуется определить необходимое количество ГКЛ, профиля (или деревянного бруска), крепежа, выбрать саму форму.
Начальные данные для вычислений – размер существующего проема. Если планируется воздвигать перегородку из гипсокартона, как описано в статье, ограничителем будет желаемый размер, а не уже имеющийся в капитальной стене. В зависимости от того, как именно будет возводиться арка, рассмотрим два варианта действий.
Отделка существующего проема в капитальной стене (панели, кирпич, блоки)
Планировка дома может предполагать несколько вариантов ширины и высоты проема. Ниже приведены три типа классических арок для разных габаритов.

При этом следует соблюдать допустимое расстояние от верхней точки арки до уровня чистового потолка.

Уменьшение этого расстояния допустимо только в легких каркасных конструкциях и только с распределенной опорой перекрытия на каркас. В противном случае нагрузка от перекрытия на несущую стену окажется чрезмерной, может произойти провисание потолочной плиты или балок, разрушения участка стены или перекрытия.
В зависимости от существующих размеров проема и допустимого уменьшения расстояния от его верхней точки до потолка выбирается полуциркульная (справа) или лучковая (слева) форма дуги. Учитывается также возможность изгиба гипсокартонных листов (только в продольном направлении), для обычных панелей допустим изгиб с радиусом 300…1000 мм и более, на радиус сгиба влияет толщина листа. Чем тоньше лист, тем больше возможность изогнуть его желаемым образом.

После того, как размер арки и проема установлены, выполняется эскизный набросок будущей конструкции с указанием положения стоек и распорок каркаса, габаритами листов гипсокартона и размещением крепежа.

Сделать проем-арку своими руками можно без использования арочного профиля, применяя обычный с надсечками.
При расчете следует учитывать наличие или отсутствие боковых профилей, укрепляющих проем с обоих сторон и, соответственно, количество листов. Таким образом, для полуциркульной конструкции с усилением проема до самого низа с обеих сторон потребуется при начальном размере проема 900х2000 мм:
- прямые стойки (профиль угловой ПУ31/31 или стоечный ПС50/50) – 2000х4+900х2=9800 мм (округляем до 2 м);
- профиль радиусный (арочный) CD60 по длине арки с небольшим запасом – πх450х2=2 826 мм, округляем до 3 м. Вместо арочного можно использовать ПС50/50 той же длины, надсекая его боковые планки с шагом 30…50 мм;
- листы гипсокартона (для ширины стены в месте проема 250 мм) – 3 000х250 мм для арочной части (лучше специальную разновидность ГКЛ с продольными пазами), раскрой только в продольном направлении, и две планки длиной 2 000-450 = 1 550 мм с шириной 250 мм;
- также необходимо два (или четыре, в зависимости от конструкции) прямых подвеса для крепления арочного профиля или соответствующее количество соединительных элементов;
- дюбели для фиксации профиля к дверному проему, саморезы для крепления ГКЛ к профилю.
Создание перегородки с арочным проемом
Сделать дверную арку своими руками можно с не меньшим успехом в заново возводимой перегородке из ГКЛ. Чертеж такой конструкции представлен ниже.

Как видно из чертежа, кривая арочного проема достаточно сложна, имеет несколько сопряженных радиусных дуг, дополнительно конструкция имеет три прямоугольных небольших проема. Схема армирования перегородки основана на использовании нескольких вертикальных стоек полной длины и большого количества скрепляющих перемычек, а также арочного профиля. Общее количество необходимых материалов здесь посчитать сложнее, причем необходимо учитывать запас не менее 10…15% на случай непредвиденных сложностей при раскрое профиля и ГКЛ. Укрупненно расчет делается на основании данных чертежа:
- профиль ПС 75х40 мм – ((5х2 700)+(6х200)+3 200+500+790+450+(2х220)+130+600)х2=41 620 мм, округляем с учетом требуемого запаса до 50 м;
- арочный профиль 5 500х2 = 11 000 мм, 11 м (допустима замена ПС 50х50 мм);
- ГКЛ – две панели 3 200х2700 (на всю площадь перегородки 8,64 кв.м.). С учетом стандартного размера 1 200х2 500 мм (площадь листа 3 кв.м.) потребуется не менее трех листов;
- ГКЛ с продольными пазами или обычный – пластина с общим размером 5 500х200 мм (здесь 200 мм – толщина перегородки);
- соединительные элементы, дюбели, саморезы.
https://youtube.com/watch?v=YtUKrx0p2cQ
Обшивка гипсокартоном
Использовать для обшивку нужно арочный гипсокартон, внутри у которого есть армирующая лента, которая не дает ему переломиться при сгибе и позволяет удерживать форму. Также, он обладает меньшой толщиной (где-то 6-9 мм), что дает возможность затрачивать существенно меньше сил на его сгибание.

Начать обшивку стоит с вырезания необходимых форм из гипсокартонных листов. Для аккуратного вырезания используйте электрический лобзик, так ваши руки не будут уставать. Когда вы вырезали из гипсокартона часть необходимой формы и размера, то установите её на каркасе. Закрепить гипсокартон на каркасе нужно с помощью все тех же саморезов
Только обратите внимание, что если вы сильно углубите шляпку самореза вглубь листа гипсокартона, то получиться сильная вмятина, которую будет довольно сложно замаскировать, поэтому будьте аккуратны — не углубляйте саморез больше 2 мм в лист
Межкомнатная арка своими руками возводится, начинаю со стенок из гипсокартона, когда они сделаны, то можно сооружать её изогнутое дно. Лучше в данном случае применить сухой метод сгиба. Отмерьте длину, деталь которой вам необходимо будет вырезать из гипсокартона. На все площади этой детали проведите линии, шаг между которым нужно будет сделать 4–6 сантиметров. По размеченным линиям сделайте надрезы, использую нож для гипсокартона. Учтите, что тыльная сторона должна остаться целой, иначе вы просто разрежете деталь.
Подготовленную часть гипсокартона для создания изгиба прикладывают к каркасу и закрепляют с помощью саморезов. Саморезом нужно закреплять каждое звено, которое создает изгиб. Также, этой деталью должны заподлицо закрываться нижние края стенки арки. Для укрепления углов нужно применять пластиковый уголок, который можно легко гнуть в разные стороны. Приобрести такой можно в строительном магазине, главное, не покупайте металлические уголки, так как они предназначены для ровных, прямых углов.
Как согнуть гипсокартон для арки
Монтаж криволинейных элементов конструкции требует изгибания ГКЛ с нужным радиусом. Этот процесс выполняется двумя способами – сухим и мокрым.

Как гнуть гипсокартон с увлажнением
Для этого вырезанный до нужного размера (с небольшим запасом по длине) участок ГКЛ прокатывается специальным игольчатым валиком с той стороны, где он будет вогнутым, и увлажняется теплой водой с помощью кисти два-три раза.

Игольчатый валик для гипсокартона
Важно при этом правильно выбрать сторону, в которую будет гнуться панель

После увлажнения (через 10…15 минут) лист изгибают по шаблону или непосредственно по профилю, крепя его саморезами с шагом 20…25 см. Шпаклевка возможна только после полного высыхания листа! Если лист гнется по шаблону и крепится на профиль после высыхания, шпаклевать можно сразу.
Гнутый гипсокартон без увлажнения
Согнуть ГКЛ без увлажнения можно двумя способами – с созданием продольных (параллельных) пазов по всей длине панели или простым изгибанием листа при значительном радиусе кривизны арки. Для второго варианта шаг саморезов составляет 10…15 см (в зависимости от радиуса), крепление осуществляется с напряжением панели. Процедуру желательно выполнять с помощником – один человек с усилием изгибает лист, прижимая его к профилю, второй крепит саморезы. Для первого типа монтажа (с надрезами) необходимо предварительно выполнить пропилы с шагом 5…10 см на глубину 3…5 мм. Надрезы должны пройти поверхностный слой картона и немного углубиться в гипс. По надрезам лист слегка надламывается и крепится так, чтобы на каждый сегмент приходилось по два самореза с каждой стороны панели (то есть всего 4 на сегмент).

Также можно использовать уже готовые листы с пазами.

Пазы, самодельные или промышленные, после установки панели обязательно шпаклюются и проклеиваются армирующей лентой, как показано на иллюстрации.
Ниже приведен видеоролик о способах изгибания ГКЛ:
Материал для изготовления
Планируя смастерить арочный проем самостоятельно, следует выбрать подходящий для этой работы материал.
Для изготовления арки можно применить:
- гипсокартон,
- древесину и ее производные,
- металлический профиль.
Обдумывая, как можно сделать декоративную арку в доме, начинающим мастерам стоит обратить внимание на гипсокартон. Он прост в работе и хорошо монтируется на любые несущие конструкции. Гипсокартон несложно вписать в домашний интерьер, а мелкие огрехи в работе будут почти незаметны
Гипсокартон несложно вписать в домашний интерьер, а мелкие огрехи в работе будут почти незаметны.
Деревянная арка послужит отличной основой даже для отделки искусственным камнем, поскольку способна выдержать его вес.
Конструкции из производных древесины (фанеры, ДСП, ламината) несложно вписать в готовый дверной проем. Работа по их изготовлению не требует большого опыта подобной работы. Простейшую конструкцию несложно смастерить за выходные дни.
Арка из гипсокартона с подсветкой
Самым распространенным элементом из гипсокартона, после потолка, являются различные декоративные арки и порталы. Их популярность обусловлена тем, что они позволяют придать помещению необычные, утонченные линии и теплую атмосферу, которая каждый раз заставляет садиться в уютное кресло с книгой и чашкой чая в руках. Если вы имеете опыт работы с гипсокартоном, то для вас изготовить арку не составит абсолютно никакого труда, но если вы новичок, то можете начать с более простых форм, таких как купольные арки. А позже переходить к сложным асимметричным изделиям, в которых сможете проявить всю свою фантазию и оригинальность.
Если вы это читаете, то уже примерно или точно представляете, какую арку хотите сделать и где она будет располагаться. Самое главное, это не отходить от задуманной идеи, иначе получится нечто непонятное и непрезентабельное. Желательно, чтобы вы сделали наброски будущей арки, определились с формой, размерами, стилем оформления. Но, если вы умеете пользоваться графическими программами, то создайте изделия сначала в них, а уже потом переходите к реализации задуманного проекта.
Самостоятельная установка сводчатой арки
И даже более сложную арку со сводами можно воплотить в реальность при домашнем ремонте. Важный момент — просто оформить сводом вершину дверного проема не получится из эстетических соображений. Вам придется увеличивать высоту проема, чтобы проход между комнатами не напоминал давящий со всех сторон пиратский грот. Решите вопрос с расширением стенного проема или снесите стену и поставьте новую гипсокартонную конструкцию
Обратите внимание, что нарушать целостность и каким-либо образом менять несущие стены запрещено

А теперь — пошаговая инструкция, как сделать сводчатую арку в межкомнатной перегородке:
- Вариант с расширением проема. Размечаем границы будущего проема на существующем. К желаемой ширине арки добавьте 4 см по ширине и столько же по высоте. Отметьте засечками на стене. Далее через каждые 10 см надо пробить перфоратором сквозные отверстия в стенке и расширить проем дисковой пилой. Потом организуем основание для боковых панелей из гипсокартона или ДСП с монтажом на П-профиль. Как делается свод, вы увидите в отдельном разделе.
- Вариант с межкомнатной аркой из гипсокартона на новой стене. Перед установкой новой гипсокартонной стены нанесите вертикальную разметку с помощью отвеса на несущую стену, к которой будет примыкать конструкция. Возьмите обрезок профиля и перенесите разметку на противоположную стену. Установите и зафиксируйте дюбелями П-образный профиль ЦД по разметке. От боковин с двух сторон отложите на полу отрезки профиля, равные ширине гипсокартонной стенки до арочного проема, прикрутите эти элементы. Профиль по потолку займет всю ширину стены. Далее ведем две рейки от потолочного профиля и соединяем с концами отрезков на полу, чтобы получилось основание боковых арочных панелей. На раму монтируем поперечины с шагом 20 см, что способствует устойчивому положению ГКЛ (гипсокартонных листов), которые мы уложим на этот каркас. И на последнем этапе мы будем делать свод для арки.

Как сделать арку своими руками пошаговая инструкция из ДВП. Арка своими руками из ДВП
Каждый хочет, чтобы его жильё было как можно уютнее и привлекательнее, приятнее глазу. Такие элементы как арки придают нашему жилищу более естественный природный вид, так как скругленные формы это более естественное образование в природе. Квадратные, угловатые, рубленые формы, скорее присущи неживой природе. Поэтому с давних времен строители используют в помещениях и комнатах скругленные арки. Сегодня мы поговорим о том, как сделать арку своими руками из ДВП.
ДВП или древесноволокнистая плита – это достаточно хрупкий и неустойчивый материал, поэтому нужно соблюдать некоторые правила предосторожности перед тем как сооружать арку из этого материала. Поскольку ДВП изготавливается многослойным прессованием древесных волокон, то соответственно этот материал очень подвержен воздействию влаги
Прежде всего, чтобы начать сооружать арку, нам нужно добавить ей водостойкости. Для этого нам понадобятся всевозможные пропитки и грунтовки, чтобы сделать этот материал более устойчивым и более цепким последующей штукатурке. Все чаще задают вопрос, как сделать арку из ДВП своими руками, отвечу можно и не так уж проблемно, как кажется на первый взгляд. Поскольку ДВП достаточно гибкий материал, но тут одновременно нужно еще подумать о том, чтобы хорошо его закрепить и сделать более жестким. Часто встречается тема как сделать арку дверную своими руками из ДВП, что в общем-то понятно. В наше время ведь можно сэкономить, используя более дешевый материал более гибкий и податливый.
Итак, давайте определим шаги, при построении арки:
- Определяем диаметра арки
- Формируем каркас, на который будем крепить ДВП
- Вырезаем полосу нужной ширины и длинны
- Крепим ДВП
- Наносим грунтовку и влагозащитное покрытие
- Шпаклюем, красим
- Обмываем 🙂
Арку из ДВП своими руками сделать проще чем из гипсокартона, который нужно подрезать и сегментировать.
Как сделать арку своими руками пошаговая инструкция из ДВП. Арка своими руками из ДВП
Каждый хочет, чтобы его жильё было как можно уютнее и привлекательнее, приятнее глазу. Такие элементы как арки придают нашему жилищу более естественный природный вид, так как скругленные формы это более естественное образование в природе. Квадратные, угловатые, рубленые формы, скорее присущи неживой природе. Поэтому с давних времен строители используют в помещениях и комнатах скругленные арки. Сегодня мы поговорим о том, как сделать арку своими руками из ДВП.
ДВП или древесноволокнистая плита — это достаточно хрупкий и неустойчивый материал, поэтому нужно соблюдать некоторые правила предосторожности перед тем как сооружать арку из этого материала. Поскольку ДВП изготавливается многослойным прессованием древесных волокон, то соответственно этот материал очень подвержен воздействию влаги
Прежде всего, чтобы начать сооружать арку, нам нужно добавить ей водостойкости
Для этого нам понадобятся всевозможные пропитки и грунтовки, чтобы сделать этот материал более устойчивым и более цепким последующей штукатурке. Все чаще задают вопрос, как сделать арку из ДВП своими руками, отвечу можно и не так уж проблемно, как кажется на первый взгляд. Поскольку ДВП достаточно гибкий материал, но тут одновременно нужно еще подумать о том, чтобы хорошо его закрепить и сделать более жестким. Часто встречается тема как сделать арку дверную своими руками из ДВП, что в общем-то понятно. В наше время ведь можно сэкономить, используя более дешевый материал более гибкий и податливый
Прежде всего, чтобы начать сооружать арку, нам нужно добавить ей водостойкости. Для этого нам понадобятся всевозможные пропитки и грунтовки, чтобы сделать этот материал более устойчивым и более цепким последующей штукатурке. Все чаще задают вопрос, как сделать арку из ДВП своими руками, отвечу можно и не так уж проблемно, как кажется на первый взгляд. Поскольку ДВП достаточно гибкий материал, но тут одновременно нужно еще подумать о том, чтобы хорошо его закрепить и сделать более жестким. Часто встречается тема как сделать арку дверную своими руками из ДВП, что в общем-то понятно. В наше время ведь можно сэкономить, используя более дешевый материал более гибкий и податливый.
Итак, давайте определим шаги, при построении арки:
- Определяем диаметра арки
- Формируем каркас, на который будем крепить ДВП
- Вырезаем полосу нужной ширины и длинны
- Крепим ДВП
- Наносим грунтовку и влагозащитное покрытие
- Шпаклюем, красим
- Обмываем
Арку из ДВП своими руками сделать проще чем из гипсокартона, который нужно подрезать и сегментировать.
Как сделать арку из гипсокартона своими руками
Для выполнения работ по монтажу арки понадобятся соответствующие материалы:
– гипсокартон (начинающим мастерам лучше выбрать уже изогнутый арочный (ГКЛА);- металлические или деревянные профили, фанера;- саморезы, дюбеля;- шпатлевка, грунтовка.
Из инструментов следует подготовить измерительные приборы (столярный угольник, рулетку), большой циркуль, карандаш, нож по гипсокартону, ножницы для резки металла, шуруповерт, мелкозернистую наждачную бумагу для полировки краев, шпатель, средства индивидуальной защиты.

Этапы работы
1) Проектирование. Исходя из параметров помещения, дизайнерской задумки, необходимо в точности выяснить размеры и рельеф будущей конструкции.
2) Расчет материалов. Гипсокартона и расходников лучше брать больше, чем требуется. Так в случае нечаянных повреждений можно будет спокойно продолжить монтаж.
3) Порезка и крепление профилей. В итоге должны получиться своеобразные рамки, подходящие по ширине. К бетонной стене их надо прикреплять сначала на дюбеля, а потом уже фиксировать саморезами. Оптимальное расстояние между шурупами – 10-15 см.
4) Вырезание гипсокартонных заготовок, придание им изогнутой формы. Наглядно увидеть этот процесс можно на видео.
5) Обшивка каркаса. Диаметр и длину саморезов следует подбирать в зависимости от толщины листов. Их шляпки после вкручивания должны быть на одном уровне с гипсокартоном, чтобы не создавать лишних неровностей.
6) Укрепление конструкции. Для этого по внешним краям арки крепится изогнутый металлический профиль.
7) Выравнивание. На данном этапе нужно сгладить шероховатости, зашпаклевать поверхность и подготовить ее под отделку.
8) Декоративная отделка.

Идеи дизайна арок из ГКЛ
Оригинальные дизайнерские решения.
С подсветкой
Встроенная подсветка представляет собой очень интересный интерьерный элемент. Например, с помощью точечных светильников, включающихся отдельно от общего комнатного освещения, можно, не только украсить арку, но и сформировать очень приятную обстановку в вечернее время суток.



На фото арка из гипсокартона, декорированная точечными светильниками в прихожей.
Узкие арки
Данные узкие модели за счет своего вытянутого вида станут отличным решением для помещений, в которых нужно визуально приподнять потолок.

На фото интерьер спальни и узкая арка из гипсокартона с обрамлением белого цвета.
С полками
Различные боковые полочки и проемы с окошками самой разнообразной формы, дополненные точечной подсветкой, имеют целостный вид и придают сводчатой конструкции необычности и своеобразности.


Угловые
Данная угловая арка является самым простым и творческим способом, придающим обстановке креативности, определенного настроя и вместе с тем особой аристократической притягательности.

Необычные арки
Необычные конфигурации пользуются особым успехом в дизайне комнат. За счет пластичности ГКЛ получается добиться самых оригинальных и уникальных форм, например, это могут быть двойные, тройные, выгнутые проходы или даже модели, выполненные ромбом.


На фото стрельчатые арки в интерьере.
Большие
Добротная большая арка, отличается габаритностью и позволяет привнести в пространство дополнительного простора и свободы.

На фото большая арка, выполненная из гипсокартона в интерьере просторной спальни.
С барной стойкой
Представляет собой очень популярное дизайнерское решение для зонирования любого жилого помещения или квартиры-студии. Широкая асимметричная или симметричная арка с барной стойкой, сделает интерьер престижнее и интереснее.

На фото кухня-столовая и арка из гипсокартона, дополненная барной стойкой.
Резные
Привносят в атмосферу дополнительной изысканности и роскошности. Резная ажурная арка, несомненно станет самым значимым декором всего пространства.

С нишами
Благодаря такому простому и вместе с тем элегантному дополнению, как углубление, получается превратить арку в настоящий фаворит. В глубоких нишах можно удобно разместить дорогие, ценные или просто красивые предметы, например вазы, статуэтки или различные сувениры.

С окантовкой
Такой проход смотрится более завершенно и основательно. Окантовка способствует улучшению зрительного восприятия арочной модели, делая ее вид особо привлекательным.

С колоннами и полуколоннами
Сводчатый проем, дополненный колоннами или полуколоннами, формирует в пространстве творческую и живую атмосферу, лишая обстановку однообразности. Такое оформление будет особенно уместно в более просторных комнатах.

Материалы для изготовления арки
МДФ меньше поддается усадке и деформации, чем дерево Арочные конструкции изготавливаются из разных типов материалов. Их подбирают в соответствии с особенностями интерьера и назначением помещения.
Дерево
Конструкция из дерева сделает помещение уютнее, хорошо подойдет для интерьеров, где активно используется этот материал. Ее можно покрыть лаком, подчеркнув природную текстуру, или облицевать камнем или пробкой. Главная трудность при монтаже арки этого типа – создание изогнутого свода: дерево не относится к легкоизгибающимся и удерживающим такую форму материалам. Выходом становится сборка конструкции из нескольких фрагментов, выпиленных по отдельности и соединяемых специальным клеем. Если в проеме есть балки из дерева, свод и опоры часто прибиваются к ним. Закрыть шляпки крепежных элементов можно наличниками или иными декоративными деталями.
МДФ или ДВП
Фигурная арка из гипсокартона Эти материалы обладают большей гибкостью, чем натуральное дерево. Практикуется придание формы тонкому листовому МДФ с последующей склейкой деталей. Подойдут и специальные листы повышенной гибкости с поперечными отверстиями толщиной 0,8 см. Сначала создается каркас из металлопрофиля либо брусков дерева, который затем устанавливается в проем. После этого производится его обшивка. Для крепления используются саморезы.
Гипсокартон
Это материал смешанного состава: между двумя прослойками картона проложена смесь на основе гипса. Выпускают его в листах, которые легко нарезать и монтировать. Благодаря гибкости и легкости он подойдет и для арок сложной формы. Способ работы такой же, как в случае с МДФ: на смонтированный каркас из металлопрофиля (чаще всего применяют алюминий) закрепляют нарезанные по заготовкам элементы покрытия.
Способы отделки арок
Желающим отделать арки самостоятельно придется потрудиться, вырезая каждую деталь отдельно. Однако многие не ищут сложностей и выбирают простой путь – приобретают заводские конструкции из сборных элементов.
Готовые и сборные накладки
Накладка заводского производства бывает двух видов: деревянная и пенопластовая.
Элементы из пенопласта
Пенопластовые арки предпочитают зачастую в качестве альтернативы гипсовым изделиям. Преимущества таких конструкций заключаются в следующем:
- Быстрый монтаж. Скорость установки гораздо выше, чем арочных конструкций из фанеры или ГКЛ.
- Низкая цена.
- Легкая транспортировка. Пенопласт является достаточно легким материалом, поэтому не понадобится нанимать грузчиков для доставки изделия на дом.
- Небольшой вес. Арки такого вида можно устанавливать даже на очень слабых конструкциях.
- Разнообразные формы.
Пенопластовые арки набираются из готовых элементов и подрезаются по месту под размеры проема
Отрицательными сторонами арочной конструкции из пенопласта являются: хрупкость, токсичность, быстрая воспламеняемость.
Элементы из древесины
Деревянные арочные конструкции не требуют рекламы. Они богато выглядят и редко не подходят к какому-нибудь стилю интерьера. Однако следует понимать, что под словом «деревянный» не имеется в виду то, что все комплектующие выполнены из сосны, дуба либо другого древесного массива.
Арка может изготавливаться из натурального дерева, МДФ, ДСП или фанеры
Арочные элементы производят также из недорогого МДФ, ламинированной ДСП, фанеры, облицованной шпоном. Нужный вариант подбирается в индивидуальном порядке исходя из вкуса и толщины кошелька.
Деревянные элементы заказываются по каталогу, а затем перед установкой подрезаются по длине
Монтаж деревянных конструкций выполняется просто. В строительных магазинах арки продаются как в собранном, так и разобранном виде. Первый вариант считается более надежным, так как работу выполнял специалист.
Декорирование отделочными материалами
В настоящее время существует масса способов красиво и аккуратно отделать межкомнатный проем. Декор подбирают так, чтобы он гармонировал по цвету, фактуре, материалу с домашней обстановкой. Самыми популярными вариантами признаны:
Простое окрашивание. Элегантной и завершенной будет выглядеть арка, если ее просто покрасить в белый, коричневый цвет или в тон стен. Такую отделку нередко дополняют декоративными элементами, подсветкой.
Оклеивание обоями. Это самый быстрый, доступный по стоимости и нетрудный процесс. Для этих целей лучше всего подходят варианты из винила либо флизелина.
Отделка деревянной, пластиковой вагонкой. Способ гарантирует не только прекрасный эстетичный вид, но и обеспечивает долговечность конструкции, защиту ее от влаги и механических повреждений.
Декоративная штукатурка. Поверхность арки получается красивой, рельефной и долговечной. Правда, такую отделку нужно иногда реставрировать, и она требует определенного ухода.
Камень. Арка в доме из натурального или искусственного камня устанавливается лишь с помощью профессионала. Отделка завораживает взгляд, делает интерьер необычным.
Пробка – это достаточно дорогой, но экологически чистый материал. Он легко поддается механическим повреждениям, поэтому для продления его срока службы рекомендуется покрыть пробку воском.
Клинкерная плитка. Такая отделка прослужит долгие годы. Она не притягивает грязь и не требует специального ухода.
Какой бы вариант отделки арочной конструкции вы ни выбрали, арка сама по себе будет изюминкой в интерьере вашей квартиры или дачного домика.
Установка дугообразного фрагмента арки
После установки каркаса и боковых стенок арки самое время зафиксировать нижнюю дугообразную секцию. Для этого необходимо измерить у дуги длину и ширину. А по полученным размерам, используя нож и угольник, вырезать кусок гипсокартона.
Чтобы согнуть лист, придется сделать его мягким, а для этого существует 2 способа:
- просто намочить (для тех случаев, когда требуется незначительный изгиб);
- или сделать параллельные аккуратные насечки по бумажному слою одной из сторон вырезанной формы.
Стороной с надрезами кусок гипсокартона следует приложить к арке (к нижней ее части) и постепенно, не прилагая особых усилий, придать ему требуемую форму. Если двигаться «шажками» без нажима, кусок довольно скоро приобретет нужные очертания.
Следующий этап — установка прямоугольника. Его надо будет идеально выровнять по краям со стенами арки. А еще убедиться, что концы соответствуют дуге, иначе прямоугольник придется корректировать по длине.
Нужно зафиксировать гипсокартон сверху, а потом крепить его дальше, спускаясь из верхней точки по краям в обе стороны. Работать придется шуруповертом с регулировкой крутящего момента, с шагом крепежа в 10-15 см.
Как только арка установлена, следует проверить ее визуально. Если есть какие-то неровности и шероховатости, самое время все исправить с помощью ножа.









































